查看完整案例

收藏

下载
RUGER WEICHEN
锐格惟辰新作
项目信息
项目地点 /雁塔天宸
项目面积 / 560㎡
主案设计 / 帅健
深化设计 / 张超 郑晓梅 张倩文
设计方案
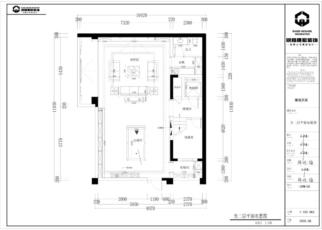
-2L
▼平面布置图
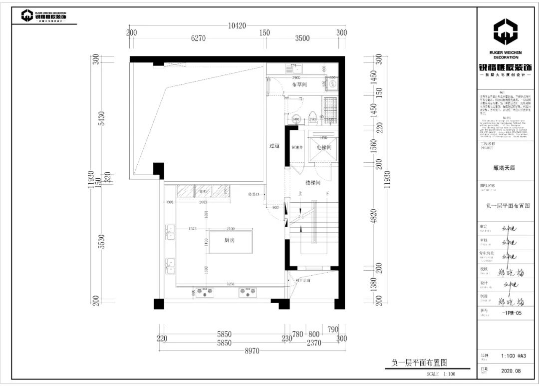
动静相宜一方隐秘的娱乐天地,线性的灯光设计,让空间充满动感与活力。大理石地板搭配各类金属装饰,塑造出年轻、活力、娱乐,却又不失奢华的气氛。丰富的细节差异,为空间的设计带来不同的张力。-1L▼平面布置图
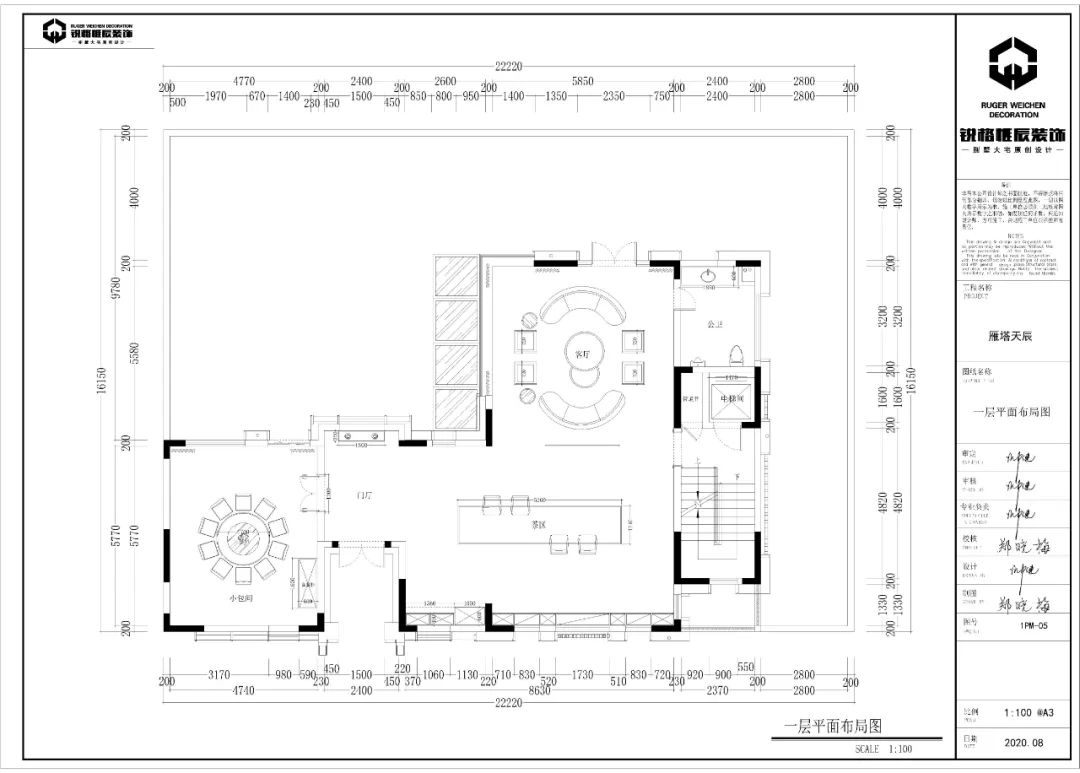
1L
▼平面布置图
现代的人居理念与诗情画意相逢,空间设计的细节之处更为彰显品质。客厅的灰色大理石地面搭配木质的家居风格,给人一种静谧、自然却又大气从容的感觉,结合玄关处的植物花卉,更是彰显出主人家丰厚的文化底蕴与对生活品质的卓越追求。
餐厅区采用了木质的地板和墙壁,搭配花卉的餐厅座椅,空间静谧安心且大气舒适,给人一种自在安然的愉快心情。抹去一切的世俗浮华,让生活栖息于一片无声的惬意中。
2L
▼平面布置图
二楼的餐厅在设计上与一楼略有不同,白色的中式墙壁搭配蓝色的中式餐椅,中式的设计与简约大气相碰撞,勾勒出现代雅致的俊逸之美。
棋牌间的咖色桌椅搭配一面红色墙壁,给人一种低调中活力无限的感觉,凸显出主人家对待闲娱生活的品质态度。
任时光匆匆,我自惬意。阳台餐厅的设计,以现代格调的利落线条感,围合出阳台方正的布局,简洁之处亦凸显生活的情调,给用餐气氛空间上的无限延伸,无论是下午茶亦或烛光晚餐,有你有我,一起度过这最美的时光。3L▼平面布置图
灰色的大理石楼梯,每一层都搭配了感应灯及线型灯条,流线般的光影,高级简约的设计感,贯穿铺陈这整个空间,用心又妙不可言,让生活中的每一步都熠熠生辉。
每一层的餐厅设计,大小风格不一,却又与主调相呼应,或温馨,或简约,或大气体现着主人家的热情好客之道,在温润古韵之中享受乐趣陶陶。
古色古韵却又不失简约大气,围绕在“家”中的每一处,似在表达着主人家对待生活的从容气度。简化的线条设计风格,让整个空间的使用感大大提升,满足了私密空间的一切需求,从此任时光徜徉,我自逍遥。本案设计师
往期作品推荐
WECHEN|富力国际别墅
WECHEN|莱安逸辉
WECHEN|莱安逸珲
西安锐格惟辰装饰工程有限公司创建于2014年,是西安市装饰协会、中国室内装饰协会会员单位。以原创设计为核心,汇聚顶尖设计力量,致力于为全国高端客户群体提供高品质生活场景。精准管控集设计、施工、产品供应为一体的全方位服务体系,业务范围涵盖住宅、样板间、办公、会所以及其他商业空间,打造精品工程!
锐格(REGEL),代表聚焦为客户创造价值、代表着客户的尊贵身份。
惟辰(WECHEN),代表惟心惟力、不负星辰,代表着专注、高效的服务理念。
以文化引领生活、以创新致力生活、以艺术探索生活;贴合人性,邂逅时尚、引领潮流、精诚品质、勇于创新,与客户共同缔结生活之美。
长按识别关注
别/墅/大/宅/原/创/设/计
t e l.
029-81135672
add. 西安高新区锦业路锦业时代B3座503
add. 西安高新区锦业路锦业时代B3座903
add. 西安高新区锦业路锦业时代B3座904
客服
消息
收藏
下载
最近




































