查看完整案例


收藏

下载
"子间创造出关怀彼此的交流空间,适当的留白包容更多的想象。"——林琮然
阔合总监林琮然受万科美好家团队邀请,参与了“美好家·设计共享计划的活动”。带领团队研究了以适老关怀为主题的居住空间。并与多名设计师联合发布新书《把美好带回家》。
预计2020年,我国60岁以上老人将达到2.4亿,这个数字落到每个人的头上,就是现实版的“上有老下有小”的生活日常,大部分老人愿意居家养老,老人们期待著儿女绕膝的天伦之乐,这也意味著,一个空间,需要应对三代人的不同阶段的不同需求,弥合两代人甚至三代人之间的生活方式的差异,无论是在功能组织和空间可变性上,都提出了很高的要求。这老关怀的设计,除了要关注老人生理机能的需求,更重要的是以打造心灵安心之所、创造家人的陪伴的空间。对他们而言,幸福就是家人陪伴在身边。
扫码预览VR版空间
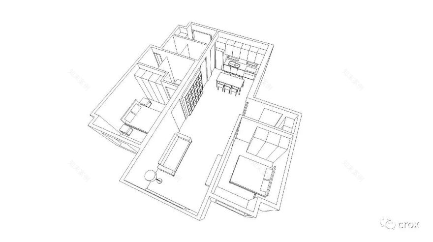
平面图
“子间”,取自《诗经》“执子之手,与子偕老”。
设计将次化为陪伴父母的设计空间,子间是这个100平方米的家的日常核心所在,在这个可变的空间中,对陪伴的守望、空间转化的可行性进行了细致的思考与探索。
鸟瞰图
整体布局围绕南北主轴线展开,东西侧为老人和年轻夫妇的卧室,延续传统中国居民中轴的建筑概念,全场开的家庭公共空间让老人家感受到明亮、通透与活力,满足80后子女和50后父母的情感交流,同事考虑在入住3-4年后,孙儿降生的空间需求。
开放式公共空间
长向开放、半开放的空间,可以将三个空间有机相连
对于年长者而言,无论是在做饭、吃饭、还是喝茶、甚至陪伴下一代,都可以在这个空间自然发生。
儿孙绕膝的生活场景,没有比这个更能让长辈安心了
客厅、书房、餐厅有机相连,形成一个开放的空间
子间:执子之手,与子偕老
全开放模式
“子间”是这个空间乃至整个家最重要的内核,通过6块移门,可以机动地变换厨房、客厅、与房间,延伸出书房、茶室、棋室..等多种组合开放关系:6块移门在这套住宅里扮演着魔术师一般的角色,与预设的轨道相配合,在一个宽敞的公共空间里,移门可以创造出N多种模式。
厨房模式示意图
客厅模式示意图
书房模式
独立房间模式示意图
移墙隔出“厨房模式”时,独立空间,互不干扰
多功能书架 也可以是地台
客厅正中的书架里暗藏玄机,整个书架可以整体拉下来,形成一个大的地台。而在原先放书架的墙面上,几排可翻开的搁板,可以让这个区域再次成为书架
整个书架可以整体下拉形成地台,墙面上的搁板又成为一组书架
基于人际工程学的操作尺度
与一般将洗衣机落地放置,将洗衣机顶面处理成操作台的作法完全不同,设计师将洗衣机的位置抬高40厘米。小小的细节改变,立刻解决了弯腰拿取衣物的生活小困扰
洗衣机下面设计为存储区域
将厨房的底柜处理成抽拉式座椅,方便老人操作
充满贴心细节的卫生间
卫生间洗浴的扶手、安装在墙面上的折叠椅、还有智能感应打开的马桶盖、智能感应的小夜灯
设计中对老年人无微不至的关怀,都能在这些细节中体现药柜也是贴心照顾
在厨房和老人卧室里都设计了多格小药柜
每个小药柜上可以标记药名和日期、血压计等小型家用医疗器械也都可以在此存放。
主创设计:林琮然
设计团队:李本涛、黄宗玲、莫抒琳
插图:Chuck Lin
子间内容收录于《把美好带回家crox阔合,跨足都市规划,建筑,景观,室内,艺术,呈现人与生活间每一种可能↓↓↓》
客服
消息
收藏
下载
最近



























