查看完整案例


收藏

下载
本案采用简洁利落的灰白空间色调,以极简的硬装搭配简单舒适的软装,结合个性几何构成造型,尊重材质的天然属性,尽量呈现每个设计元素的自然肌理,免漆板、岩板、手工漆、黄铜等材质的碰撞,呈现出极致的细节。解构空间、重塑造型、极致灰白,将艺术与生活完美结合。
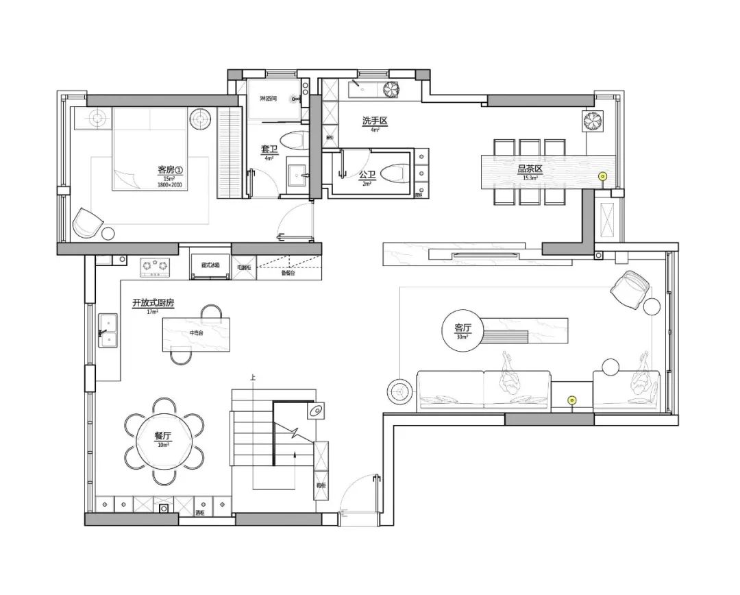
空间结合横厅的布局,玄关、客厅、餐厅和厨房的布置一目了然,打造了开阔大方的公共区域。
整体空间色调宁谧柔和,讲究灰度的和谐过度,在自然光下呈现微妙细腻的变化,如同我们的生活,看似一成不变,内心却是精彩而不同。空间的色彩基调,不仅应用于空间氛围的调和以及业主审美的匹配,更体现了别出心裁的设计价值。
HALLWAY玄关
LIVING ROOM客厅
DININGROOM餐厅
LOUNGE
起居室
MAIN BEDROOM主卧
SECOND BEDROOM次卧
一层 平面图
二层平面图
设计机构|HRAMN汉马建筑
主案设计|马汉鑫
设计团队|陈佳妮
项目地点|广东汕头
项目面积
| 270
设计时间
| 202
0年8月平面图、效果图版权归HRAMN汉马建筑所有
客服
消息
收藏
下载
最近





















