查看完整案例


收藏

下载
"未经雕琢的空间,如泼墨般的夜空。一场名为“设计“的烟火无声绽放,安静又热烈,那是一种直击内心深处的力量。"
阳光正好的天,微风徐徐,抚过园中绿植、花朵。秋千椅摇曳出的光影,混着下午茶的醇香,慵懒、愉快的场景,栩栩如生地浮现于脑海中......
项 目 类 型 :全 案 设 计
Project Types :Whole project Design
项目地址:鲁能领秀城
Project address: Luneng lingxiu City
项 目使 用 面 积 :1 5 0平 方米
Project area: 150
全案设计师:罗至妙/李珂
Designer: Luo zhi miao / Li ke
花园设计公司:木守
Garden design: MUSO
印象中,女主人是一位很“酷”的小姐姐。她有非常独立、自我的个性,并把这种情绪传递给了空间,而这种鲜明的空间意志会让人脑海中不自觉地浮现这样一句话:“这是她的家该有的模样,是属于她独特的调调。”直爽利落的性格造就了她干练高效的行事作风,对于居住空间的想象,她有清晰坚定的主见,不受别人想法的干扰。空间之所以成为私属于个人的住宅,正是因为被赋予了自我意志。
这样一处安定舒适、自由开放的住所,是女主人为家人准备的惊喜。空间不会说话,但那种无声的感动弥漫心间。
平面图
PLANELAYOUT
LIVINGROOM客厅
玄关入户,眼前是一片开阔空间。看不到浓重的深色,也不见鲜明的斑斓,只将一抹顺眼的烟波蓝赋予电视背景墙,定位视线焦点,剩下的就交给光与影交缠。
似是觉得过于单调,设计师便就着那一抹烟波蓝撷取几笔,可随意变幻造型的意大利baxter牛皮沙发置于其中。
足以一人躺下的宽度,不固定形状的灵活靠垫,是有别于传统固定靠背的设计,却淋漓尽致地展现了女主人所向往的自由开放的新生活方式。
原始结构的顶面横梁交错复杂,因此设计师果断放弃繁复的吊顶造型,以最简洁的的横平竖直打造干净利落的吊顶姿态。巧用暗藏式磁性轨道灯,嵌入吊顶之中,保持顶面规整又享受动线自由的灯光轨迹。
黑与白交相呼应的柜体,对立而眠,满足主人收纳的同时,消弥阳角吐露的尖锐,以温和的调性释放空间结构。
铺设木质地板的窗边地台延伸至电视墙下方,择木纹砖的相同浅色,以色彩上的融合连接材质上的不同。
跳跃的橘色单人沙发,与阳光起舞,供小主人休闲玩耍。
与电视背景墙衔接的玄黑柜体在阳光反射下透出哑光质感,同时方便收纳小主人的玩具摆件。
RESTAURANT餐厅
另一方,是餐厨厅守卫的领地。岛台与餐桌相连,取便捷之意,又聚集空间重点,打造干净视觉的同时又不显空泛散漫。
芙莉夫人独特的石材纹理跃然于桌上,在整体平和沉稳的气息里增添一份欢脱。特别定制的桌腿,通过设计师反复对比色卡,最终呈现出和谐相应的西柚红。
细看桌面不规则的自然肌理,如桌腿蔓延而上的红色藤条,透露出丝丝缠人心弦的别样美,恰好契合了女主人心心念念的艺术美感。
透明玻璃门为餐厨营造一种隔而不断的朦胧之美。女主人与设计师精心挑选的厨具,窗外盎然生机的花园,都让她的烹饪之心愈发热烈。
她向设计师表示:“以后我会更爱待在厨房,因为这是我想要的样子,我会把它们收纳得整整齐齐。”所谓的“见微知著”,不正是于细节之处潜移默化新的生活理念吗。
BEDROOM卧室
清新的绿自带朝阳和氧气,粉刷于女儿房的窗前书桌,给予开阔自由的学习空间,又带着一种天下父母皆有的,对孩子的美好期盼。
梦幻的粉色墙壁圆满女儿的公主梦和少女心,床头特别打造的树屋造型,有趣而实用,方便晚安读本的拿取,更是在心理上给足家的安全感。
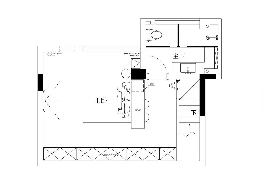
主卧平面图
MASTERPLAN
大改主卧布局,将床从压抑的房梁下挪出,调转床头方向,以巧而精致的吧台为抵,充分考虑到了主人夫妇日常的生活习惯。刚到家的一身疲惫,又不能直接躺上干净柔软的床,而吧台则成为暂缓休憩的最佳位置。
入门往右是重新规划的卫生间,宽阔的洗漱台,镜面相对,视觉放大空间层次感。对于女主人来说,只需要足够的台面摆放物件即可,化妆也不过是基本的面容修饰,精细的绘眉描唇太过繁琐,她本就是一个干脆利落的人啊。
从吧台下的小冰箱拿出一瓶红酒,嫣红液体倒入晶透的高脚杯,这是两人的私属空间,无需过多装饰和设计,真正演绎生活的是居住者本身。
一眼惊艳时光,却在往后的生活轨迹中温柔了岁月。设计之于空间,是无声烟火,安静又热烈;而居住者之于空间,则是人间烟火,世间百态。
DESIGNER
△M&S MORE罗至妙
△M&S MORE李珂
客服
消息
收藏
下载
最近



































