查看完整案例


收藏

下载
| New Project |
家作为灵魂的栖息之所,表达的是一种立场,也是一种态度。新中式空间既传承了中式古风,又展现了一定的现代化都市气息。在业主原有的诉求之上,增添更多的色彩、线条、功能、布局等。我们更希望给业主打造一个安静淡然的雅居空间。远离喧嚣,感悟皓月星辰,细品春夏秋冬,岁月静好。
Project Infromation | 项目信息
项目地址
Project address
台州壹号·新都会
项目类型
Project type
全案设计
项目面积Project area
| 340m
设计风格Design style
| 新中式
主案设计
Chief designer| 杜挺
软装设计Soft decoration designer
|尹嫣羲
<< 滑动查看下一张图片 >>
平面户型图
more
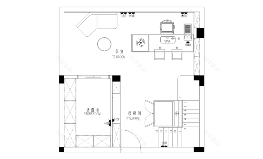
Basement | 地下室
茶室小絮你是否与我一样品着一杯白茶闻着淡淡花香听着窗外鸟鸣坐在圈椅上面谈笑风生,身置其中
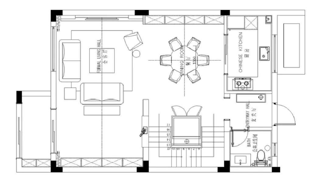
Ground Floor | 一楼
"圆"是藏不住的思念在几千年的文化里,圆成了中国人情感抽象化的符号。整个多层空间都被“圆”衔接起来,那些藏在设计里的圆,被赋予了无尽的情感寄托。
餐厅拥有大量的展示柜满足了爱好收藏的业主。传承、融合、创新一直是我们的设计理念。选择用简洁柔美的线条来营造东方清秀雅致的韵味,并以选材的质感加以凸显。
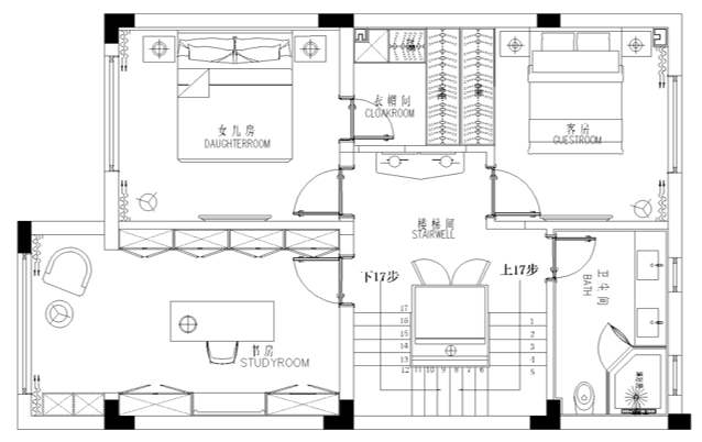
Second Floor | 二楼
临窗静读从山野到书房一盏茶,一炷香无事此静坐,一日似两日安妥心灵,舒缓身躯
Third Floor | 三楼
设计予以对自然与生活的尊重
生活和心情都要留白
电视背景添加了水墨元素
温润细腻的原木色卧室将心境交予窗户
所见晨曦或夕阳晴天或雨雪皆来自大自然
主卫功能区明确划分三分离的设计双台盆,马桶间,淋浴间彼此独立互不干扰整体设计上也更加清爽,整洁
Attic| 阁楼
方寸之间,皆是生活
慢煮几株花,熬成一方春
花园露台和下午茶治愈了一切
Outdoor Garden| 户外花园
户外花园
寻味生活
归心之所
▷End
椒江:开发大道1500号东泰·万华汇五楼
路桥:银安街127号天和壹号商铺
黄岩:西城街道世纪大道10-4号
温岭:横湖中路8号安颐酒店3A楼
客服
消息
收藏
下载
最近








































