查看完整案例


收藏

下载
点击蓝字
邂逅品质生活
传统中式建筑的工匠情怀,给予我们无限灵动的时代音符,这也是为何现代人对于中式居住方式重掀喜爱浪潮的缘由。中式生活方式仿佛是每个中国人与生俱来的追求,空闲时与自然相守,与好友谈心,感悟生活的要义。以往的芭蕉听雨,逗弄锦鲤,此刻都成为现代人追逐的心境。
本案的业主为知识分子家庭,对传统中式有很强的感情,由于身在建筑设计院工作,对新鲜事物的接受能力也很强,所以设计师选择了业主钟爱的新中式风格。同时,出于夫人对温暖柔和的米色调的钟爱,所以将色彩定位。
Project Details/项目详情
Location:Beijng, China | 北京•上城郡
Chief Designer: 李 艺
Area: 180
ProjectStyle:新中式风格
设计这个别墅,去繁删奢,呈现出来的唯美意境与舒适的生活方式,才是设计师最终的目的。
设计赏析
Design appreciation
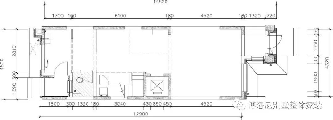
本案中整栋楼的结构设计为单层,面积较小,楼层较多,这样使得一家人各自都有私密空间。
F1
一层原结构厨房空间很小,所以在设计上对原结构改动较大,拆改出了一个较大且方正的开放式厨房。
院子有入户小草坪和北侧后花园,后花园可以荡秋千、喝下午茶、种菜,丰富业主退休后的生活。
温暖的米色壁纸,乌金木色的家具,再点缀上跳跃的橙色沙发,温馨的家跃然而出。
客厅与餐厅原结构上为联通的空间,这里设计增添了一个透景的小格栅屏风,再配以精致的小条案,摆上小盆景,有趣的小景增添空间的情调,也分割了两个空间。
餐厅虽然没有自然采光,但通过灯光设计,营造出一个水墨意境的就餐环境。用整幅水墨壁纸、米色磨砂皮餐椅,以及山峦形水晶吊灯,给人暖暖的感觉。厨房岛台是女主人最喜爱的地方,两种配色的橱柜,分别呼应吊顶和地面的颜色,让空间柔和有层次。
厨房改造后为方正且宽大的开放式厨房,橱柜的设计采用了现代款式并用两个颜色搭配起来,烘托米色调的整体氛围。
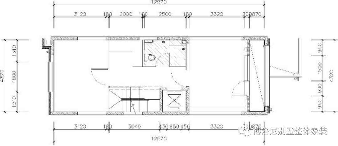
F2
二层为男孩房及禅室。原有格局没有大变,只是把男孩房的阳台包含进了室内,增大了卧室的使用面积。
业主的儿子喜欢简约现代风,所以在设计上以简约为主,加入了一些浅色调的原木材质,和同色系的床品、地毯,温暖而舒适。
卫生间保留原有格局没有改动,因空间较小所以做了特殊形式的设计,并在色调与质感上同卧室一样为白色加原木材质,简洁实用。
F3
三层做了创造性的改动,把露台改为主卧卫生间,而把原有卫生间的位置改为舒适宽大的开敞式衣帽间,这样整层的配套,很好的满足了业主的功能需求。
整幅壁纸背景,突出了床的仪式感,同样米色调配上乌金木,打造出女主人最爱的柔美和温暖。
主卧卫生间为新建阳光房区域,有很好的视野和采光。干净利落的白色调很好打理,同时又使空间宽敞明亮。
F4
四层为女儿房,女儿在国外较少回来,但温馨的居住感对父母来讲还是十分重视,所以做了套间设计,解决了收纳和隐私需求,同时在色调的选择上选择低彩度的灰粉色和米白色,干净而雅致。愿在这样的家中,业主一家能够拥有自己想要的生活,彼此相爱,温馨一生。
注:项目交付将第一时间为您呈现实景图
设计师风采丨李艺博洛尼别墅特级主任设计师
教育背景
中国建筑装饰协会高级室内设计师
ICDA注册设计师丨
ICDA注册软装设计师
毕业于浙江理工大学丨
研修于清华大学美术学院
设计理念
室内设计追求以人为本,为满足人居需求和审美需求而存在
那么建筑设计则是以自然为本,为满足建筑与自然的和谐而存在
获奖经历
搜狐家居设计大赛优秀奖丨
金点奖金奖丨
筑巢奖优秀奖
擅长风格
现代轻奢/现代极简/新古典/新中式/新装饰主义风格
近期设计项目
恒大丽宫/优山美地/中粮瑞府/首开朗樾/景粼原著/北京院子/格拉斯小镇/凯德麓语等
Boloni 别墅家装
专注别墅丨大宅设计
以人为本
为生活而设计
— END —
长按关注查看更多实景案例欢迎到店体验北京市朝阳区顺黄路25号博洛尼别墅旗舰店博洛尼别墅设计中心
客服
消息
收藏
下载
最近





















