查看完整案例


收藏

下载
项目信息
项目名称】:西山艺境
项目面积
】:460
项目户型:联排别墅
项目风格:轻奢混搭
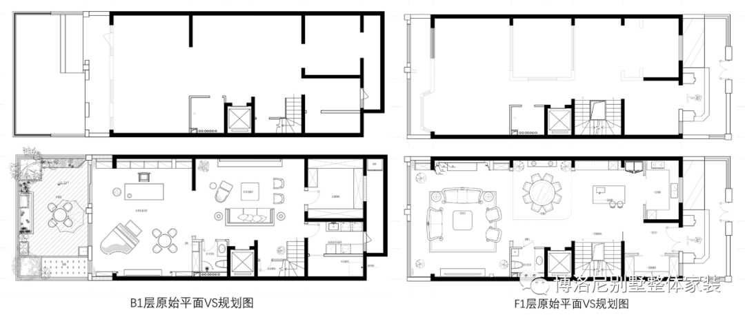
“结构规划”:让生活动静分离
Static and dynamic separation
三代同堂的家庭格局,逐渐成为一种甜蜜的负担。
充分考虑到三代人对于生活空间的需求
通过重构空间实现舒适居住体验的最大化
01
B1层:三代人的“守望空间”——
F1层:盛放团聚时光 ——
图片| F1层客厅效果图
整个空间以融入轻奢元素的现代简约风格为出发点,在注重传递高级、优雅、舒适的核心之上,增添了诸多富有趣味的细节,在点睛亮色的映衬下,让低调沉稳但稍显平淡的高级灰调,变得更丰富,更饱满,更温暖。
图片| F1层门厅效果图
图片| F1层餐厅效果图
极高的挑高拉伸了空间的纵向视觉,搭配以水晶吊灯作为空间的中心,为空间增添灵动和活力。
正下方搭配象征“和谐团圆”的圆形餐桌,牢牢锁定了开放式空间中的核心。沉静大气的绿色与自由铺陈的金色花朵装饰,让餐厅空间洋溢着盎然春意。
图片| F1层西厨效果图
03
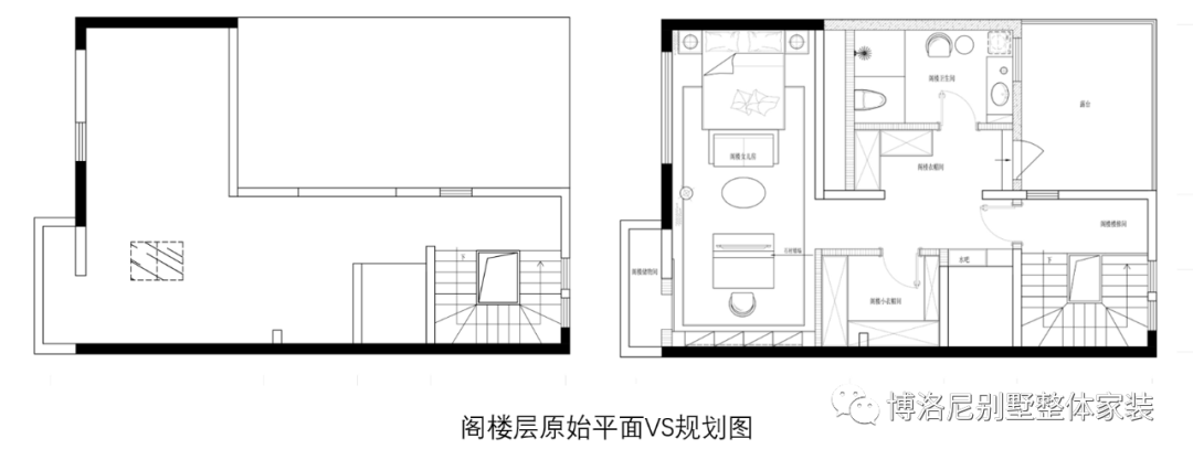
F2-F3层:私享舒居大境——
图片| F2层主卧效果图
良好的睡眠质量离不开给人带来沉静、平和之感的空间设计。设计师在此用心良多,体现在柔软丝滑的地毯、圆弧形态的床与沙发、透与不透灵活掌握的窗帘、明亮柔和的简约灯饰以及于高级灰之间绽放的明媚橙黄布艺......
图片| F2层起居室效果图
图片| F3层女孩房效果图
女孩的房间总是洋溢着甜美柔软的气息。整个空间最为醒目的当属生机盎然的热带雨林图案的墙饰,将自然的生机活力尽展无疑。
宽敞的空间没有阻隔,但合理的安放了收纳、学习、休闲和睡眠的区域,造型别致的扶手椅与大幅画作,烘托出房间的艺术品位。主案设计师
刘航
钛马赫设计师
从业年限:19年
教育背景
毕业于德国斯图加特大学环境工程学院
注册高级设计师
CIDA中国室内装饰协会
设计理念
设计不仅是一次艺术的自我旅行,更不仅仅是一种销售工具,设计源自对人们各种需求做出智慧的、富余创造性的有力回应,并于传统文化、社会经济、自然环境将其融为一体
代表作品
润泽御府 西山艺境 滟澜新宸 万城华府 西山壹号院 棕榈滩 莱蒙湖 北京院子 鲁能七号院 新世界丽樽 北京国际花园 亚运新新家园 东方普罗旺斯 东山墅 龙湾别墅 紫玉山庄 龙山新新小镇等
— END —
Boloni别墅家装
专注别墅丨大宅设计
以人为本
为生活而设计
长按关注
查看更多实景案例
欢迎到店体验
北京市朝阳区顺黄路25号
博洛尼别墅旗舰店
博洛尼别墅设计中心
客服
消息
收藏
下载
最近














