查看完整案例


收藏

下载
让时间缓缓的进入时光里
为传统素材注入创新灵魂
完美诠释美发设计过程
Let the time slowly into the time
Inject innovative soul into traditional material
Perfect interpretation of hair design process
视觉表现
跳脱了一般商业空间的框架
将发廊变身为独到的艺术展演空间
而美发则成为生活中
充满意义的事物。
Out of the frame of the general commercial space, Turn the hair salon into a unique art performance space, And hairdressing becomes the life, Something full of meaning.
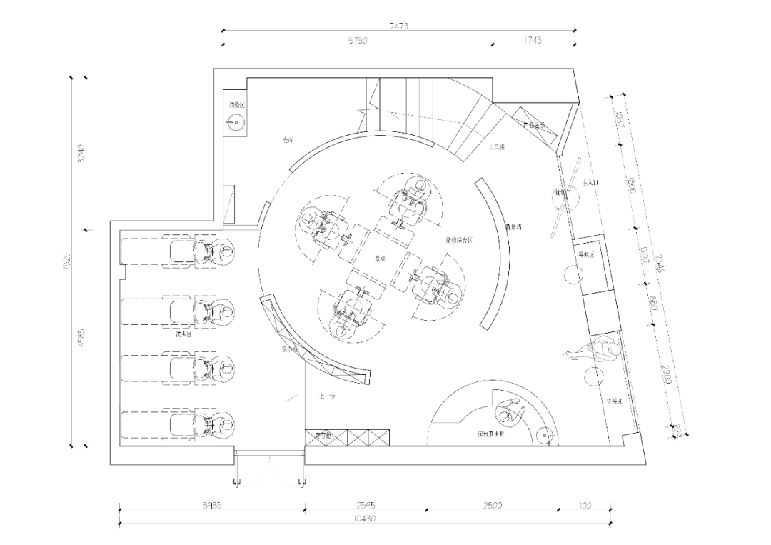
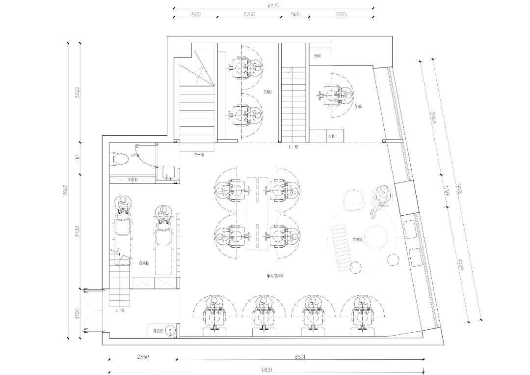
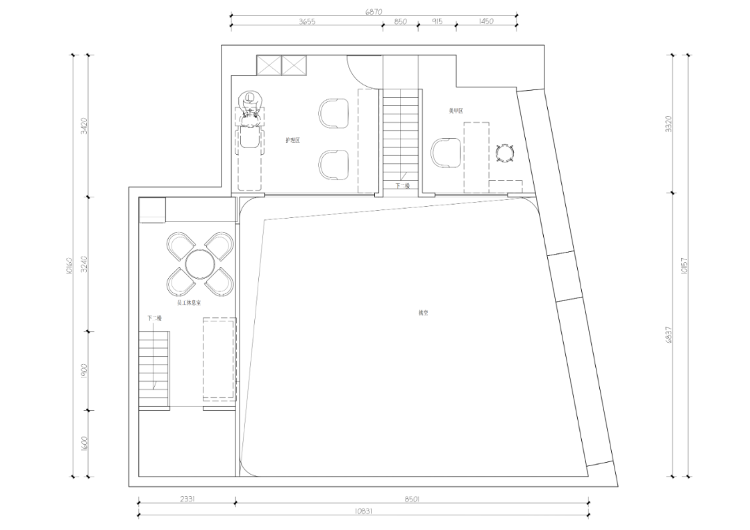
平面布置
1#
/点击图片 放大查看/
2#
/点击图片放大查看/
3#
/点击图片放大查看/
在快节奏的城市生活中专注于从传统理发店的概念中去除所有不必要的细节,创造一个干净、简约的内部空间,将重点转移到客人和工作人员的舒适上。
Focus on the concept from the traditional barbershop, Cut out all the unnecessary details, To create a clean, minimalist interior, Shift the focus to the comfort of guests and staff.
「设计师:陈伟键」
项目名称 | COCO丽舍
项目地址 | 福州东二环泰禾广场
新天地15号楼2层230商铺
项目面积 | 210㎡
主创设计 | 陈伟键
参与设计 | 林郭辰 赵煦文 黄国梁
室内设计 | 陈伟键
设计时间 | 2021.09
完成时间 | 2021.11
福建大天建筑装饰设计有限公司
福建大天建筑装饰设计有限公司成立于1998年
建筑装饰专项甲级设计资质
消防工程专项设计资质
业务涵盖酒店、医疗、交通、办公、商业、文教、地产、豪宅等领域
大天始终以“价值第一、成就伙伴”为宗旨
牢记使命,不负所托
为客户也为社会奉献了大量优秀的作品
大天正携手更多伙伴
共同开拓未来,迈向世界
福州总部:福州市世纪百联16层
厦门分部:厦门市观音山国际商务营运中心
客服
消息
收藏
下载
最近

























