查看完整案例


收藏

下载
项目名称:博林天瑞
项目地址:深圳南山区
项目类型:复式
设 计 师 :艺无界设计团队
项目类型:私宅全案
文 案:小微
我们的倡导------
元素提取
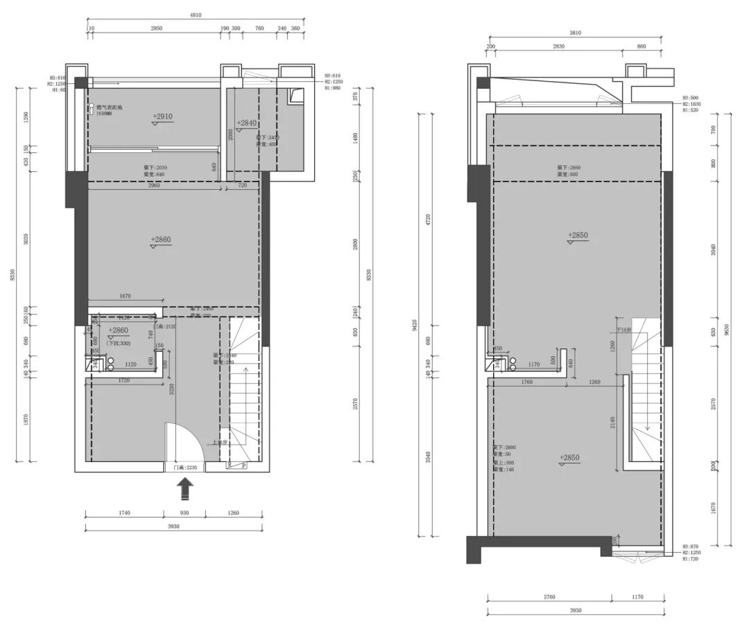
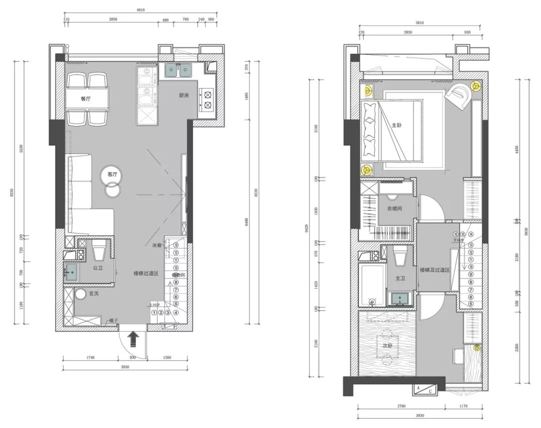
向左滑动查看平面方案
灰雾色墙面乳胶漆、清爽干净的小白砖、灰白色储物柜嵌入果绿色套柜,在有限空间里打造不凡的空间气质。楼梯左侧充满韵律的扶手通向二楼,右侧扶手实木暗藏线性光。裸露的清水混凝土梁与空间的气场完美融合,电视背景墙材质与构造比例,历久弥新。
这是一次民宿与家的设计探索,如何把诗与远方搬到家里来是我们设计的出发点。粗犷的原木谷仓门、沙发背景几何构造置物架,祖母绿与冷灰色调的碰撞,让倦鸟归巢,让家引向了诗和远方。
我们试图在每一个空间找到与屋主性格契合的平衡点。
在设计上追求的是功能与形式的契合点,让主卧具备舒适的睡眠体验。
鞋柜套柜木板的延伸,打破镜子的呆板印象。
公卫墙地面爵士白瓷砖与马桶后仿木纹砖的搭配,让原本冰冷硬朗的洗手间增添了一丝温馨暖意。
长虹玻璃,在于它的几何线条纹路的质感秩序井然,让空间更加通透。
儿童房地面采用可低矮的地台暗藏线性光,墙面采用的莫兰迪色系相互碰撞,在软装搭配上多采用墨菲斯风格的挂画与灯具,既符合业主审美,也能满足孩子的童真稚趣。
三平米的衣帽间,在柜体设计上采用半开放式衣柜,宽敞、便捷。
二楼洗手间空间鸟瞰图
客厅软装搭配
卧室软装搭配
————END————
| 私宅 |民宿| 办公|餐饮|
:13713589870 1599966327015999663270szyiwujie
办公地址:深圳市南山区海王大厦A座20D
客服
消息
收藏
下载
最近























