查看完整案例


收藏

下载
项目名称:星河明居
项目地址:深圳福田区
项目面积:65㎡
设 计 师 :艺无界设计团队
施 工 方 :博传建筑装饰
项目类型:私宅全案
摄 影 师 :脚印
完工日期:
2018.12
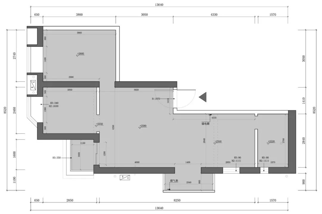
平面布置图往右滑动查看→→
设计师说:王小姐平时工作非常忙碌,却不影响她对生活的热爱。也许受华为工作方式影响,她把对家居的使用需求、家里原有的物件规格、数量等有条不紊的罗列在表格上,我们被她对生活的态度所感动,努力便无关于金钱时间了。落地实施的过程一波三折,还好有项目经理鼎力相助,让我们的设计最终得以落地。王小姐对设计师的依赖让我们的工作不敢懈怠,设计道路漫漫长,一切仍源于对设计工作的热爱。祝愿她的家居生活越来越美好。田承茂
2019.12.31
利用沙发背景墙将储物柜、空调、沙发角几与层板结合在一起。
客厅无茶几设计让人在客厅里的动线更加自由。
绿色背景墙让空间更加鲜活,背景墙上的书籍摆件让有烟火气的生活充满了艺术气息。
鸡蛋椅与手鼓的搭配让一家人的生活欢欣鼓舞。
最有意义的装饰品莫过于层板上是小主人的油画作品。
小黑板嵌于谷仓门内,营造了接地气的真实生活场景。
蜂窝形六角砖与木地板的拼贴很考究“师傅”的匠心;门帘的使用让厨房空间更加灵活。
艺术廊道。
向右滑动查看更多
长辈房升降台与双向推拉门,实现了私密空间与公共空间的转换。衣柜的裸空玻璃隔断,增加了长辈房的通透性与功能性。
女孩房空间的巧妙利用,在7平米的空间里实了两个睡眠区加学习区的功能。
通过衣柜、书桌、榻榻米、书柜、梳妆台的魔方组合,让主卧的生活更加从容。
原现场照片
————END————
| 私宅 |民宿| 办公|餐饮|
:13691898327 13713589870szyiwujie
办公地址:深圳市南山区海王大厦A座20D
客服
消息
收藏
下载
最近

























