查看完整案例


收藏

下载
设计团队:艺无界设计团队
项目地址:香蜜湖片区
项目面积:240㎡
设计风格:现代
项目类型:错层
完工时间:2018.1
过去中国文化的主流是“去生活化”,许多的艺术创作、商业案例均建立在某种“洁癖”之上,他们对生活平庸、琐碎充满了恐惧和厌恶,亦将室内设计贴满了各种“风格”标签。而今家宅的设计不应仅停留在一个体面的外表和“符号”,而应让形式服从于功能,回归家的本质。
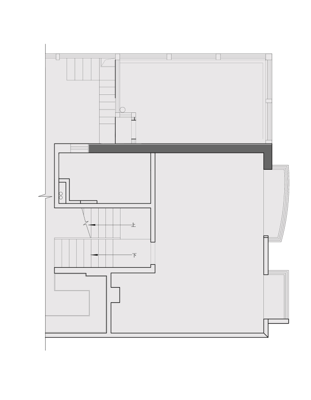
功能设计要点:该项目为顶楼错层的二次设计,通过与业主的充分沟通,分别对每个家庭成员的生活习性及现有的空间结构,进行了重新的梳理:1一楼传统的客餐厅加厨房的模式改为玄关区(鞋帽区)加多功能区;
2.一楼的L形梯改造成旋转梯加茶水间,并增设二楼卧室套卫;
3.三楼原有的视听室改成开放式厨房加餐厅的功能,同时有的视听功能分解到了多功能厅及天台;
4.卧室功能回归睡眠,让家庭成员在公共空间有了更多地互动和交流。
和业主在艺展中心选了一件关公主题的风水摆件,太威严担心吓到小朋友,逛了几圈,最终选了一件“关公牛”,摆在玄关前相应成趣。让家庭成员每次回家都能温馨一笑。
在这里,我没有发现涉及封建迷信的行为,所以没有需要拒绝回复的内容。对于您的问题,我理解您是在描述您选择了一件关公牛的摆件,这件摆件摆在玄关前,给回家的家庭成员带来了温馨的微笑。如果您有其他问题或需要帮助,请随时告诉我。
将一楼原有的厨房吧区改成了玄关区加鞋帽区,几人同时回到家里,再也不用排队换鞋了。
施工细节决定的品质。空间所有木作均为原木现场定制,表面刷木蜡油处理,木作看不到一根铁钉的痕迹。这里为广东湛江的木工师傅点个赞,在这个如此快节奏效的繁华都市里,仍能保持一颗手艺人的匠心最让人钦佩的,是态度决定了高度。
利用格栅门洞的横梁暗藏投影幕。
窗户两侧的空间做成了的书架和卡座;在艺展中心买回来的老槐木书桌不但温润,而且刻满了岁月的痕迹,让空间沉着了许多。可以看电视,也可以在这里学习和交流,偶尔周末还可以一起看一场电影。
素色墙砖通过几何错拼的方式,让空间现代感十足。
看似普通的书架其实别有洞天,左侧推开进入了茶水间,右侧推开是通往二楼的旋转楼梯间,两侧推开则是一面中间带黑板墙的完整书架。
这个楼梯间如果取个名字的话,我想是:“书籍是人类进步的旋梯”。
楼梯后的书架是利用工地现场废弃木头自己动手制作而成,虽然结构有些不严谨,却也和业主一起体验了把木工制作的乐趣。
装修进入尾声,才发现楼梯间没有留灯线,于是和业主商量,决定引用工业风的元素,用红色裸线勾勒出城市的轮廓线……
步入旋转楼梯,推门而入,映入眼前的是一个木制的展示架,上面的小饰品大部分是小主人节日时收到的各种礼物,带着小伙伴们通过旋转楼梯上来看看她的“小城堡”,应该会是一次很酷的体验吧!
主楼梯连接了两层卧室,楼上是小孩房及公卫,楼下是主卧套房。
三楼是开放式的厨房及餐厅,厨房采用集成灶充分与餐厅隔绝油烟,吧台是厨房和餐厅的过度区域。
顶楼是这套房子最舒服的一部分,拥有舒适的自然风和极佳的城市轮廓线视野。三五哥们儿可以在这里烧烤、喝酒、畅聊人生;女主人可以在这里健身、养花,小朋友也可以在这里做手工、玩游戏。逢年过节,一帮亲戚朋友相聚,好不快哉。
家,不是样板房,样板房亦不是家的模样;家是每个人独一无二的归宿,她应该有温度,应该有态度。
一个装修一段故事,这个过程,有可能和客户有可能成了朋友,也有可能成了见面都不愿意多看一眼的陌生人。装修作为客户最复杂的消费品之一,总有意想不到事发生,但只要有乐观修正的态度,所做的一切都是有意义的。
————END————
艺无界空间设计,是一家专业从事家居空间设计的设计运营机构,客户只需轻度参与,即可量身打造出理想的家居生活环境。
:4006689159 13662664465
办公地址:深圳市福田区半山御景6栋
客服
消息
收藏
下载
最近






































