查看完整案例


收藏

下载
写在前面
纯净、自然、质朴
注重人与空间的关系
在喧闹中独立
在情绪中包容
在快乐时放肆
在难过时治愈
在每一个角落注入温暖
这就是家的艺术感
Pure, natural and simple
Focus on the relationship between people and space
Independent in the noise
Be emotionally inclusive
Indulge in happiness
Heal when you are sad
Inject warmth into every corner
This is the artistic sense of home
客厅Aliving room01
繁华犹如云朵。内心的纯粹才是背后的归所。
在客厅的布置上,将阳台纳入客厅,取法自然,空间以经典大气的原木、白灰黑色调为主色调,自然纯粹的感官感受,营造出舒缓、雅致、自在的空间氛围,述说温暖的眷顾。
Prosperity is like clouds. The purity of the heart is the place behind it.
In the layout of the living room, the balcony is incorporated into the living room, which is natural. The space is mainly colored with classic and atmospheric logs and white gray and black tones. The natural and pure sensory feeling creates a soothing, elegant and comfortable space atmosphere and describes the warm care.
餐厅Restaurant02
几何图形相互穿插贯穿细节和氛围的亲和力,借由家具材质、形态与空间恰如其分的互动缓缓展开,色彩的暖,材质的温润,阳光的柔,让整个家的氛围在此凝固,心生欢喜。
Geometric figures are interspersed with each other through the affinity of details and atmosphere. Through the appropriate interaction between furniture material, form and space, the warmth of color, the warmth of material and the softness of sunshine make the atmosphere of the whole home solidified and happy.
厨房Kitchen03
半开放式厨房纹理感出色,设计上充满和谐、舒适的感觉。
创造任何装饰性或无用的结构,只会使内部复杂化。设计试图让一切尽可能简单和简洁。
The texture of the open kitchen is excellent, and the design is full of harmony and comfort. Creating any decorative or useless structure will only complicate the interior. The design tries to make everything as simple and concise as possible.
主卧Project Address04
主卧室舒适温暖,光线以柔和、温馨、富于变化为原则,诠释着业主对美的品味追求与超凡脱俗的气质。
The master bedroom is comfortable and warm, and the light is soft, warm and full of changes, which interprets the owner’s pursuit of beauty and extraordinary temperament.
次卧Project Address05
设计师以极简时尚为纽带,用材质本身的色调与肌理表达空间质感,恰到好处的唤起生活与艺术的平衡,简约却不乏精致,低调中透露温馨。
The designer takes the minimalist fashion as the link, expresses the spatial texture with the tone and texture of the material itself, appropriately evokes the balance between life and art, is simple but not lack of refinement, and reveals warmth in a low-key way.
走廊Corridor06
在生活动线下,聚焦生活氛围,定格在每一帧。
Under the moving line of life, focus on the living atmosphere. fixed in every frame.
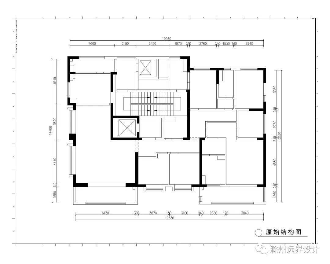
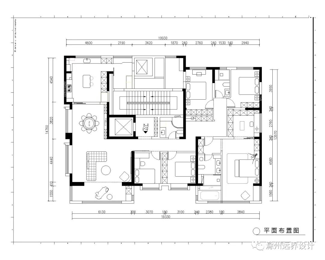
设计图纸
项目原始户型
项目平面图
设计单位丨Design:远界设计
项目地址丨Project Address:合肥·天鹅湖MOMA
面积丨Square Meters:295 ㎡科技住宅
风格 | Project Style:自然 极简
户型 | House Stype :5室2厅1厨3卫
地址 | 滁州市南谯区醉翁西路与永福路交叉口(永乐幼儿园对面)
客服
消息
收藏
下载
最近





























