查看完整案例


收藏

下载
本案是一栋5层的独栋别墅,面积550㎡。屋主是一对痴迷重型机车的夫妻,他们热爱自由,狂放不羁。暗黑系的现代工业风,完美地呈现出屋主的个性与对生活的追求。
别墅分为负二、负一、一、二、三楼,负二楼为影音室,负一楼为多功能休闲区,一楼为客餐厅,二、三楼为卧室。
01VIDEO LAB
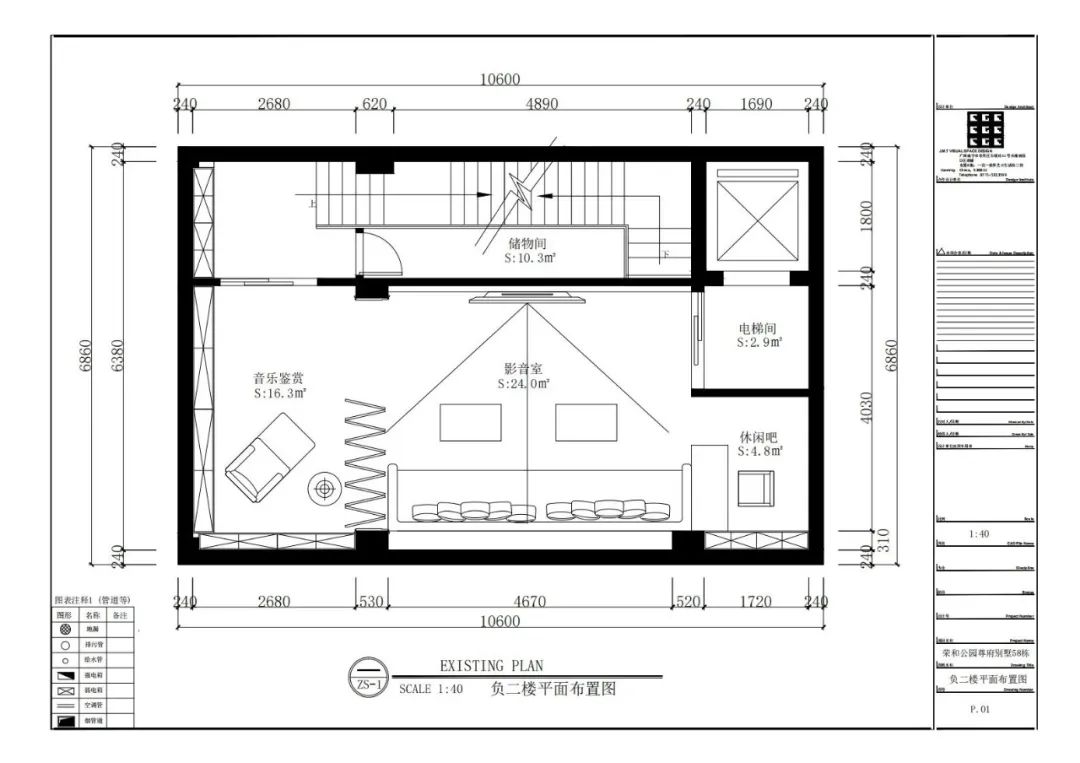
负二楼影音室
隔音、灯光的把控是影音室的关键。
影音室设置在负二楼,很好地把控住这两点。
为了使得影音室的声音效果更佳,我们在墙面上都使用了软包吸音材料。
P. 01负二楼影音室
影音室以黑色为主色调,通过灯光的合理分布,明暗有度,烘托气氛,视觉感观更立体,为屋主营造了高品质的居家娱乐生活。
P. 02负二楼影音室
P. 03负二楼影音室
P. 04负二楼影音室
02LEISURE AREA
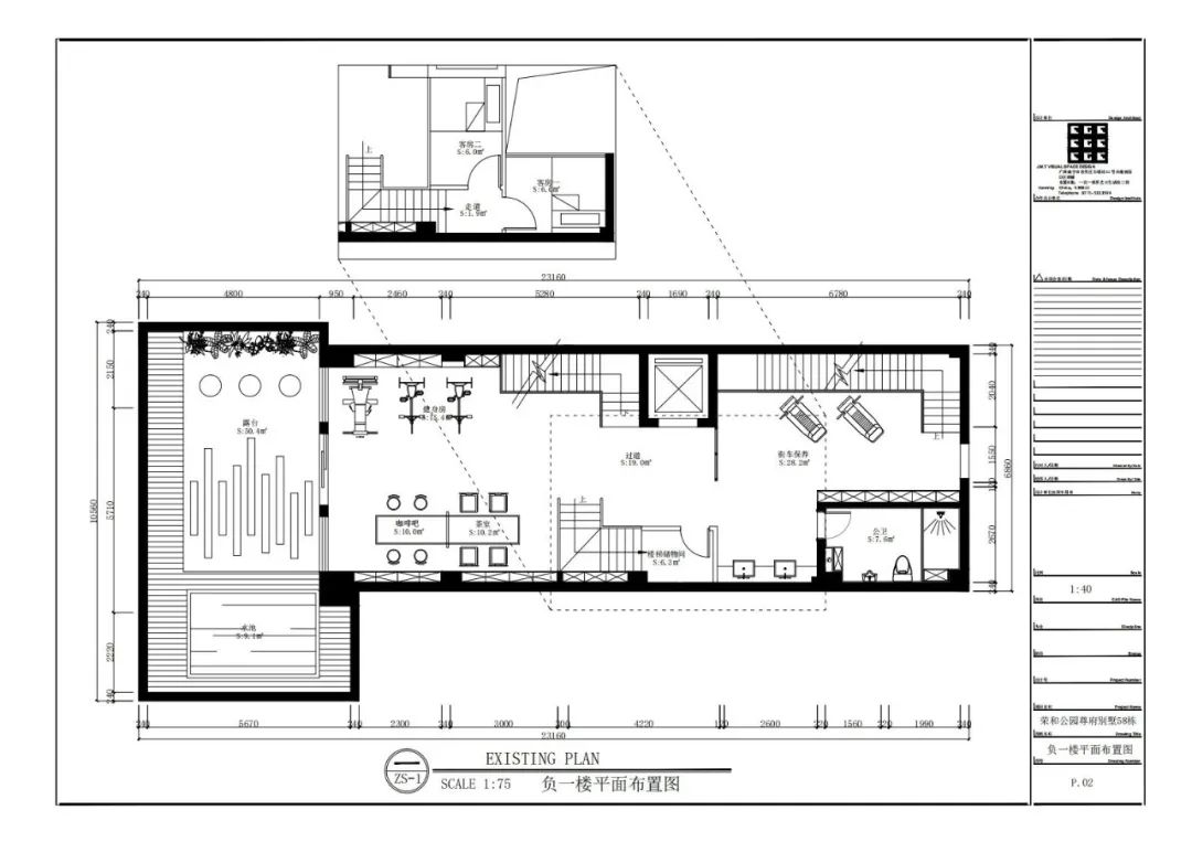
负一楼多功能休闲区
作为家居中一个功能比较齐全的地方,休闲区不仅能够体现主人的个性化生活,也展现出家居环境的独特性与趣味性。休闲区设置在负一楼,室内有健身区、茶室、咖啡吧、摩托维修区,户外为车辆停放区,各类设施布置合理,满足屋主的不同生活需求。
P. 05负一楼多功能休闲区
P. 06负一楼多功能休闲区
P. 07负一楼多功能休闲区
P. 08负一楼多功能休闲区
P. 09负一楼多功能休闲区
P. 10负一楼露台
负一楼的露台延伸了休闲区功能。
蓝色泡水池像一块宝石嵌在庭院中,几株绿色植物作为点缀,搭配上休闲沙发,营造出舒适闲散的氛围。
P. 11负一楼露台
P. 12负一楼露台
03LIVING ROOM
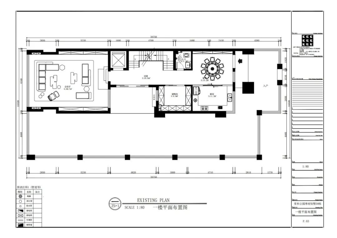
一楼客厅
别墅整体空间以现代风格为基底,并带入些许轻工业风调性,因屋主的性格爱好,特别将暗黑系作为室内的色调设计。客厅宽敞而通透,灯光、沙发、地毯搭配恰到好处,即便使用了大量的灰黑色调,也不显压抑。
P. 13一楼客厅
P. 14一楼客厅
P. 15一楼客厅
04
OLD PEOPLE’S ROOM
THE CHILDREN’S ROOM
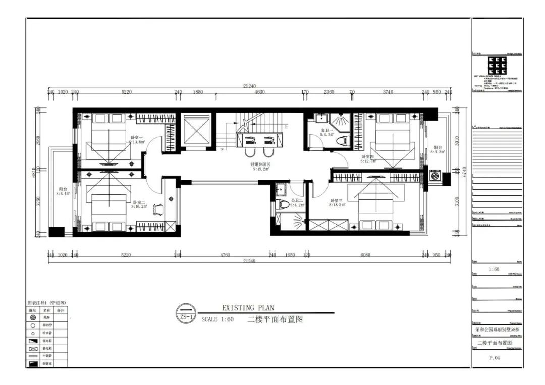
二楼老人房、儿童房
二楼共设置了4间卧室,其中2间老人房,1间男孩房,1间女孩房。
P. 16二楼老人房
老人房用色较为素雅,以白、灰为底色,为空间营造宁静淡雅的基调。
P. 17二楼老人房
儿童房荡开一笔,以跳跃的色调
开辟一个趣致灵动的空间。
P. 18二楼男孩房
P. 19二楼女孩房
色彩明快的窗帘、椅子、枕头,简单而活泼,赋予房间跳脱出空间整体氛围的别样风潮。
05MASTER BEDROOM
三楼主卧、露台
P. 20三楼主卧
屋主夫妻都是热爱阅读的人,他们都有睡前阅读的习惯,在主卧设置一个简易书桌,学习休息两不误。
P. 21三楼主卧
高低错落的屋面也让空间多了些许的丰富性。
P. 22三楼主卧衣帽间、卫生间
P. 23三楼主卧衣帽间、卫生间
P. 24三楼露台
屋顶是一个浪漫的地方,露台设置一个书房和一张简单的桌椅,在繁星点点的星空下,在远离城市喧嚣的平台上,即可安静阅读,又可以和亲人、朋友交换心情,让思绪隐没在城市的天际。
06PLAN
平面图
P. 24负二楼平面
P. 25负一楼平面
P. 26一楼平面
P. 27二楼平面
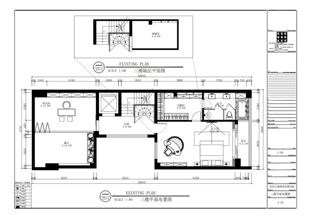
P. 28三楼平面
项目信息:项目名称:荣和尊府别墅室内设计
建筑面积:550m²
设计单位:广西九门堂建筑装饰工程有限公司
设计团队丨
总设计师:肖文骞
设计总监:梁声陈
设计部常务副总监:马啸宇
本项目首席设计师:陈乙菠
本项目设计组成员:李广田
丨设计师简介:
陈乙菠丨BOBO九门堂首席设计师
布雷幼儿园丨东盟中央城丨南宁市中小企业公共服务大厅
2011年毕业于北海职业学院。从事设计行业近10年,有着极为丰富的设计经验,专注于酒店、餐饮、办公空间、高端住宅设计等,勇于打破常规,方案设计表现独到。
丨公司简介:
关于J.M.T VISUAL SPACE DESIGN
广西九门堂建筑装饰工程有限公司
J.M.T VISUAL SPACE DESIGN创立于2014年5月,是一个强调整体整合设计的专业团队,主要从事建筑设计、品牌设计、室内设计、环境景观设计、软装设计及施工等多元经营的设计公司,设计范围涉及集合住宅、独栋住宅、酒店、商业空间、办公室等建筑及室内设计。
九门堂的设计特色在于结合艺术、场所及都市等多重文化议题,依循空间主体性质,演绎空间的自明性。我们认为每个空间都应有其自身散发出的一种特有的表情,这个表情除了建立在我们对空间组成的基本看法,更重要的是空间本身的使用性质及使用者对于空间的使用态度,空间的表达不只是一种形式,它更是一种行为模式,每个方案皆是我们与使用者共同激发灵感、共同成长造就的一个全新的作品。
荣誉丨WARDS
■2015年
荣获艾特奖最佳商业空间设计 入围奖
荣获艾特奖最佳文化空间设计 入围奖
荣获艾特奖最佳会所空间设计 入围奖
荣获艾特奖最佳办公空间设计 入围奖
2019年荣获
第六届INNODESIGN PRIZE
室内设计餐饮空间类 银奖
荣获
第六届INNODESIGN PRIZE
室内设计酒店空间类 铜奖
荣获
艾鼎奖
室内设计餐饮空间类 优秀奖
■2020年荣获
华鼎奖
室内设计餐饮空间类 金奖
荣获
华鼎奖
室内设计酒店空间类 银奖
荣获
华鼎奖
室内设计娱乐空间类 银奖
客服
消息
收藏
下载
最近

































