查看完整案例


收藏

下载
一到夏天就是大家吃小龙虾的季节。在夏天,没有什么是一顿小龙虾解决不了的。如果有,那就再多两斤!
品牌设计
1
“呱呱龙虾”Logo设计
logo定位:“呱呱”--一个可爱生动的龙虾形象,他外表嚣张,内心狂热,有着霸气的虾鳌,犀利的眼神,一副一代宗师(xiā)的味道。配合年轻时尚的消费人群画像,拟定出嚣张的设计基调。logo主要色彩选择红、黑,为主色调。明亮的红色会有增加人食欲的作用,配合传统文化的中文毛笔字,使整个logo即生动又酷感又富有文化底蕴。
“呱呱龙虾”Logo应用效果
△筷套应用展示
△打包盒应用展示
△手提袋、打包袋应用展示
△代金券应用展示
△纸巾盒、湿纸巾应用展示
空间设计
本案从中国传统建筑出发,吸取中式建筑装饰大气端庄的特点,灵活运用窗花等元素进行再设计,大胆运用红色作为主色,明亮的色彩进行点缀装饰,整体大气又 不显得过于稳重、沉闷,在加上霓虹灯管的运用,使得空间更加有氛围、更加有层次感。
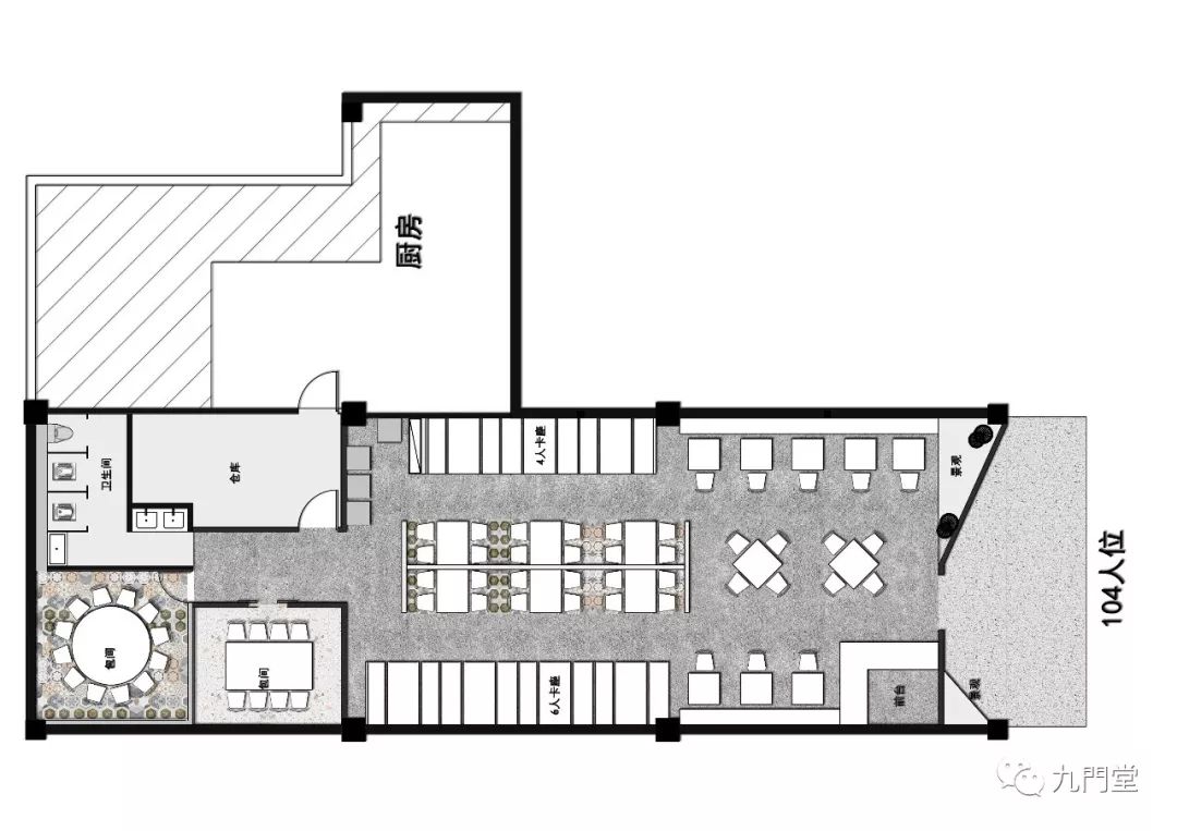
1“呱呱龙虾”平面图
平面定位:门头内退增加等候空间,预留空间营造氛围,增加门头的独特性,同时形成一面朝路边的一面形象墙,增加识别度;双动线,增加人流行动的流畅性
2
“呱呱龙虾”效果图
门头是给人的第一印象,是店铺品牌文化和气质的集中呈现,在这方寸之地展示出自己独特的面貌和格调,第一眼吸引消费者
△门头效果
前厅位置我们采用散座的形式,此设计能让人感觉很热闹,有在路边撸串的氛围。
△前厅效果
二人、四人、六人位、卡座、包厢的分布设置,增加选择性
△卡座效果
△卡座效果
△包厢效果
△包厢效果
△卫生间
效果3
“呱呱龙虾”实景图
还想看到如此好的设计请快快关注我们吧让我们一起为你的生活打造独一无二的“亮点”想聊的设计梦想想要的设计风格想找的设计大师这里有您九门堂地址:广西南宁市兴宁区松柏路31号兴宁创业园一号楼五楼觉得不错点个赞哦
客服
消息
收藏
下载
最近


































