查看完整案例


收藏

下载
“七溪流水皆通海,十里青山半入城。”——明·沈玄常熟有着三千年吴文化浸润温养的城市自然美色与人文景观相辅相成的城市造就了当地的人文品格与文化精神设计中更关注的是人与自然、与空间的关系建筑是空间的载体设计师巧妙借景造景将景观与阳光引入日常生活空间将自然与情感载入空间力求展现人在空间中的互动与体验感庭院
Courtyard
本案是独栋别墅
设计师巧妙借景造景将自然风景与阳光引入日常生活空间开辟出独具一格的别墅式院落私宅致献城市理想生活
庭院是珍藏在家中的自然,是人们安居的梦想,更是浸润在国人骨子里的情怀。庭院之美,在于其既有诗情画意之幽,又有超然外物之美。将二层的露台打造成素雅的露天喝茶区,四面均可欣赏风景,正可谓绿树苍苍,禅境一方。举杯对茶饮,谈笑红尘中。客厅。
LIVING ROOM
本案业主是一位追求高品质的成功人士,渴望简洁明快的生活格调,希望空间能够简单、大气、富有质感。家在本质是一个回归与团聚的地方。设计师坚持以人的需求为出发点,剔除一切繁杂与干扰,以阅读和交流的目的来规划客厅。嵌入式书柜、沙发组合、小圆几,以一种亲昵的姿态围绕在客厅里。对开门设计则使客厅秒变成不受干扰的会客空间。餐厅。
DINING ROOM
轻奢并不是表面上所看到的高调奢华,而是对质地、细节、氛围等核心的延伸与塑造,是对自我生活方式的解读。餐厅充满阳光的味道,不同时段的光影交错、明暗变化,让餐厅空间更加鲜活。餐边柜+水吧台的组合,延展了厨房的收纳空间。厨房。
KITCHEN
金属色是营造气质的首选
更加凸显厨房的通透感
设计是对美好生活的引领
挂架收纳大幅提升厨房墙面空间的利用
做饭炒菜操作更加方便
一日三餐变得让人期待
楼梯STAIRWAY
楼梯不仅是连通上下空间的通道更成为了家里必不可少的一道风景线旋转楼梯的层次递进之美让优雅的空间显得不那么单调吊灯如星空般点亮天空为空间注入一丝柔软与细腻卧室
BEDROOM
不规则天花板暗藏灯带
用料考究的床品提升空间质感与触感
将卧室的整体格调再次加强
低饱和度灰的搭配妆点出平和沉稳的视感
古典的吉他亭亭而立
奢美而迷人
步入式衣帽间收纳分区布局合理
内置灯带充分满足日常生活需求
时尚与美感并重
卫生间
BATHROOM
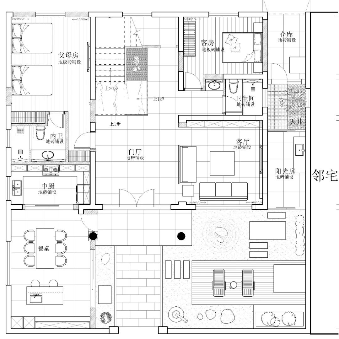
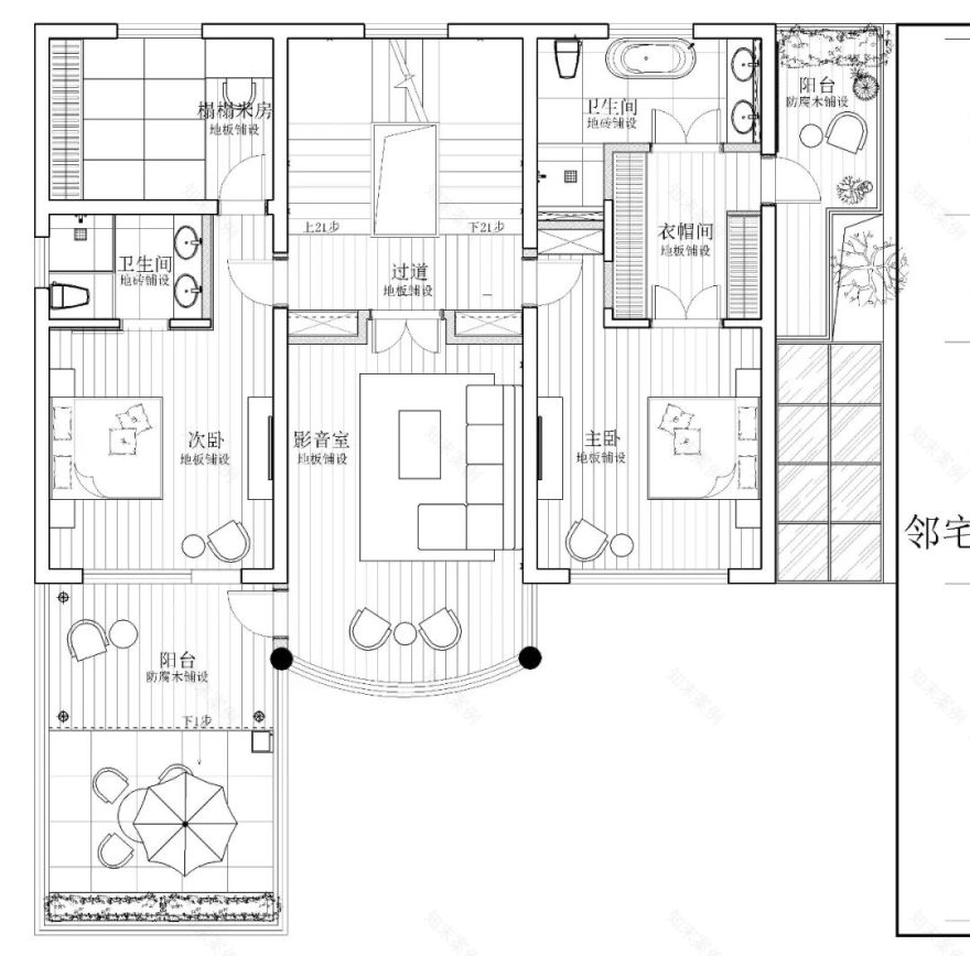
质感高级的瓷砖将岩石峭壁与原生态的风景变化赋予肌理,彰显自然之美。低饱和度的灰色基调配以灵动的线条点缀,粗犷而不凌乱,低调优雅的贯穿于家空间之中。▼平面布置图
▲ 一层布局图
▲ 二层布局图
▲三层布局图
项目名称 /一方禅境,享宁静时光
项目地址 / 苏州 · 东南开发区
项目面积 / 430㎡
项目风格/ 现代轻奢
设计主创 / 陈静
方案深化 / 任欢民
设计时间 / 2019年11月
竣工时间 / 2020年10月
空间摄影 / TS建筑摄影
- 往期推荐阅读 -
陈静禾景装饰工程有限公司创始人总经理大陈设计事务所创始人创意总监常熟装饰设计行业协会副会长苏州装饰设计行业协会理事2021第24届CIID中国室内设计大奖赛铜奖2021第11届IDEA-TOPS艾特奖铜奖、优秀奖2020艾鼎国际设计大奖年度十大新锐设计师2020艾鼎国际设计大奖住宅空间类优秀奖2020金堂奖年度杰出住宅公寓设计奖2020第二十三届中国室内设计大奖经济型住宅类铜奖2020红棉中国设计奖·2020室内设计奖2020苏州好设计大赛住宅空间最具人气作品奖2020苏州好设计大赛年度最佳住宅空间设计奖2020苏州好设计大赛年度优秀住宅空间设计奖2020芒果奖中国人文设计大赛中国住宅优胜奖2020亚太“桃鼎奖”年度最佳设计奖2019“创意双城·创意生活设计奖”商务空间作品类金蝴蝶奖2019金梁中国设计奖江苏榜2019CIID第二十二届中国室内设计大奖赛休闲娱乐工程类铜奖2019苏州好设计大赛“商业空间设计”、“住宅空间设计”类十佳作品奖2019第二届中日国际设计文化交流展IDPA中日国际先锋设计大奖2018艾鼎国际大赛“商业空间类”优秀奖2018金堂奖首届中国青年设计师先锋榜全国榜TOP1002018获得M+高端室内设计大赛“2018最具潜力设计师”2018第四届金瓦奖“年度商业空间入围优秀作品”、“年度居住空间优秀作品”2018中国(苏州)装饰设计行业协会“协会杯”最佳空间十佳作品奖2018“永隆星空间杯”江苏省室内设计、陈设设计大奖赛商业空间银奖2018第八届中国国际空间设计大赛铜奖2018入围国际设计大赛艾鼎奖2017获得第八届筑巢奖别墅空间优秀奖2017“永隆星空间杯”江苏省室内设计、陈设设计大奖赛住宅空间银奖2017“永隆星空间杯”江苏省室内设计、陈设设计大奖赛住宅空间铜奖2017上海设计周创意生活设计金蝴蝶奖别墅类金奖2016获得第七届筑巢奖公寓普通户型优秀奖2016“永隆星空间杯”江苏省室内设计、陈设设计大奖赛住宅空间银奖2016“永隆星空间杯”江苏省室内设计、陈设设计大奖赛住宅空间铜奖2016“永隆星空间杯”江苏省室内设计、陈设设计大奖赛商业空间优秀奖2016“永隆星空间杯”江苏省室内设计、陈设设计大奖赛住宅空间优秀奖2015获得第六届筑巢奖样板房空间银奖2015中国(苏州)室内设计总评榜住宅十佳作品奖2015“永隆星空间杯”江苏省室内设计、陈设设计大奖赛住宅空间银奖2015“永隆星空间杯”江苏省室内设计、陈设设计大奖赛住宅空间铜奖丨座机丨
0512-5284817618934551334
丨地址丨常熟市信一广场25幢1205室
客服
消息
收藏
下载
最近




































