查看完整案例


收藏

下载
Flowing space
现代人的住宅空间越来越独立,每个人都封闭在自己的小屋里,忽视了彼此的交流与互动。如何让规矩的室内空间流动起来,让家人之间的沟通流畅起来,是本案的设计目标。对于现代人来说,理想的居所并不仅仅是个栖身之地,一个温暖、放松的家是其他任何地方都替代不了的。因此设计师打破“小盒子”式的封闭结构,墙体、柜体、楼梯以“悬浮”的姿态,通过不同形态的重组构架,让材料得以舒展,空间得以开阔,光线流动游走,给人以无拘无束的自由。
开放、自由而流畅的居住空间
家是属于个人的
是私密的生活空间
空间是静态的
却又充满着可能性与自由
让空间灵活贯穿
静中有动
留下自然的生活痕迹
▼玄关
让空间在光影里流淌家永远是内心深处最信赖的依靠温润的木质极简的线条柔和的灯光将空间表现得更加纯粹为身心带来极致的放松▼客餐厅中间过道
以自然寄托灵感
以光影勾勒静谧之境
多点功能性照明让过廊环境更有格调
迎合现代人简洁而富有情调的生活追求
▼客厅
通过落地窗接触自然光线,不同季节带着不同的温度。光线的引入,穿透,让空间得以延伸。脱开、悬浮的墙体设计给空间更轻盈的感受。延伸了客、餐厅的活动空间,丰富了生活的场景层次。光影承载着情绪与情感,与每个家庭成员间的记忆。▼餐厅
从晨曦到夕阳西下,光阴抚摸着岩板的肌理,纯净而细腻的基底,色调柔和的餐椅,让空间得以视觉的享受,随光影变幻呈现出不同的韵味,为空间赋予灵动的生命。餐厅、水吧台与厨房的亲密互动,让生活具有多重可能性。▼茶室
让空间在自由中流淌
在喧嚣城市中沉淀下所有的纷扰
将适宜的温度带进方圆天地中
坐垫选用四季皆宜的藤编蒲团
悬空的柜体将茶室与外区域分割开来
隔而不断形成幽静的品茗空间
整体感官简约整洁诠释优雅人文环境
通过设计与自然的结合融汇成宁静致远的心灵静所
▼楼梯
楼梯不仅是连接空间的基本要素,也是增加空间艺术性的点睛之笔。设计师跳出惯性思维,利用悬空的柜体,让楼梯步步飘浮起来,空间更加流畅、轻盈。盈盈舞动的灯,木块的立体感,结合白色的框架,形成鲜明对比,凝聚成丰富视觉体验,让空气和光影在缝隙中自由流动。▼阅读休闲区
书里有故事、道理、知识
读书使人增长见识、开阔视野
一个人读书是与灵魂对话
和爱人一起读书是分享
与孩子一起读书是成长
放几张柔软的靠垫
在朗朗的读书声中
度过一个安静美好的夜晚
▼卧室
让空间在时间中流淌
家具线条的纯净利落
地板自然的木纹质感
精致的床品透着安宁的气韵
墙面漆灰度带来一室温雅
衬托出轻盈而平静的生活氛围
让卧室成为家里又一处
安放心灵、享受宁静生活的空间
通过设计让空间
在时间里融合、流动起来
着重于人与空间的和谐共处
演绎居住者独享的精神世界
▼外卫
卫生间将洗手台外移
如厕区、淋浴区干湿分离
收纳区域线条简约流畅
洗手台化繁为简
强调空间实用性与灵动性
大理石与木质材料的对比
营造出生动时尚的生活情调
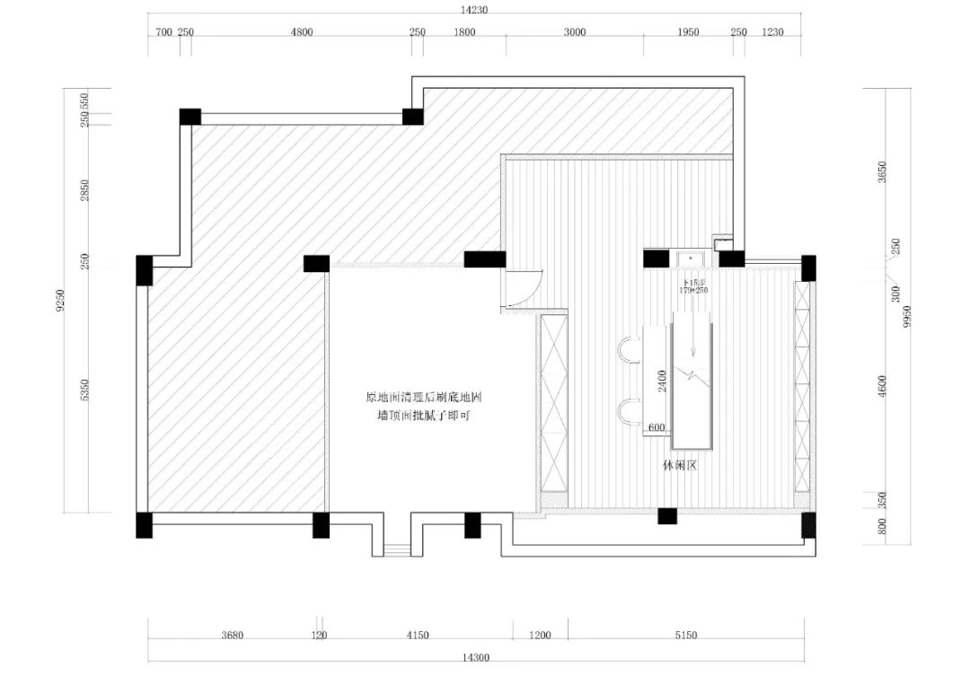
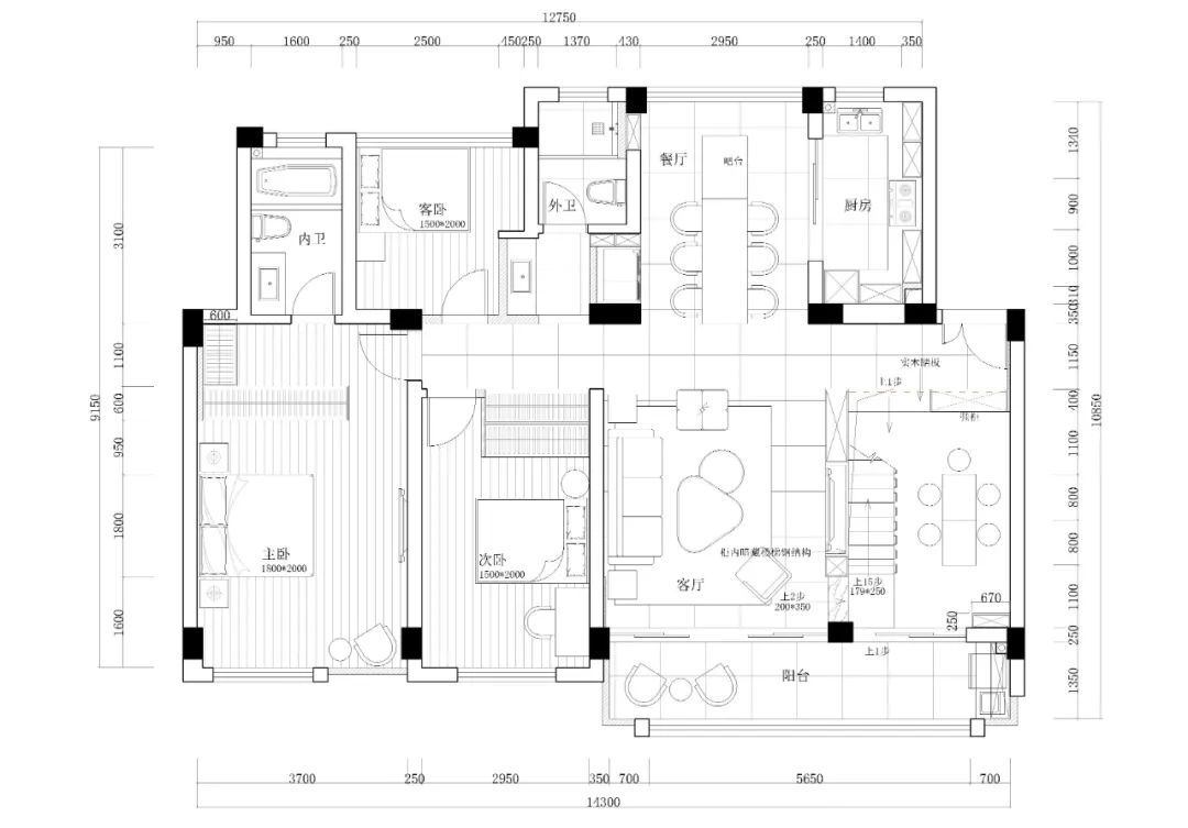
▼平面布置图
项目名称/让空间《流淌》项目地址/苏州·中南雅苑
项目面积
/ 150
项目风格/现代风
设计主创/陈静
方案深化/任欢民、李永谦
空间摄影/TS建筑摄影
- 往期推荐阅读 -
陈静
禾景装饰工程有限公司创始人总经理
大陈设计事务所创始人创意总监
常熟装饰设计行业协会副会长
苏州装饰设计行业协会理事
2020亚太“桃鼎奖”年度最佳设计奖
2019“创意双城·创意生活设计奖”商务空间作品类金蝴蝶奖
2019金梁中国设计奖江苏榜
2019CIID第二十二届中国室内设计大奖赛休闲娱乐工程类铜奖
2019苏州好设计大赛“商业空间设计”、“住宅空间设计”类十佳作品奖
2019第二届中日国际设计文化交流展IDPA中日国际先锋设计大奖
2018艾鼎国际大赛“商业空间类”优秀奖
2018金堂奖首届中国青年设计师先锋榜全国榜TOP100
2018获得M+高端室内设计大赛“2018最具潜力设计师”2018第四届金瓦奖“年度商业空间入围优秀作品”、“年度居住空间优秀作品”2018中国(苏州)装饰设计行业协会“协会杯”最佳空间十佳作品奖
2018“永隆星空间杯”江苏省室内设计、陈设设计大奖赛商业空间银奖
2018第八届中国国际空间设计大赛铜奖
2018入围国际设计大赛艾鼎奖
2017获得第八届筑巢奖别墅空间优秀奖
2017“永隆星空间杯”江苏省室内设计、陈设设计大奖赛住宅空间银奖
2017“永隆星空间杯”江苏省室内设计、陈设设计大奖赛住宅空间铜奖
2017上海设计周创意生活设计金蝴蝶奖别墅类金奖
2016获得第七届筑巢奖公寓普通户型优秀奖
2016“永隆星空间杯”江苏省室内设计、陈设设计大奖赛住宅空间银奖
2016“永隆星空间杯”江苏省室内设计、陈设设计大奖赛住宅空间铜奖
2016“永隆星空间杯”江苏省室内设计、陈设设计大奖赛商业空间优秀奖
2016“永隆星空间杯”江苏省室内设计、陈设设计大奖赛住宅空间优秀奖
2015获得第六届筑巢奖样板房空间银奖
2015中国(苏州)室内设计总评榜住宅十佳作品奖
2015“永隆星空间杯”江苏省室内设计、陈设设计大奖赛住宅空间银奖
2015“永隆星空间杯”江苏省室内设计、陈设设计大奖赛住宅空间铜奖
丨座机丨
0512-5284817618934551334
丨地址丨常熟市信一广场25幢1205室
客服
消息
收藏
下载
最近











































