查看完整案例


收藏

下载
一个好的设计源于生活阅历、感官体验和内在品质,是随着使用者的行为动向决定他们的生活方式,在以享受乐趣、品味生活为轴的主旨中,艺术从来不是独立独行的。
三代人同住的家,成员之间如何做到有效沟通、解决问题,相互给予呵护般的安全感。是每个家庭都需要考虑的问题。
在家庭中,关系亲密并不代表不需要界线,对于年长的父母来说,和自己长大的孩子在心理上分离也是需要学习的。
如果能包容地看待彼此之间的相似性和独特性,而不仅仅希望对方和自己一致,这样的家庭关系才是健康的。
户型解析一层平面改造①原有户型楼梯设计及其不合理,设计师打破原有框架,将不合理的楼梯拆除,在一层入口处重新做了流畅的动线规划;②将原一层卫生间移到西面紧邻卧室,使卧室形成套房格局;③一层卫生间移除后,扩大了餐厅的面积,使居住者享受到“包间”的用餐体验。
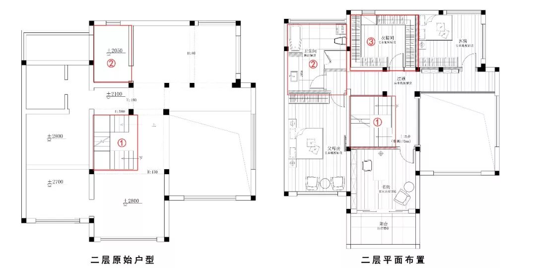
二层平面改造
①二层至三层的平台下层高不够,有撞头的风险,设计师做了相反的楼梯动线规划,解决了这个问题;
②将原二层卫生间移到西面,使父母房形成套房格局;
③针对二层只有2米的层高部分,规划为衣物收纳间,提升了居家的衣服收纳功能。
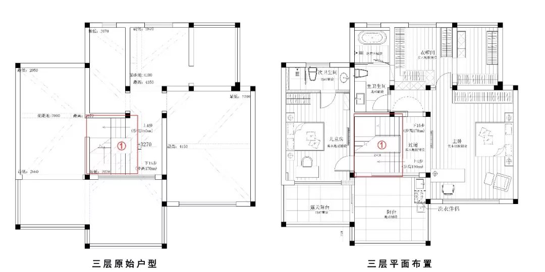
三层平面改造
①三层楼梯动线调整后,从过道到各个功能空间的动线得到了最大的优化,同时也保证了各空间的私密性与安全性。
项目面积丨八达山庄·370㎡别墅
装修风格丨现代风格
设计主创丨陈静
图纸深化丨周瑜、张娜娜
步入玄关,映入眼帘的是一只小马,没有繁杂的装饰,活泼清新的绿色养眼又明快,让人一进家门便忘却了一天的纷扰与疲惫。
玄关周围,每个空间在相互关联的同时,又不失隐蔽感,几个主空间的入口均设有隔断,让人似乎雾里看花,又意犹未尽。
客厅以高级灰作为主色调,电视背景墙做了镂空隔断造型,将一切的纷纷扰扰挡在外面,内嵌的木质收纳柜为空间增添了几分温润的气息。
复古简约吊灯将几何与镂空相结合,让这款灯显得气质优雅,装在客厅效果很nice。
可以懒懒的窝在地毯上,亦或放松的蜷在沙发上,享受惬意的放松时光,这一切美好与自然光照相遇,为生活带来一份内心的从容和安静。
餐厅用木栅栏做隔断,营造出一种朦胧的美感,光线经创意镂空灯罩射出非常的柔和有韵味,空间在它的映射下变的文艺风十足。
从长远生活的角度出发,尽一切努力满足生活功能,让设计回归生活本质。
作为连接一二三层的“交通要道”,原木质楼梯清新自然,其下沉空间也没有被忽略,与墙面同色的封闭储物柜更像是艺术装饰品。
书房的视野很好,能望见虞山。远处的青葱苍翠,无疑成为了一幅天然的自然风景画。
坐在书案前,左手摩一壶,右手捧一书,茶韵悠悠,书意正浓。
卧室整体设计并不复杂,但每一处都是惊喜。从崇尚自由的生活开始,通过空间环境与人物性格的磨合,将一家人质朴本真的生活状态释放出来,在细节处巧妙利用陈设艺术记录一家人的生活喜好,从而传递出居住者的精神追求。
厨房设计的精致与温馨感,就像是在微风和煦的下午,为家人亲手准备爱心佳肴,柴米油盐酱醋茶,生活的点点滴滴都在这里出发。
优雅而整洁的卫生间,用高级灰营造出舒适、安心的感觉,在细节中彰显品味和热爱,简约的造型营造视觉上的静谧感,同时赋予浴室极强的生活气息。
END
陈静常熟市禾景装饰工程有限公司创始人总经理大陈设计事务所创始人创意总监常熟装饰设计行业协会副会长
2019第二届中日国际设计文化交流展IDPA中日国际先锋设计大奖
2018金堂奖首届中国青年设计师先锋榜全国榜TOP100
2018获得M+高端室内设计大赛“2018最具潜力设计师”2018第四届金瓦奖“年度商业空间入围优秀作品”、“年度居住空间优秀作品”2018中国(苏州)装饰设计行业协会“协会杯”最佳空间十佳作品奖
2018“永隆星空间杯”江苏省室内设计、陈设设计大奖赛商业空间银奖
2018第八届中国国际空间设计大赛铜奖
2018入围国际设计大赛艾鼎奖
2017获得第八届筑巢奖别墅空间优秀奖
2017“永隆星空间杯”江苏省室内设计、陈设设计大奖赛住宅空间银奖
2017“永隆星空间杯”江苏省室内设计、陈设设计大奖赛住宅空间铜奖
2017上海设计周创意生活设计金蝴蝶奖别墅类金奖
2016获得第七届筑巢奖公寓普通户型优秀奖
2016“永隆星空间杯”江苏省室内设计、陈设设计大奖赛住宅空间银奖
2016“永隆星空间杯”江苏省室内设计、陈设设计大奖赛住宅空间铜奖
2016“永隆星空间杯”江苏省室内设计、陈设设计大奖赛商业空间优秀奖
2016“永隆星空间杯”江苏省室内设计、陈设设计大奖赛住宅空间优秀奖
2015获得第六届筑巢奖样板房空间银奖
2015中国(苏州)室内设计总评榜住宅十佳作品奖
2015“永隆星空间杯”江苏省室内设计、陈设设计大奖赛住宅空间银奖
2015“永隆星空间杯”江苏省室内设计、陈设设计大奖赛住宅空间铜奖
客服
消息
收藏
下载
最近

































