查看完整案例


收藏

下载
▽卡座区域
无锡氤氲的水墨山水带给我们美好的体验,而我们想将这种美好在空间里呈现,竹子作为核心的设计元素贯穿其中,以不同的方式在空间活跃,镜面映射出竹影,竹子的虚实变幻成就了空间的气韵,“清风恰几许,竹影入画来”营造出几分东方的宁静和优雅。
▽外立面区域
▽入口卡座区域
▽卡座区域
▽卡座区域
▽空间细部
▽入口卡座区域
▽空间细部
▽空间细部
▽入口卡座区域
光和空间的对话
▽空间细部
▽卡座区域
虚和实的对话
▽空间细部
▽卡座区域
▽空间细部
▽空间细部
竹影婆娑
▽空间细部
▽空间细部
光影赋予空间知觉。
▽空间细部
▽空间细部
▽空间细部
▽卡座区域
▽卡座区域
▽卡座区域
▽空间细部
▽卡座区域
▽入口空间局部细节
▽空间局部细节
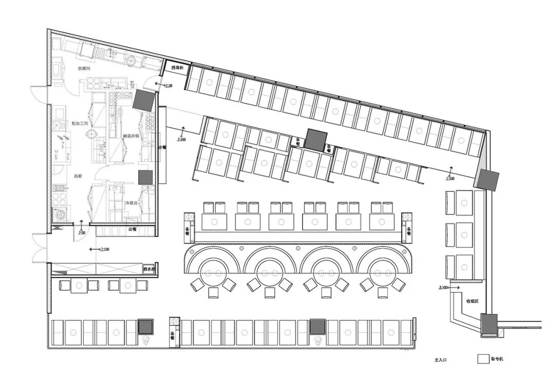
以古法为锅,溶人间百味;聚四海知己,品百态人生。▽平面布局
项目名称:山海津无锡店
项目地址:无锡三阳广场
项目面积:320m²
完工时间:2019.01
设计公司:埂上设计事务所
主案设计师:李良超 文志刚 黄元满
专案设计师:向维方
摄影:黄缅贵
公司作品:深圳 青缇新日式料理
深圳睿德文化咖啡书吧
招贤纳士:助理设计师(实习生)1、建筑设计、室内设计、环境艺术等相关专业;
2、对设计有探索欲且有较强的构图审美能力。
客服
消息
收藏
下载
最近







































