查看完整案例


收藏

下载
PROJECT INTRODUCTION:
项目面积 | 200
设计风格|现代风格
项目名称 | 曲江大城
主案设计师|武登高
深化设计师|方琳
软装设计师|杨晓旭
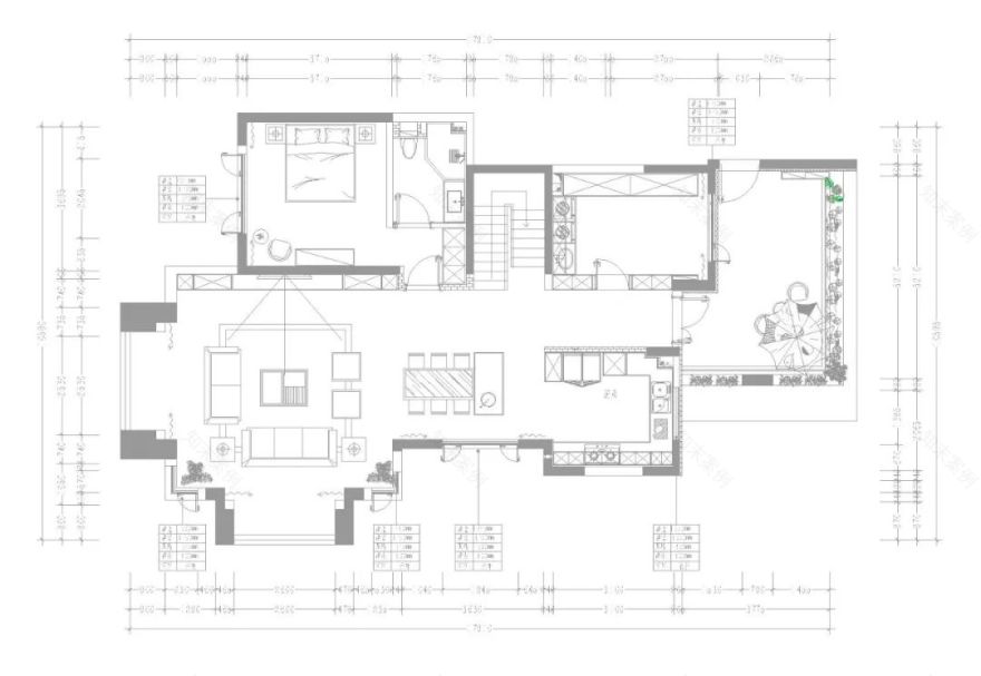
以少胜多以简胜繁的含蓄是现代简约风的纯粹表达倡导人们在生活中感受自然氤氲出融合生活的“灵气”01一层平面布置图
入口玄关
玄关
在中国有着深厚的文化历史道德经有云:玄之又玄,众妙之门经过此关便是云开月明可见其在空间中的引导地位作为人们回到家第一眼看到的场景玄关体现的是一个家的颜值品味大面积延伸的灰色基调是现代简约风的展现手法视觉感极致通透、干净意境悠远的油画作品与灯饰呼应打破空洞感呈现虚与实的艺术之美客厅
以黑、白、灰、咖色融合的会客厅
整体的视觉效果非常干练、温馨
分割合理的流畅线条
呼应大气敞亮的空间格局
延伸出一览无余的观景视野
休闲会客时泡一壶清茶
三五好友谈笑风生
窗外风景夹带一缕清风入室
给人无比轻松的惬意感受
餐厅
与客厅一体相连的餐厅是现代家居设计的流行趋势。空间场域划分明确,打破格局界限,符合人们对家庭生活的互动需求。餐桌一侧设计大理石导台,可放置酒水和餐食,延伸餐桌的功能,并为家庭增加用餐的互动氛围。厨房。
回字形的厨房布局设计比例合理每个区域的分工明确于简约中强调实用功能白色柜面与黑色吧台融合呼应行云流水的利落线条视觉感干净、整洁颇具现代极简美学概念卧室
整洁素净的浅灰基调
迎合通透干净的墙壁
为孩子塑造一方心灵净土
在成长过程中
不断地增添美好色彩
墙壁画作上的英文“FUTURA”是未来之意
透过一面大大的落地窗
纳入广阔无垠的蔚蓝天空
让孩子的未来梦想自由翱翔
卫浴间
二层平面布置图
二层中厅
一楼的客厅是“待客”的门面
二楼的中厅则是主人的品味居所
柔和的高级灰色调
碰撞纹路自然的大理石材质
显露简约而不简单的自然奢贵
玄关台的软饰和几何画作
意境脱俗又浸透着现代艺术感
主卧室
主卧室的空间格局宽敞,极易给人营造舒适、轻松的氛围。奶油白与灰色的基调以不同维度在空间中陈列,仿佛一袭月光,柔软心房。圆桌、沙发与床的亲密组合创造一个多元化的休憩空间,用以阅读书作、静思独处,在静谧中感受真切自我。卫浴间。
通体透白的卫浴间素雅洁净,格调简约空间的场域划分明确有序自然花纹的大理石材质以其精致奢贵的气质为空间注入浪漫元素使人进入其中能够卸下生活的零碎繁琐享受一刻的惬意美好衣帽间
与卧室相连的衣帽间
开辟于过道一侧为主人的生活提供便利功能
黑色柜架内镶于墙壁节省空间又美观
自然木色地板以人字纹铺陈于细节中透露生活精致感
在这规划合理的一方空间里藏满了主人对生活的热爱
次卧
同样占据采光优势的次卧为偶尔来住的老人准备床头的挂绳吊灯、木色圆桌和绿植浸透着东方美学的古朴禅意配合高质感的灰调床品营造出令人心安的静谧氛围卫浴间
家是给予人们温暖的空间
在这个空间中剥离出的每个小区域
都在迎合人们对生活的向往追求
书房
高级灰与黑色的极致融合,呈现出带有科技感的现代风书房。空间分割规划巧妙,既适合一个人独处,有满足家人的共同成长。内镶于墙体内的书架被柔和暖调灯光笼罩,为这静谧的空间内安抚心神,感受真实自我。
||点击以下图片查看易高国际更多作品▼ ||易高·案例 | 曲江大城叠拼200㎡空间/温娴雅致 自在随心。
易高·案例 | 龙湖双珑原著 360㎡ 别墅空间 / 包容并序
易高·案例 | 曲江大城下叠480㎡别墅设计/诠释奢华内涵
▼易高·案例 | 荣禾曲池东岸190㎡现代轻奢/重塑空间气质
▼易高·案例 | 清凉山居345㎡新中式 /中式魅力空间
▼易高·案例 | 湖滨会馆345㎡新中式|邂逅桃花源
易高国际西北首家工程直管
100%自有工人、零增项、零增量、诚信一口价
中国设计百强品牌/专注别墅大宅设计/施工/软装陈设
易高国际秉承【出于易高·必为精品】的施工理念
【受人之托·忠人之事】的服务理念
竭诚为您提供全案设计服务
关注我们,了解最新动态
还您一个独一无二的家居生活
VIP客服专线:029-89833383 / 15353495550
地址:陕西省西安市雁塔区曲江池北路1369号
金地湖城大境天字一号9-1-1101
客服
消息
收藏
下载
最近




























