查看完整案例


收藏

下载
项目介绍
项目面积:190㎡
设计风格:现代轻奢
项目名称:荣禾曲江池东岸
主案设计师:武登高
深化设计师:梁星科
软装设计师:杨晓旭
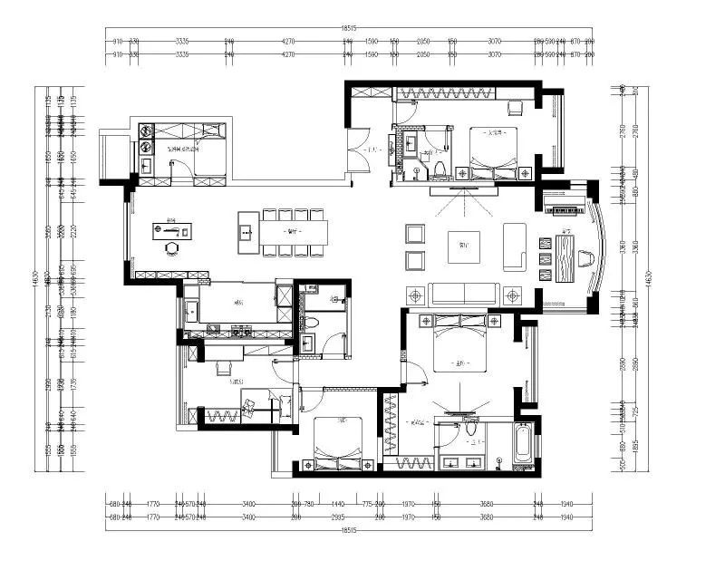
平面布置图
玄关
玄关设计拉开生活序幕
天然的花纹大理石映入眼帘
自然与质感的碰撞
温暖的光线,巧妙的布局分割
让空间既可以在功能上收纳利用
又不失艺术的美感
整体空间美妙绝伦
客 厅
一入玄关即为开放空间
当人在空间中走动时
总能获得一条开阔的视觉路径
若隐若现的花纹大理石作为电视背景墙
与沙发背景交相辉映
颜色布局层次分明
层顶扩张整个空间视觉效果
张力十足又温文尔雅
餐 厅
开放式餐厅与客厅一气呵成,豁然贯通
花纹大理石贯穿着整个空间质感
圆形金属吊灯简约而又艺术
色彩相间的餐椅瞬间让本来温润的空间增添了一份悦动
好似一位谦谦君子却又不乏幽默风趣
厨 房
鲈肥菰脆调羹美,荞熟油新作饼香。自古达人轻富贵,例缘乡味忆还乡。从古至今,厨房便是生活中温馨的画面,是指引回家路上一盏温暖的明灯,万家幸福,便聚在这枭娆缤纷,至繁至简的烟火之地。厨房设计以功能为主,将美观赋予功能,嵌入式电器与收纳橱柜在一个平面整体上,美不胜收,亦面面俱到。书房
书房、餐厅、客厅一气贯通以为建筑的概念形式打造出连贯的横向生活轴线将空间的机能缜密地融于空间轴线之上化于空间情感之中温润敦厚的木色作为书房主色调内敛沉稳,简约宁静卧 室
功能至上,才可达至人性的关怀
衣帽间采用透明玻璃,既美观又方便实用
床头以高级灰作为基色,搭配木色肌理地板与白色墙面
层次分明,传递出空间放松而舒适的言语
摒弃过多的装饰,以简洁干练的灯光营造暖灰的空间氛围
卫生间干湿分离,黑色线条勾勒出空间的艺术氛围
色彩与材质简单个性,又自然优雅
花纹大理石充满整个空间
仿佛大自然包罗万象,进行一场大自然的洗礼
儿 童 房
雾霾蓝呼应宇宙主题壁画
打造科技感十足的科幻感空间
展现活泼与朝气
极富有创意和趣味
内部光线与自然光交织成温顺的光,灵动而通透
浣 衣 区
浣衣区作为一个独立的空间是非常贴合人性的设计独立操作,独立收纳加一张床,便可摇身一变成为保姆间两全其美,亦可空间利用最大化
易高国际西北首家工程直管
100%自有工人、零增项、零增量、诚信一口价
中国设计百强品牌/专注别墅大宅设计/施工/软装陈设
易高国际秉承【出于易高·必为精品】的施工理念
【受人之托·忠人之事】的服务理念
竭诚为您提供全案设计服务
关注我们,了解最新动态
还您一个独一无二的家居生活
VIP客服专线:029-89833383 / 15353495550
地址:陕西省西安市雁塔区曲江池北路1369号金地湖城大境天字一号9-1-1101
客服
消息
收藏
下载
最近

























