查看完整案例


收藏

下载
当说到家装风格人们好像已不再向奢华与贵气靠拢,但又不甘于平常,于是现代轻奢风格便越来越受青睐。
现代轻奢风格是一种极致的简约风格,但也并不像一般的简约风格那样随意。看似简洁朴素的外表之下,却常常折射出一种隐藏的贵族气质。
梁星科设计师作品《丹轩坊》就用简约利落的质材铺叙与敞明大方的格局尺度
完成了业主心中对于浪漫情怀的解读
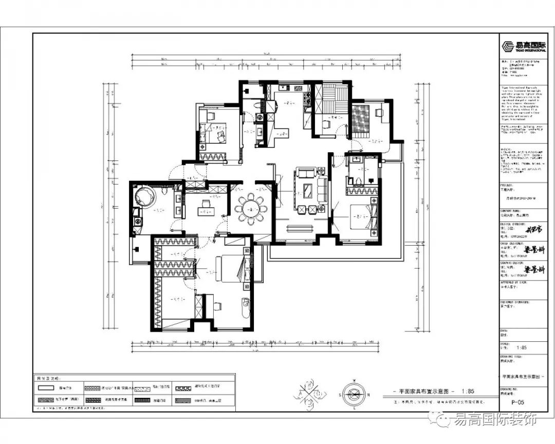
工程简介
项目地址:丹轩坊
户型:五室两厅三卫
项目面积:270㎡套内200㎡
工程造价:25万
主材报价:85万
设计风格:现代轻奢
设计主创:梁星科
设计总监:武登高
设计单位:易高国际
设计理念:人可以改变环境,环境可以影响人,而设计则可以改变人和环境
常住人口概述:夫妻两人,两个儿童,两个老人
门厅
设计师以陈设艺术品及金属线条材质
来营造大气、自然、轻奢的装饰美学氛围
客厅
墙面、地面、家具陈设等均以简洁的造型
精细的工艺为其特征强调品质感和细节处理
厨房&餐厅
在色彩搭配方面以暖色为主
温馨的客桌花束、明黄色的搭毯
直观大气的金属材质,带着淡淡的随意
随着轻轻的希冀让人感受到的是空间弥漫的温馨与舒畅
卧室
卧室高雅自由的空间,充满了唯美的想象
色彩搭配上米色为主基调色
在浅色的空间里点缀了鲜艳的黄色、冷淡的蓝色
变得更加有活力
儿童房
设计师毫不吝啬的用心
大到有气势感的沙发床
小到床头背景的精致挂饰
都是经过精心的搭配
完成业主心中对于品质的解读
书房
书房色彩搭配以暖色为主
与褐色的书桌形成强烈的对比
让空间显得更加明亮舒适
深棕色的地板上图案不规则的地毯
仿佛思绪的蔓延,办公效率都变高了
卫生间
厨卫的设计更多考虑其功能性合理人性化的设计理念在此基础上的装饰与雕琢折射出业主独特的品位与性格
设计师简介:
梁星科
主案设计师
毕业院校
XI’AN Eurasia Art and Design
设计理念
人可以改变环境,环境可以影响人
而设计则可以改变人和环境
擅长风格
清新北欧、现代简约、禅意中式
成功案例
荣禾曲池东岸,中冶一曲江山,曲江六号,紫汀苑,湖城大境天字一号,御宾府,华著中城。。。
【轻奢易制高品生活】【出于易高必为精品】细节决定成败
细致全面的施工换来的是坚实可靠的品质
力求细节完美是我们易高人不变的追求
诚信赢得人心
受人之托忠人之事
工程直管无转包、零增项
这才是客户选择易高国际的原因
了解公司详情请登陆
欢迎致电:029-8983-3383
17392585879
ADD:中国·西安曲江池北路金地湖城大境天字一号
9#1-1101室
公司直管零增项高品质
易高国际诚心为您服务
扫码关注最新动态
客服
消息
收藏
下载
最近























