查看完整案例


收藏

下载
不难发现北欧风已经风靡世界了
从宜家的火爆大抵能看到他的影子
这种象征极简主义、功能主义的设计风格
还和不俗的生活品位、工艺精神挂钩
北欧风格色彩搭配之所以令人印象深刻,是因为它总能获得令人视觉舒服的效果。不用纯色而多使用中性色进行柔和过渡。
即使用黑白灰营造强烈效果,也总有稳定空间的元素打破它的视觉膨胀感,比如用素色家具或中性色软装来压制。
注重人与自然、社会、与环境的有机的科学的结合集中体现绿色设计、环保设计、可持续发展设计的理念请欣赏方琳设计师作品《梧桐苑》
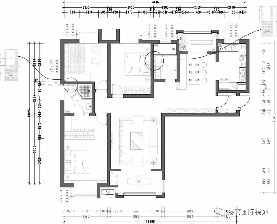
平面图
工程简介
项目地址:梧桐苑
户型:三室两厅两卫
项目面积:130㎡套内109㎡
工程全案造价:50万
设计风格:北欧
设计主创:方琳
设计总监:武登高
设计单位:易高国际
设计理念:我能想到的,就是把一切都变得简单
常住人口概述:夫妻两人,儿子儿媳
客厅
在日照不足七小时的冬天
透过窗的光是馈赠
你可以用一条薄毯在沙发上包一天
故事好看,咖啡好喝
厨房
顶部吊柜使其具有强大的收纳功能
台面布置又符合中式菜系的烹饪习惯
格局布置精致,功能布置齐全
餐厅
完全不使用雕花、纹饰的北欧家具
实际上的家具产品形式多样
如果说它们有什么共同点的话
那一定是简洁、直接、功能化且贴近自然
卧室
一份宁静的北欧风情
绝非是蛊惑人心的虚华设计
北欧风格现在已成为简洁风格的一种典型代表
北欧风格的装修没有过多冗杂的装饰和花纹,用一种最简单、直接、功能化且贴近自然的线条来表现其宁静的北欧风情,是一种后现代的极简风格。
衣帽间
衣帽间的设计
充分考虑其实用性与功能性
符合北欧风格人性化的特点
是业主个性标识一隅
卫生间
黑色是比较彰显时尚气质的色彩
使用黑色作为卫生间墙壁的瓷砖色彩
卫生间墙面设计以最为青睐的长方形砖为主
整个区域使用这种砖之后气质一下子就不一样了
设计师简介:
方琳主案设计师毕业院校西北大学现代学院设计理念我能想到的就是把一切都变得简单擅长风格现代简约、北欧、轻奢
【轻奢易制高品生活】【出于易高必为精品】细节决定成败
细致全面的施工换来的是坚实可靠的品质
力求细节完美是我们易高人不变的追求
诚信赢得人心
受人之托忠人之事
工程直管无转包、零增项
这才是客户选择易高国际的原因
了解公司详情请登陆
欢迎致电:029-8983-3383
17392585879
ADD:中国·西安曲江池北路金地湖城大境天字一号
9#1-1101室
公司直管无转包 零增项
设计施工高品质 高标准
易高国际诚心为您服务
扫码关注最新动态
客服
消息
收藏
下载
最近





















