查看完整案例


收藏

下载
点击上方蓝色关注我们,公司直管无工长零增项
设计师简介
武登高
易高国际装饰首席设计总监
行业资质:中国装饰协会全国建筑装饰行业百强优秀设计师
中国室内装饰协会会员
注册高级室内设计师
荣获奖项:2009年美化家居设计大赛三等奖
2011获陕西省优秀设计称号
2012年筑巢杯设计大赛优秀设计奖
2015第三届【锋尚·京瓷杯】新中式设计大赛最佳功能布局奖
2016第三届中国建筑装饰设计艺术展获铜奖
2017年居然顶层精英设计师
2017年中国(陕西)设计杰出青年
2017第四届峰尚杯新中式设计大赛 最佳方案奖
2017创意生活设计金蝴蝶奖
2017年度优秀住宅公寓设计师
设计理念:用艺术的眼光雕琢生活
案例简介
项目名称 :龙湖香醍
户 型 : 联排别墅
风格定位 : 轻奢主义
使用面积 : 320平米
平面图
负一层平面布置图
一层平面布置图
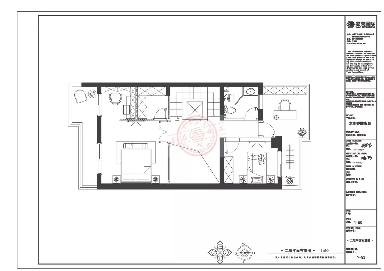
二层平面布置图
三层平面布置图
入户门厅
本案在整体的空间布局上,以深浅相宜的笔墨描摹出,温馨圆润的基调,明朗干练的硬装构图,搭配轻盈舒适的内饰,达到刚柔相济的轻奢效果。木料、石材,深色、不锈钢亮色,从材质的厚重与轻盈到色彩的明与暗,利用对比的手法营造出简约却极具视觉效果的轻奢空间。客厅
通过地面淡灰色大理石瓷砖、墙体点环状天然石、艺术水墨画来烘托境的气息,为理性的空间形态注入艺术与人文情怀。如此,大见刚,细显柔,虚实相间,直抵纯粹的心境。
客厅、餐厅与入户花园,空间互相渗透,阳光相映,视线交织。暖色调的空间只为将行走中的“人”,光线、美景作为中心,而在武登高设计师的巧妙规划下,室内所有的功能区各自独立,却又紧密相连,光线、空气与窗外的美景洒入室内,随着流动的气息装点着室内的每一角落。
餐厅
设计师利用长条形的空间使客餐厅紧密结合,并且与厨房连成一线,动线合理清晰,家居生活也更加美好,餐厅刻意保留的挑空让功能区之间既独立又相连紧密。
卧室
主卧中从棉麻壁布过渡至墨绿色的硬包,暖色的灯带光从两边发散而出,令卧室更添适宜睡眠的静谧感。
卫生间
利用自然纹理的材质打造出优雅、清爽开放的洗浴室。
❶ 点击历史信息,查看更多内容。❸ 点击识别,关注易高国际。欢迎致电:
029-8983 3383
ADD:中国·西安曲江池北路金地湖城大境天字一号
9#1-1101室17782533706
无工长 零增项 高品质
易高国际竭诚为您服务
↓↓↓ 点击"阅读原文" 【查看更多信息】
客服
消息
收藏
下载
最近



























