查看完整案例


收藏

下载
点击上方蓝色关注,为您解决家装后顾之忧
设计师简介
史娜
陕西易高空间设计工程有限公司 主案设计师
设计理念:始于精心,纳于设计。工作经历:2014年就职于某上市公司西安分公司
2016年就职于北京某装饰公司西安分公司
个人荣誉:中国室内建筑设计师协会注册中级室内设计师
西安某装饰公司优秀设计师
中国室内设计协会会员
设计案例:鸿基紫韵、凤凰池、丹轩梓园、逸翠园、融侨城、御宾府、紫汀苑、莱安逸珲
项目简介
项目名称:逸翠园御峰
户 型:平层
使用面积:190平米
风格定位:后现代
基础造价:11.8万
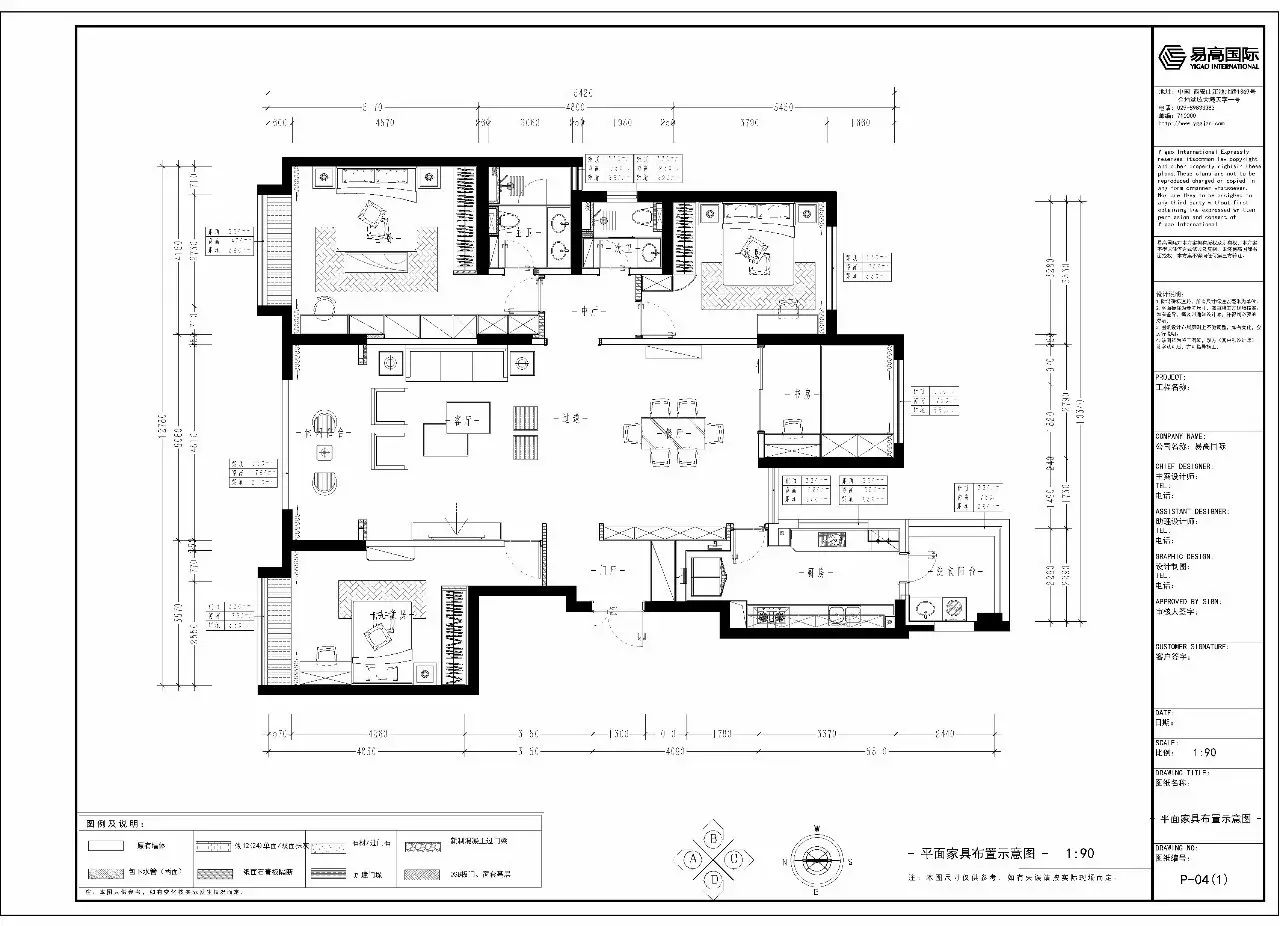
原始结构图
平面方案图
设计说明
当沉稳遇到不羁
当深沉与时尚相碰
演绎出别具一格的风情
1门厅
门厅处深色的大门与鞋柜,令人一进门便能卸下生活的重负,沉浸在自己的一方天地之中。由此之始,享受美好生活。
2客厅
客厅简洁的色调与线条相衬,既显随性自然,又不失大气从容。两面的金属线条造型凹凸有致,落落大方,再加上电视墙的质感与沙发的柔软,彰显整个空间简洁得体。
3餐厅
餐厅中采用暖色主光源、点光源及灯带渲染,令餐厅温暖而又温馨。具有现代感的餐椅,带给您进餐时不一样的舒适感受。餐桌上的配饰与墙面的壁画呼应,给生活更添一份色彩与生机。同时餐桌旁的玻璃柜,更显后现代的风格特点。
4书房
书房之中采用榻榻米与书桌相结合的方式设计,在忙碌的工作之中仍能得以小憩,劳逸结合,利于身心健康。同时书房中榻榻米的设计,增加了许多储物空间,搭配空间简单的线条,令书房更加干净整洁。
设计源于生活是为了更好的生活精于细节精心设计精工品质易高国际为您打造完美家居生活轻奢易制高品生活出于易高必为精品❶点击历史信息查看更多内容❸长按,关注易高国际如果您喜欢这篇文章欢迎分享至朋友圈
客服
消息
收藏
下载
最近












