查看完整案例


收藏

下载
如果说每一个男人心中都渴望一次冒险的旅程,那么每一个女人心中都有一个梦想的花园
故事本案的主人公是一位成功的女士,对生活充满着热情,在她的生活中到处是鲜花、阳光。事业中,尽心尽力,勤勤恳恳,创造了令人羡慕的人生财富。对待朋友,对待家人总是那么阳光般的温暖。在别人有难处的时候,她总是能感同身受,倾尽全力帮助。面对这样一位可亲可敬的姐姐,作为设计师我希望在未来的生活中给她打造一处,到处充满着鲜花和笑声的居住空间。同样这个空间,也能表达她对家人,对朋友最多的爱...设计人可以改变环境,环境可以影响人,而设计则可以改变人和环境。
People can change the environment, the environment can affect people, and design can change people and the environment.
01
设计是一种对待生活的态度排除一切多余的东西只选择必要的东西去生活的生活样式效果图/Effect picture伴着鲜花和绿树的早晨,今日的心情一定是美好的。“满园春色关不住”的愉悦心情。
02设计是一种追求完美的生活态度,设计是一种追求品味的生活概念。
△效果图|客厅细节
客厅以蝴蝶和花的元素空间设计,赋予了建筑空间生活的故事元素,项目以《在那鲜花盛开的地方》命名,绿色植物将建筑与自然完美结合,客厅保留的建筑元素也是别具一格,正门的雕塑,正是主人个性的展现。
The living room is designed with the elemental space of butterflies and flowers, giving the story elements of architectural space life. The project is named after "The Place Where Flowers Bloom". The green plants perfectly combine the architecture with nature. The architectural elements retained in the living room are also unique. Sculpture is just the display of the owner’s personality.
△效果图|二楼卧室
草间弥生的彩绘图案成为卧室承重柱的装饰,激活空间的色彩。
Yayoi Kusama’s painted pattern becomes the decoration of the bedroom load-bearing column, activating the color of the space.
△效果图|二楼卫生间
玫瑰红色的瓷砖,凸显的是女性独立的个性。白色的墙面和理石的地面,将空间的搭配层次分明,视觉上表现的极为舒适。泡池边的一束花卉,却能把处于室内的人带到“鲜花盛开的地方”。
The rose-red tiles highlight the independent personality of women. The white wall and the marble floor clearly distinguish the space collocation, visually expressing extremely comfortable. A bunch of flowers by the pool can bring people indoors to the "place where the flowers bloom".
△效果图|三楼咖啡厅
流体理石的柱子突显张力,墙面以及入口的鲜花艺术画,很好的营造了下午茶的氛围。坐在高脚椅上,分享一下午后的美好时光,和家人喝点咖啡,也是不错的享受。
The columns of fluid marble highlight tension, and the artistic paintings of flowers on the wall and entrance create an atmosphere of afternoon tea. Sitting on a high chair, sharing the good time after an afternoon, and having some coffee with the family is also a good treat.
△效果图|楼梯
一头小鹿在饮水,雨滴顺着天花板滴落池中,生动的仿生设计实际方式,让楼梯间更具趣味性。让上上下下变成一种快乐。
A small deer is drinking water, and raindrops drip down the ceiling into the pool. The vivid bionic design makes the stairwell more interesting. Let the ups and downs become a joy.
△效果图|三楼客房
鲜明的色彩除了让客人有一种宾至如归的感受之外,更多的是主人给予的时尚和惊喜。
In addition to making guests feel at home, the bright colors are more stylish and pleasant surprises from the host.
△效果图|三楼卫生间
兔女郎的雕塑,墨绿的墙面,小碎花的地面以及粗狂的水泥机理,将艺术和生活更好的结合。魔镜的使用更是将科技带入了生活。
The sculpture of the bunny girl, the dark green wall, the ground with small broken flowers, and the rough cement mechanism combine art and life better. The use of the magic mirror brings technology into life.
△效果图|地下一层
极简风贯穿于整个空间,威士忌和时尚大片让地下室成为主人招待朋友和自己独处的最好场所。
A minimalist vibe pervades the space, with whiskey and fashion blockbusters making the basement the perfect place for the owner to entertain friends and be alone.
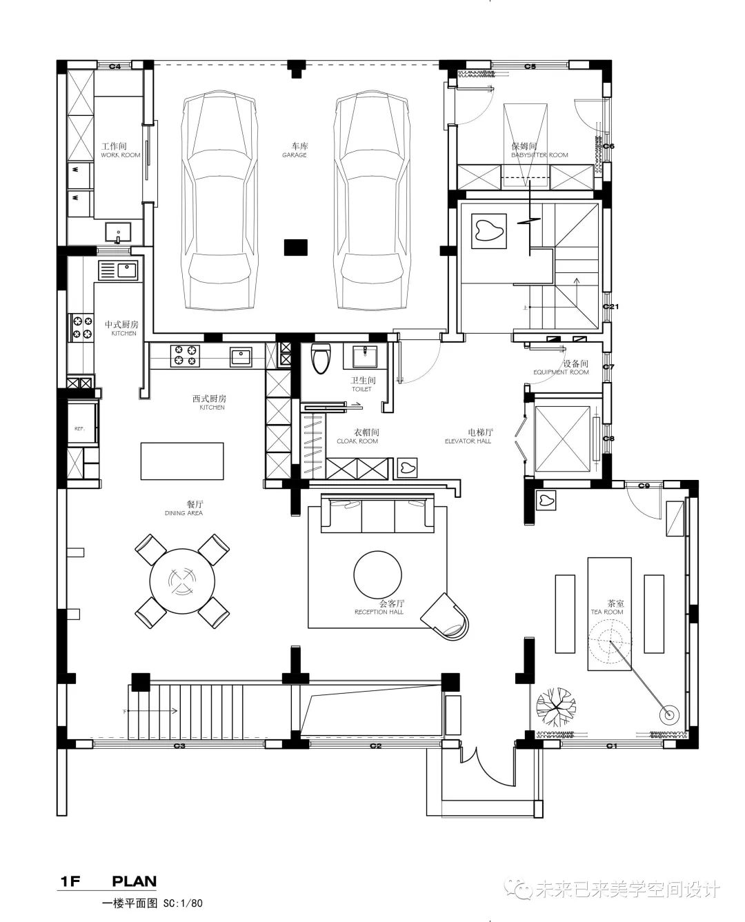
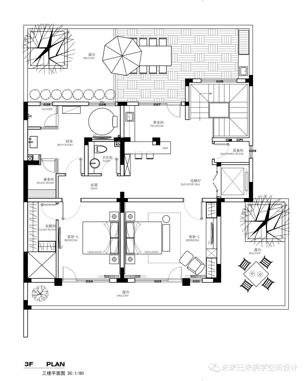
项目名称 | 中铁香湖
项目面积| 880㎡
项目地点 | 沈阳
设计时间 | 2019年5月
主创设计 | 张猛
- End -
撰稿:未来已来
图片:未来已来
/我的故事,你的家...
都融入一纸方寸之间,不将就才能成就长久...
張猛Kevin
設計總監/中國室內建築師金堂奖沈阳站执委会执行长未来已来[辽宁]建筑空间设计有限公司创始人/设计总监1999年从事室内设计工作至今
地址:青年大街125号嘉里中心企业广场 B座18F
大客户经理专线:185-4010-5666
【往期案例作品】
客服
消息
收藏
下载
最近


















































