查看完整案例


收藏

下载
建筑是关于幸福的,人们想在一个空间里感觉良好建筑提供庇护,同时提供舒适——— 扎哈·哈迪德
项目地址/深圳
本案风格定位为轻奢风,色调以黑白灰作为主色调,材质上以深色石材配上灰色调的木饰面,局部采用镜面拉伸空间。考虑到空间相对局促,所以局部墙面会做减法,不会用太多复杂的造型去堆砌,造成空间的负担。
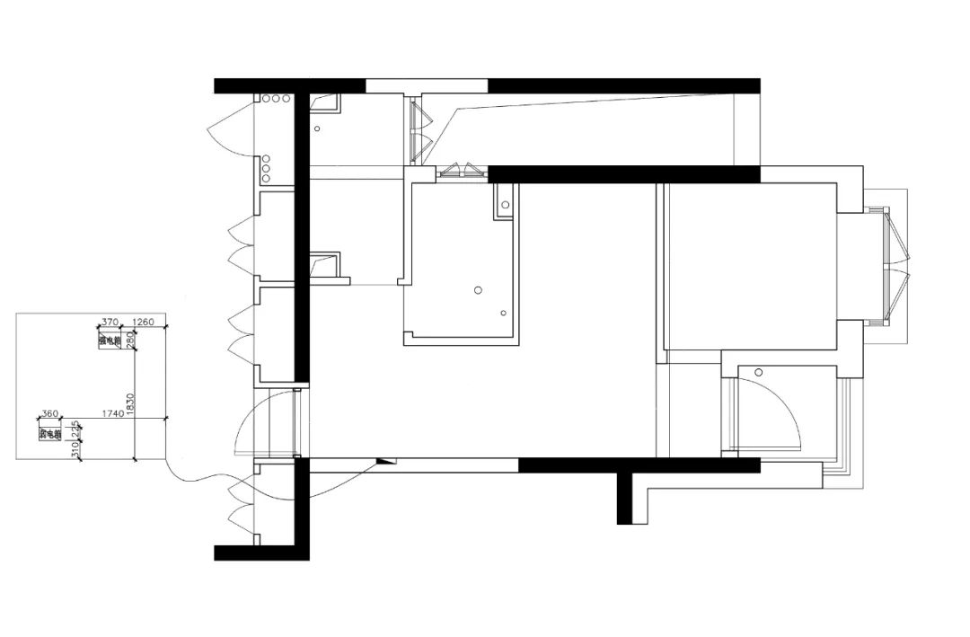
▲ 户型图
Floor plan
▲ 平面图plan
①设计师将入户门做出来,做出玄关换鞋区;
②该户型的改造性很强,把可拆除的墙体都拆除了,扩大了客厅与主卧的面积;
③把原公卫外面的区域搭建出来,公卫挪到加建的区域上面使得窗外阳台部分可以放置空调外机。
Porch玄关
由于该户型面积比较小,设计师利用外面的面积延伸出来做了玄关换鞋区,设置了抽拉鞋柜以及开放柜,增加了储物空间。温润的竖线木格栅设计延伸到天花,让空间视觉更加立体与开阔,在灯光的照射下光影错落尽显朦胧雅韵与格调。利用镜面的延展性使得相对局促的空间在视觉效果中放大。
Living Room客厅
电视背景墙运用格栅的设计,穿插黑色大理石加入古铜色金属边框,在一定程度上奢感尽显,定制的展示柜营造出品质感,灰色与黑色作为空间点缀色,高级的木灰色,让空间简洁之余富有设计感与现代感。精致奢雅,视觉显得别具匠心,在空间的细腻之处无不体现都市新贵的格调与品位。
格栅的天然木质感,规矩有序的排列在墙面打造出韵律十足的空间格调,布艺的沙发在线性灯光的烘托下,强化了整体家居的细节质感,墙面呈现艺术感与层次感。
「 Master bedroom 主卧 」
主卧尽显沉稳大气之感,整体的米色调加以编排有序的木饰面为背景作点缀,彰显干练的同时加入金属元素轻奢中不失宁静优雅,让主人在繁忙的工作中回到家可以放松下来,拥有一个良好舒适的休憩环境。
『 设计团队 』
『 专注 · 深圳高端私宅设计』
▼往期推送
(点击图片即可阅读)
一度经纬2021招聘|以梦为马,不负韶华
壹喜丨为味蕾增添仪式感,品美味艺术意境的奥妙
日记丨让时间回归原生活的本质,记录岁月的一切美感
一度经纬
One Focus Design
专注深圳高端室内设计
客服
消息
收藏
下载
最近





















