查看完整案例


收藏

下载
拥有一颗安静的心
做给予人启迪和温度的设计
家是能让人治愈和滋养的地方
本案业主是留学归来的新婚夫妻,热情好客,在色彩搭配上不需过分艳丽,想要一个艺术理想的家。设计师对“家”的定义进行崭新诠释,将其室内墙体最大化地打通,使得空间通透。围绕客餐厅为中心布局,构建空间的交互性与艺术美学平衡增益的理想空间。
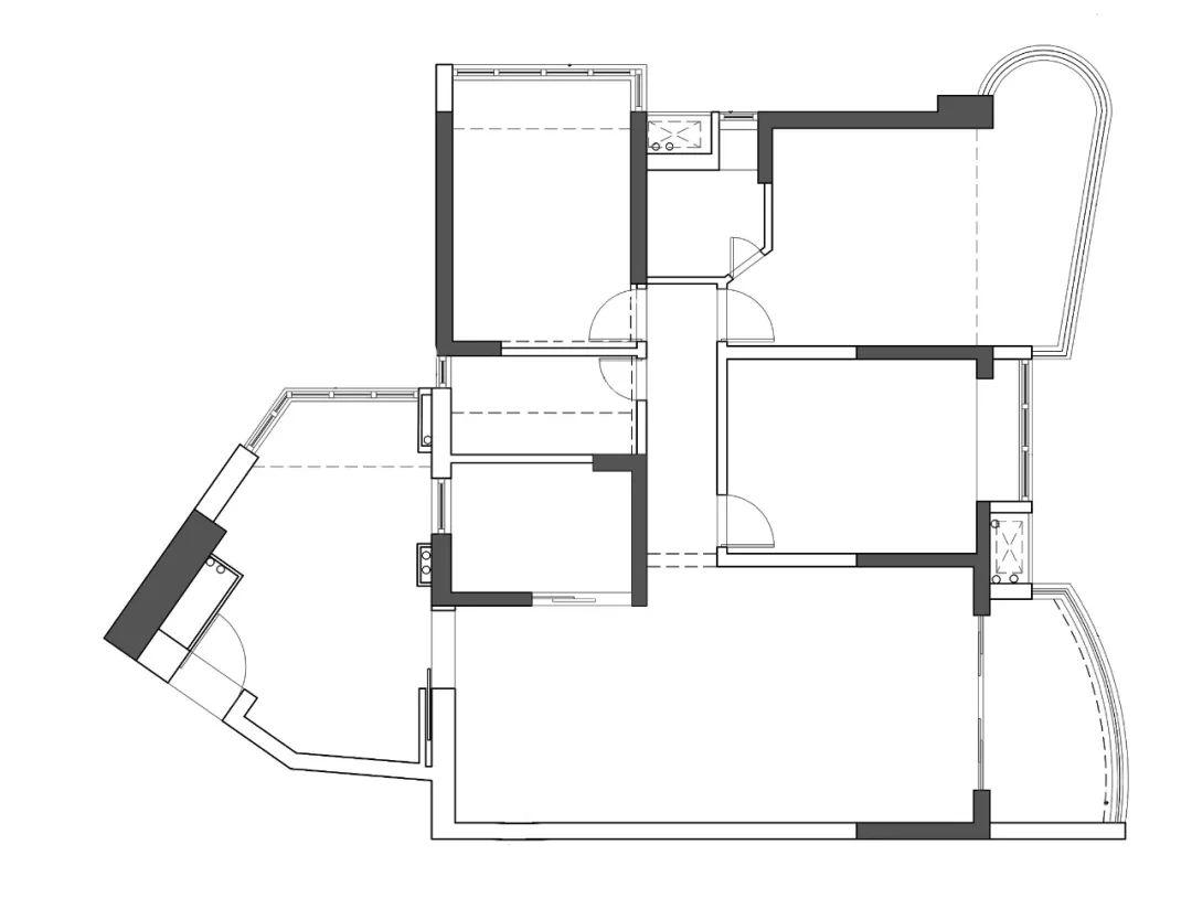
▲户型图
▲平面图
①为了使得整体空间开阔,设计师将几个空间串联起来,增添了更多的交互情境。
②入户玄关的位置业主原本设置了茶台,而且没有足够的储物空间;设计师在进门的右手边的位置设置了鞋柜,不仅保证夫妻二人的鞋帽收纳,而且设置了换鞋凳与换衣镜满足换衣打理的需求。
③业主热情好客,经常邀请朋友来家里玩桌游做客,设计师在此设置了休闲区域。
④原先户型是标准的三房,设计师将其中一个房间打通做成多功能房,应对与不同的生活场景,利用推拉门做隔断,实用而美观。
Recreational Area
休闲区
在入户进门看到便是休闲区域。沙发选用法国品牌LIGNE ROSET,尽情享受慵懒时光的同时,也代表着业主优雅的生活方式。
Living And Dining Room
客餐厅
居家的重心在客餐厅,生活模式开放包容,给人一种舒适的空间氛围,不仅满足家庭日常的社交需求,多重空间之间也得以自由切换。
凝练艺术感染力的空间,呈现出私人奢宅的高雅氛围。
设计师将原先的门洞打通,在客餐厅与休闲区的一个中心区域做了水吧台,满足平常品酒吃简餐的需求。
空间中不乏多元异质的界面混搭,木饰面与黄铜金属、奢石岩板,孔雀绿的餐椅等素材赋形于人体尺度的家具形态,以沉稳的色调和现代主义作为设计的基石,唤醒家具的艺术魅力。
厅前落地玻璃让阳光肆意浸入,通透而朗阔的空间明亮了人的心境。
开放式的储物柜,兼具储物与展示的功能,可以放置艺术品以及藏品,在兼顾日常生活使用习惯的同时也表达了舒适的生活主旨。
Multi-Function Room
多功能房
将原本的房间打通作为一间活动的多功能房,连接客厅与餐厅使得空间通透感进一步提升。多功能房墙面做了高柜与隐形床,方便客人在这里留宿与储物等功能。
这里可以应对于不同的生活场景:男女主人可以在这里同时办公,有客人来的时候可以关上暗藏式推拉门而不受外界影响,日常便可拉开门让整体空间通透开阔。
整体延续性共存。这不仅是一个私密空间更是多功能的休闲区域,木色纹理的书桌是让人静心思考的有形载体。各个区域的功能独立,而内在整体延续性共存。
Master Bedroom主卧
主卧以低调的奢华为装饰理念,以木饰面为基底,运用金属来提升空间质感,予人华丽的轻松。
设计师将弧形的飘窗做了软榻和床旁的展示书架,以细节显露人性化的设计考量,简约却精于品质。搭配温馨的床头灯光将氛围感拉满,消解繁忙都市人的疲惫,归属感油然而生。将家的维度重新阐释,灵活交互的空间功能,契合人文艺术的空间仪式,这就是对家全新表达。
『 设计团队 』
『专注·深圳高端私宅设计』
▼往期推送
(点击图片即可阅读)
一度经纬2021招聘|以梦为马,不负韶华
香榭丨品咖啡味道,解开品质生活的方程式
漫妮丨韩式治愈系的茶饮店,踏上浪漫解忧之旅一度经纬
One Focus Design
专注深圳高端室内设计
客服
消息
收藏
下载
最近


























