查看完整案例


收藏

下载
PINSHEN.DESIGN STUDIO
品燊设计工作室
项目简介
Product Instroction
案例名称|Name:鹭江新城L宅
地址|Address:思明区莲秀里
面积|Square Meters:45
设计|Designer:品燊设计
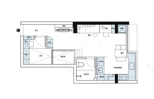
平面图
PLANE
▼设计师前言:我们希望空间是灵活的,开敞的。希望空间之间会有一些有趣的互动,不去刻意强调空间的轴线关系,但追求空间统一的气韵。我们希望空间形成后,能够带动家人之间的互动,增进家人之间的情感交流。规划好主要动线和辅助动线,主要动线使用过程中,辅助动线可以独立使用。我们提倡私人空间和个人世界的独有性,也希望使用者能够从房间中走出来,彼此沟通交流。
We want the space to be flexible and open. Hope that there will be some interesting interaction between the Spaces, do not deliberately emphasize the axis relationship of the space, but the pursuit of space unified charm. We hope that after the space is formed, it can drive the interaction between families and enhance the emotional communication between families. Plan the main moving line and the auxiliary moving line. During the use of the main moving line, the auxiliary moving line can be used independently. We promote the uniqueness of the private space and the personal world, and we want users to come out of the room and communicate with each other.
01LIVING ROOM
客餐厨区
客厅设计简洁干净,没有过多的装饰品.沉稳大气。
The design of the living room is simple and clean, without too many decorations. Calm atmosphere.
02KITCHEN厨房
简单干净的厨房更贴合家的温馨。
A simple and clean kitchen is more suitable for the warmth of home.
03TOILET
卫生间
卫生间磨砂岩的自然纹理成为这里的主角,黑白灰的巧妙结合划分了整体空间,在这里简约舒适的体感迎然而上。
The natural texture of matte rock in the bathroom has become the protagonist here. The ingenious combination of black, white and gray divides the overall space. Here, the simple and comfortable body feeling is welcomed.
05MASTER BEDROOM主卧
进入卧室,置身其中让人感到格外放松与惬意,绿植为空间增添几分艺术的美感。
Entering the bedroom, being in it makes people feel particularly relaxed and comfortable, hanging paintings add a bit of artistic beauty to the space.
END
Tel /18650121190
品燊设计
福建省厦门湖里区
岭下西路设计公社二期523室
长按扫码,关注我们哦~
关于我们
About Us
我们是一家专业为高品质居住空间提供室内设计、施工执行、软装陈设的全案服务机构。自创立伊始,主创团队始终遵循“功能美学/家”的设计理念,用心解读个性与喜好,坚持居住功能设计与生活美学享受完美融合,用建筑的艺术语言和表现手段包括空间、光线、比例、色彩等,共同构筑舒适与品位并存的室内空间。承接厦门及周边地区新房毛坯/二手房重装/精装改造项目服务,每月限量接单请提前预约。
荣誉奖项
2021 年第九届Hi~Design室内设计大赛中荣获“闽西南大区公寓组铜奖”2021 年40UNDER40中国(厦门)设计杰出青年(2021-2022)2021年心设计大奖赛“住宅空间设计TOP102021 年IHIDA国际人居空间设计”年度十佳公寓空间“2021年芒果奖全国TOP100晋级(住宅/公寓空间类)2021 年荣获“2021中国家装设计百强提名人物”荣誉称号(广州设计周
2021年荣获“未来空间智装营·智装设计大赛(2021-2022)未来空间智装师TOP100”荣誉
2020年中国空间设计大赛TOP100中国家居百强设计师
2020厦门室内设计青年设计师TOP100强设计师
2020金住奖-2020中国(厦门)十大居住空间设计师
2019年度国际环艺创新设计作品大赛-住宅公寓空间类银奖
2019厦门十佳设计作品奖10强设计作品(海峡导报)2019厦门市室内设计青年设计师30强榜单(海峡导报)2018鵬鼎奖公寓十佳作品奖(鹏鼎奖)
客服
消息
收藏
下载
最近













