查看完整案例


收藏

下载
PINSHEN.DESIGN STUDIO
品燊设计工作室
项目简介
Product Instroction
案例名称|Name:流动 J宅
地址|Address:厦门双涵佳园
面积|Square Meters:80
设计|Designer:品燊设计
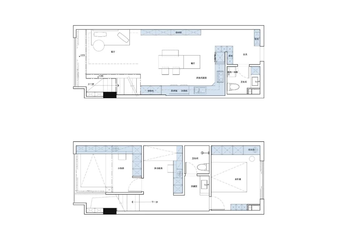
平面图
PLANE
▼设计师前言:居住空间应该是一个让人在精神上能够获得充实饱满力量的场所,这次的新作,延续了过往现代极简的风格,在80平三居室人居的空间里做了大量留白,不只体现少即是多的严谨之美,也充分运用极简的体块设计结合现有的空间条件,建立透亮的空间秩序。
01Hallway玄关
玄关作为室内外的缓冲地带,既要重实用(收纳衣物、鞋子、杂物),也要讲效果(保证私密性、回家仪式感.
As a buffer zone between indoor and outdoor, the porch should not only focus on practicality (storing clothes, shoes and sundries), but also on effect (ensuring privacy and a sense of home ceremony).
02LIVING ROOM客厅
开放式的场域,让空间感从四方发散,没有条条框框的切分,产生更为自在流动的穿透感受。
Open field, let the sense of space from the four directions, no rules and regulations of the division, a more comfortable flow of penetration feeling.
03MASTER BEDROOM主卧
进入卧室,置身其中让人感到格外放松与惬意,绿植为空间增添几分艺术的美感。
Entering the bedroom, being in it makes people feel particularly relaxed and comfortable, hanging paintings add a bit of artistic beauty to the space.
05
CHILDREN’S ROOM
儿童房
儿童房是轻快灵动的,在冷色与暖色的碰撞下,助于培养活泼开朗、积极向上的性格。大而透亮的玻璃窗让整个房间显得宽敞明亮。
The children’s room is lively and agile. Under the collision of cold and warm colors, it helps to cultivate a lively, cheerful and positive personality.
07
CHILDREN’S ROOM
卫生间
大而透亮的镜面让整个房间显得宽敞明亮。
The large and translucent glass windows make the whole room look spacious and bright.
END
Tel /18650121190
品燊设计
福建省厦门湖里区
岭下西路设计公社二期523室
长按扫码,关注我们哦~
关于我们
About Us
我们是一家专业为高品质居住空间提供室内设计、施工执行、软装陈设的全案服务机构。自创立伊始,主创团队始终遵循“功能美学/家”的设计理念,用心解读个性与喜好,坚持居住功能设计与生活美学享受完美融合,用建筑的艺术语言和表现手段包括空间、光线、比例、色彩等,共同构筑舒适与品位并存的室内空间。承接厦门及周边地区新房毛坯/二手房重装/精装改造项目服务,每月限量接单请提前预约。
荣誉奖项
2020 中国空间设计大赛TOP100中国家居百强设计师
2020厦门室内设计青年设计师TOP100强设计师
2020金住奖-2020中国(厦门)十大居住空间设计师
2019年度国际环艺创新设计作品大赛-住宅公寓空间类银奖
2019厦门十佳设计作品奖10强设计作品(海峡导报)2019厦门市室内设计青年设计师30强榜单(海峡导报)2018鵬鼎奖公寓十佳作品奖(鹏鼎奖)
客服
消息
收藏
下载
最近





















