查看完整案例


收藏

下载
连云港设计力量 曾毅团队 & 品炙烤肉
品炙是一家开在连云港苍梧路利群商场后面巷子里的店,我们想赋予品炙一种韵味深长的日式幽静的美,摈弃短暂的商业视觉快感,整体设计元素简洁化、精细化。让空间有品质而不浮夸,含蓄而不简单。第一眼,你会觉得她更像是喧嚣城市中的收藏馆。
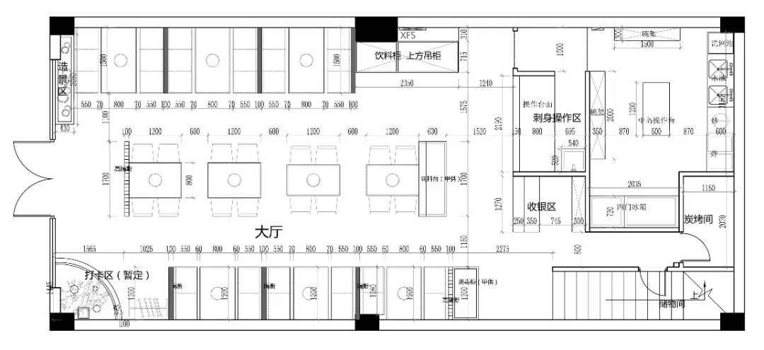
一楼就餐大厅简化了各种日本文化元素,只用了人字屋顶和日式建筑抽象的组合构成,没有其他的设计元素喧宾夺主。
在日料的纯正血统中,名厨向来是最为重要的食用佳地,它是日式食客对料理艺术的直接接触,直接连接的后厨保证了食材用最少的时间送至食客面前。
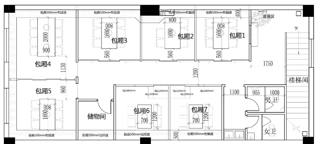
如果说一楼是对日料仪式的致敬,那么二层就是对实用空间的打造了,而楼梯成了精神印象与现实体验空间的联系。顶着球形的灯光,踏阶而上,伴随着前方万千姿态的造景,仿佛用一种方式叙述着日式对客人最高的欢迎礼。
整个二层分隔成七个独立的包间,有两个通过中间活动的隔断可以灵活的组建成大的包间,满足团队集体就餐的需求。
其余五个包间采用日式传统的和室风格,全部由木质框架构建,保留了木榫结构。为了避免室内空间狭小导致的封闭感受,部分包间上部采用镂空处理。窗和移门采用了木格和日式宣纸结合,自然通风而采光,营造出诧寂之美。
说明:由于时间等因素影响,本案例未进行商业拍摄,以上实景图片皆为手机拍摄。
▼一层平面图
▼二层平面图
项目名称:弘秋居鲜物日料店
设计单位:连云港设计力量 大千空间设计 曾毅团队
主创设计:曾毅
参与设计:刘珍、张朝、郭冬玲
项目地点:连云港
项目大小:200m2
设计时间:2020年7月
完工时间:2020年9月
施工造价:30万(硬装)
END
曾祥虎
(曾毅)
大千空间设计
\点度装饰 创始人
好的空间是有灵魂、有故事的。他说:设计是倾听、是创新,而不是复制,想要在设计行业独当一面,对设计必须要有独特的理念和见解,最终让设计回归生活。
设计理念:设计就是将客户的需求和设计师的设计语言进行融合与表达。空间不能过度设计,将形、色、质、光控制的恰到好处。设计需基于施工造价基础之上,考虑落地性。
获奖情况
2012 连云港市“苏园杯”庭院景观设计大赛 二等奖
2019 鲲鹏奖·第二届中国室内装饰设计大赛商业空间 优秀奖
2019 鲲鹏奖·第二届中国室内装饰设计大赛公共空间 优秀奖
2019 中国空间设计大赛“鹏鼎奖” 年度新锐设计师
2020 晶鲲鹏奖国际设计大赛(工装组) 三个优秀奖
2020 TOP100 中国精英设计师峰会 中国十大当红文创设计师
2020 红棉中国设计奖.室内设计奖
公司介绍[点度装饰高端设计]
公司设计立足连云港,面向全国。致力于商业、办公、教育、文化、私宅等空间项目的室内设计、软装陈设一体化服务。提倡坚持设计以人为本,坚持设计关注自然、生态、环境,坚持做有故事、有温度的设计。公司团队设计水平一直与北上广深接轨,坚持不断
“走出去”理念,一直保持与北上广深等优秀设计公司联系,不定期组织设计师到国内外学习考察。公司倡导“港城也有好设计”,有志于通过团队共同努力,加强和同行业优秀设计机构交流与沟通,共同推动连云港室内设计行业发展。
详细咨询热线:
18551729374 18861333508
连云港点度装饰设计有限公司(大千空间设计)
版权所有,
客服
消息
收藏
下载
最近
































