查看完整案例


收藏

下载
01
项目简介
项目地位于连云港市海州区海昌北路(戴森酒店旁),原建筑是政府档案局大楼,说实话用来做剧本杀是很有意思的,感觉像穿越时空,或许以前存在这的档案重新在这个剧本杀舞台上被不同的人演绎着。甲方是戴森酒店老板引荐的,是一群很有想法的年轻人。
本项目于2021年9月施工完毕并经营,成为连云港目前最大的剧本杀娱乐场所。
门头前后对比照
施工过程记录
原始与科技的碰撞
门头根据原始的结构打造了一个独特的异形造型,整体采用原始的水泥墙,左右两边放置大型kaws玩偶和绿植,搭配的克莱因蓝圆球与两边拱形玻璃窗映射出的室内灯光和连接门厅的走廊形成强烈的色彩对比,让时空分割感更加的明显。空间富有科技感并且生动有层次,店名运用发光字体,在夜晚看上去更加富有神秘感,赛博朋克风和水泥工业风的搭配设计碰撞出了高级感,吸引了更多顾客来打卡拍照。
连接门厅的太空舱式走廊采用充满活力的橙色,搭配两旁蓝色的灯光和原始粗糙的砖块形成强烈的对比,使顾客完成“穿越时空”的体验,仿佛穿越到了一个充满未来感的高端科技的异世界。
吧台采用了镜面水波纹柜体,大理石台面橙色灯光与蓝色灯光形成空间的色彩冲突,给顾客一个视觉上的冲击。
中间区域休息区是用木板和原始砖块拼接而成的桌子和现代风椅子组合而成,顶面安装镜面水波纹吊顶,既展现了未来复古感又让人不感觉突兀、廉价。旁边区域软装的蓝色沙发和橙色灯光相碰撞搭配极具现代感的钢琴装饰、粗糙的砖块和蓝色摆件,无一不在进行视觉的冲击,让空间的不真实感加倍。顾客白天可以在此区域休息喝咖啡,晚上灯光亮起,这个区域就可以摇身变成一个供人聚会喝酒的清吧。
03
火星撞地球
卫生间的区域,墙体采用原始感的水泥墙面,展现凹凸不平的粗粝质感。洗手台均采用大理石台面,男卫运用蓝色洗手池搭配蓝色灯光,女卫运用橙色洗手池搭配橙色灯光,营造出一个“火星撞地球”的空间概念。
04
穿越剧本杀房间
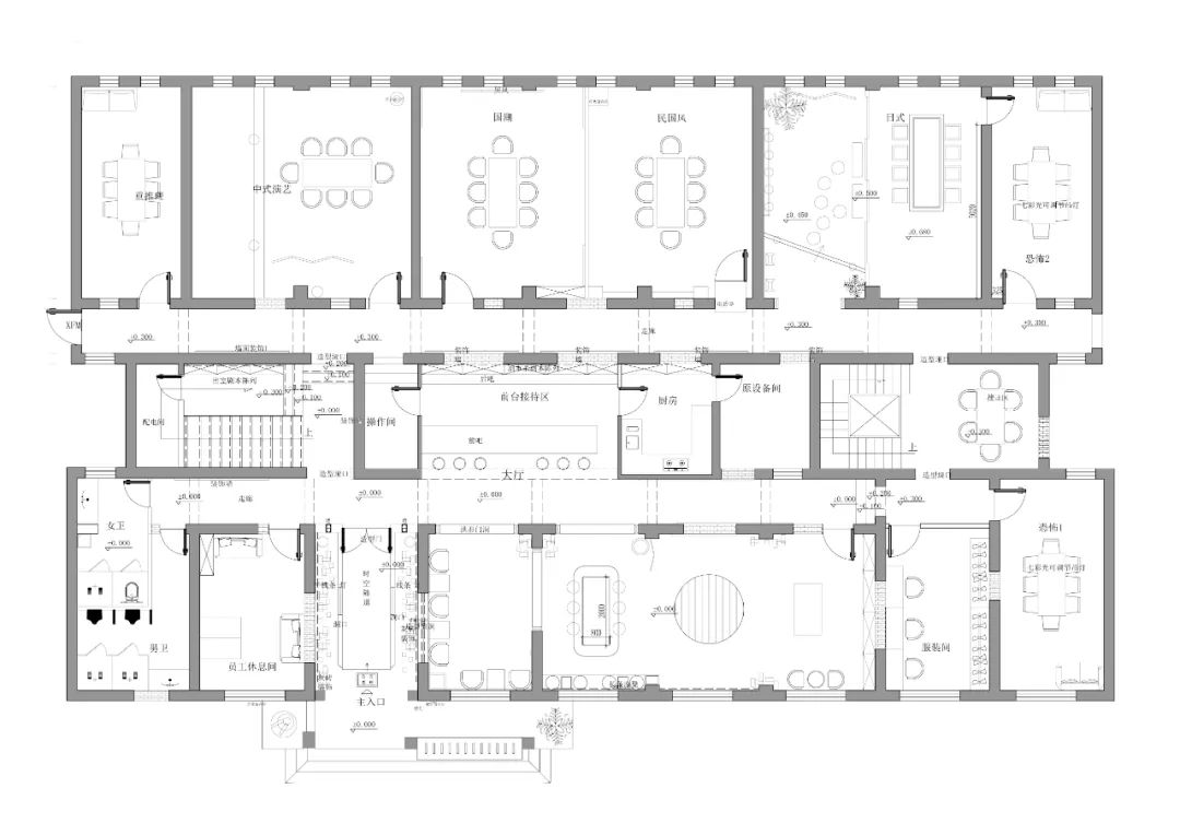
剧本杀房间共分为6个主题:日式、中式、国潮、民国、恐怖和重推理。
各种风格主题场景的打造,让顾客身临其境,更好的将自己代入到剧本中,给顾客一个完美的游戏体验。
日式房间外以鹅卵石、踏步石等布景划分区域,保留鲜明的地域特征,营造场景真实感。房间内采用日式文化代表的榻榻米和浮世绘墙纸,推拉门采用木格拉门,家具、地板等运用原木色,将房间内打造出原汁原味的传统日式风格。
中式房间家具主要是以深色为主,有深厚沉稳的底蕴。装饰造型主要采用硬朗简洁的直线条,使空间具有层次感。
国潮房间在中式设计的传统基础上,添加当下流行时尚中国文化元素,传统和现代时尚相碰撞,体现出东方传统文化的魅力。墙面采用仙鹤、祥云等中国元素,呈现大气高级的感觉。
恐怖主题的房间采用复古暗沉的家具,整体场景设计的黑暗且压抑,使空间充满阴森的气息,将恐怖氛围拉满,刺激又紧张,提高顾客沉浸式的感受。
重推理房间采用富有未来感的蓝色墙面和银色门搭配大理石地面,顶部运用线形造型灯,墙面放置科技感装饰灯箱,营造出一个极具神秘感的空间,烧脑与趣味兼并。
平面布置图
ProjectName|项目名称
ERROR404剧本杀馆
Location|项目地址
连云港海昌北路(戴森酒店旁)Area|项目面积
600m2
Chief Designer | 首席设计师曾毅
Design Company | 设计公司点度空间设计
Participating designer | 参与设计师曾毅、张朝、张暮桐
Photography | 摄影师许刚
DESIGNER
设计师介绍
曾祥虎(曾毅)上海壹粒沙空间设计点度空间设计创始人好的空间是有灵魂、有故事的。他说:设计是倾听、是创新,而不是复制,想要在设计行业独当一面,对设计必须要有独特的理念和见解,最终让设计回归生活。设计理念:设计就是将客户的需求和设计师的设计语言进行融合与表达。空间不能过度设计,将形、色、质、光控制的恰到好处。设计需基于施工造价基础之上,考虑落地性。获奖情况2012 连云港市“苏园杯”庭院景观设计大赛 二等奖2019 鲲鹏奖·第二届中国室内装饰设计大赛商业空间 优秀奖2019 鲲鹏奖·第二届中国室内装饰设计大赛公共空间 优秀奖2019 中国空间设计大赛“鹏鼎奖” 年度新锐设计师2020 晶鲲鹏奖国际设计大赛(工装组)三个优秀奖2020 TOP100 中国精英设计师峰会 中国十大当红文创设计师2020 红棉中国设计奖.室内设计奖2021-202240UNDER40中国(连云港)设计杰出青年公司介绍[点度空间设计公司设计立足连云港,面向全国。致力于商业、办公、教育、文化、私宅等空间项目的室内设计、软装陈设一体化服务。提倡坚持设计以人为本,坚持设计关注自然、生态、环境,坚持做有故事、有温度的设计。公司团队设计水平一直与北上广深接轨,坚持不断“走出去”理念,一直保持与北上广深等优秀设计公司联系,不定期组织设计师到国内外学习考察。公司倡导“港城也有好设计”,有志于通过团队共同努力,加强和同行业优秀设计机构交流与沟通,共同推动连云港室内设计行业发展。详细咨询热线:18551729374 18861333508连云港点度装饰设计有限公司(上海壹粒沙空间设计)文字/图片:点度设计图片调整编辑/排版:张大千
客服
消息
收藏
下载
最近






































