查看完整案例


收藏

下载
古有人生九境,通达、旷达、深邃、超我、苍茫、超脱、脱俗、无常。而今,倡导“大音希声,大象无形”的
九
境
全时生态健康会所
,纳草木芳华、自然山水于会所,将东方韵味的雍容内敛与自然共生融于一室,呈现出“以清净心看世界,以欢喜心过生活,以平常心生情味”的氛围。
In ancient times, there were nine realms of life, accessible, broad, deep, superego, vast, detached, refined, impermanent. Today, the Nine Realms / Full-time Eco-Health Club, which advocates “great sounds and elephants are invisible,” embraces plants and natural landscapes in the club. The atmosphere of "seeing the world with a clean heart, living with joy, and feeling with ordinary hearts".
为了提升空间的灵动性和趣味性,设计师在入口,用极具雕塑感的楼梯贯通三层空间,使逼厄的过厅平添艺术感。将朝向道路的窗户立面封堵,用戏剧性的光线与楼梯底部点点星光相辉映,在艺术楼梯上时有时无的闪现,充满意趣与美学巧思。
In order to enhance the flexibility and fun of the space, the designer uses an extremely sculptural staircase to penetrate the three-story space at the entrance, adding an artistic sense to the energetic hall. The facade of the window facing the road is blocked, and dramatic light is used to reflect the little starlight at the bottom of the staircase. Sometimes it flashes on the artistic staircase, full of interest and aesthetic ingenuity.
二楼等待区,设计师持续遵循“九重景、九重境、九重品”的理念,中魂西技、去繁就简,打造以山水为脉络、以自然为心,以树石为核,以人为尊的空间精髓。漫天飞舞的蝴蝶,在蓝色的光景屏幕的衬托下有着轻松、静谧的调性,更在冷光与暖光的冲撞、融合过程中,烘托出令人沉醉的绝美空间。整个空间以自然为设计重点,透过大量木作、灯饰、思考人生的雕塑等物件,刻画出细腻的生态质感,让人沉心静气、宁静致远。
In the waiting area on the second floor, the designer continues to follow the concept of "nine-level scene, nine-level environment, and nine-level quality". The essence of human respect. The butterflies flying all over the sky have a relaxed and quiet tone against the blue background screen. In the process of collision and fusion of cold light and warm light, they create an intoxicating and beautiful space. The entire space is designed with nature in mind. Through a large number of objects such as woodwork, lighting, and sculptures that reflect on life, the delicate ecological texture is portrayed.
“洗尽古今人不倦,坐拥九曲品香茶”,与服务台相连的休息茶座映入眼帘。“一卷书、一盏茶、一炉香,食进千古茶,品悠九境韵。”在这质朴无华的空间一隅,大胆的采取了中式借景的手法,从人审美和功能需求出发,突显出现代人对生活精致追求和惬意生活的真切感受。
"After washing the ancient and modern people tirelessly, sitting on the Nine Songs to taste the fragrant tea", the rest teahouse connected to the service desk came into view. "A volume of books, a cup of tea, a hearth of incense, eat ancient tea, and enjoy the charm of nine realms." In this corner of the pristine space, boldly adopted the technique of borrowing scenery from the Chinese, starting from people's aesthetic and functional needs It highlights the real feelings of modern people for the delicate pursuit of life and comfortable life.
行至三楼VIP前厅,入眼的是“风、光、水、缘”这四大建筑美学元素。摇曳在风中的烛光、从天而降的水晶、水波粼粼的吊顶,这样风光水貌的实体存在,加上了一个“缘”,意味着虚实之间一切有为法,尽是因缘和合,缘起时起,缘尽还无。现代禅意合一的静穆、澄净、和煦在这一方悠然品茗的茶室里,齿颊留香、余韵萦怀。
Walking to the VIP lobby on the third floor, the four architectural aesthetic elements of "wind, light, water, and margin" are in sight. The candlelight swaying in the wind, the crystal falling from the sky, the sparkling suspended ceiling, such a physical existence of scenery and water appearance, plus a "fate", which means that everything between the virtual and the real is lawful, all due to fate and union, when the fate comes From the beginning, the fate is not yet there. The tranquility, purity, and harmony of modern Zen in this tea room where you can enjoy tea, the cheeks are fragrant and the aftertaste is lingering.
润物细无声、无法言喻的设计手法,让每个人身心愉悦油然而生,物我两忘,意犹未尽。这时,流动的空气,过滤的光线,宁静的节奏,舒适的温度……一个引入山、岩、水、树等自然元素的不同禅意包厢则能“洗”去一身的压力,达到凝神静气的效果。
The silent and unspeakable design technique of moisturizing objects makes everybody's physical and mental pleasure come naturally. At this time, the flowing air, filtered light, quiet rhythm, comfortable temperature ... A different Zen box that introduces natural elements such as mountains, rocks, water, trees, etc. can "wash" the pressure of one body and achieve calmness. Gas effect.
总的来说,整个空间设计师用轻松、静谧的调性,自然、生态的理念,几丛树枝、三两禽虫等便能撑起空间唯美的气质,一种惬意、典雅的空间气韵凸显。不同平面空间的自然转换,有着步步生莲的从容曼妙,也象征着九境像一股清流一样不随波逐流,坚守着一山一水、一草一木的精神追求,于此聚境赏境,悠然可自得。
In general, the entire space designer uses relaxed, quiet tones, natural and ecological concepts, a few clumps of branches, three or two birds and insects to support the beautiful temperament of the space, and a pleasant and elegant space charm is highlighted. . The natural transformation of different plane spaces, with the graceful gracefulness of the lotus, also symbolizes that the nine realms do not follow the waves like a clear stream, and adhere to the spiritual pursuit of a mountain, a water, a grass and a tree. , Leisurely and complacent.
(请翻倒手机看大图)
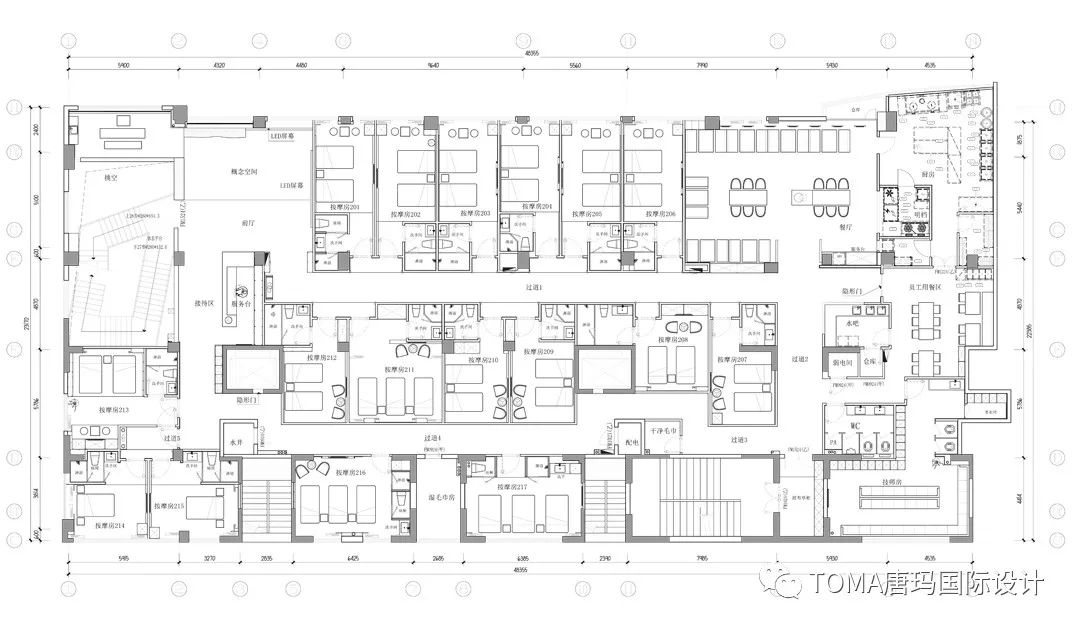
Floor Plan
平面图
1F平面图 / Floor plan
2F平面图 / Floor plan
3F平面图 / Floor plan
项目名称丨九境/全时生态健康会所
Name 丨 Nine realms / full-time ecological health club
设 计 师丨吴少余 谢佩弦
Design engineer 丨 Wu Shaoyu Xie Peixian
项目位置丨福建福州
Location 丨 Fuzhou, Fujian
项目面积丨2300平方米
Area 丨 2300 square meters
设计时间丨2019/4 — 2019/5
Design time 丨 2019/4 — 2019/5
施工时间丨2019/6 — 2019/10
Construction time 丨 2019/6 — 2019/10
照明设计丨许锋兵
Lighting Design 丨 Xu Fengbing
摄 影丨李 迪
Photo 丨 Li Di
软装团队丨福建元居陈设
Soft Decoration Team 丨 Fujian Yuanju Furnishings
设计师 / Designer
--END--
客服
消息
收藏
下载
最近







































