查看完整案例


收藏

下载
Architects: Slava Balbek, Anna Riabova Project Area: 40 sq.m. Project Year: 06/17 - 08/17 Location: Kyiv, Ukraine Photo credits: Slava Balbek
建筑师:Salva Balbek,Anna Riabova项目区:40平方米。项目年:06/17-08/17地点:乌克兰基辅
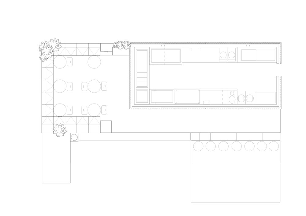
Vietnam Hi is an experimental project dedicated to street food for young investors. It is located at the very heart of Kyiv, in Bessarabka marketplace, where everyting is sold from the open market stalls rather than in fitted enclosed spaces. The place has historical and cultural value, so we wanted to preserve the effect of a traditional market stall, but at the same time add the aura of modern design.
越南喜是一个专门为年轻投资者提供街头食品的实验项目。它位于基辅的中心,在Bessarabka市场,每样东西都是从公开市场的摊位上出售的,而不是在贴合的封闭空间里出售的。这个地方具有历史和文化价值,所以我们想保留传统市场摊档的效果,但同时又增添了现代设计的气息。
We had to develop a concept of modern kiosk. We divided the space horizontally: lower part became a modern structure that visually separated our project from the marketplace.
我们必须发展现代亭的概念。我们水平地划分了空间:下层成为了一个现代结构,在视觉上将我们的项目与市场分隔开来。
You can see the loaded top part of it from afar, but it’s only when you come closer you realize that it rests on a functional platform with hidden cabinets and lockers.
你可以从远处看到装载的顶部部分,但只有当你走近的时候,你才会意识到它是建立在一个功能平台上的,里面有隐藏的橱柜和储物柜。
客服
消息
收藏
下载
最近

















