查看完整案例


收藏

下载
星瀚 Pure black home I 原始平静 在充满神秘力量感的黑灰色调空间中留下寻光的印记,步入这个空间,就犹如褪尽繁华回归本真;进入属于自己的一方天地,被黑色所包裹,它接纳你的一切情绪。
该项目位于上海宝山区,建筑面积 120㎡。原始框架为三室两厅两卫,平时是业主夫妻二人居住,所以设计师尽可能打开空间,让其进行复合,创造更多可能。
玄关
Entryway
I
用工字钢与柜体进行组合成玄关柜,搭配竖向栅格储物柜。让玄关消失在空间中,从而把客餐厅的距离感拉开。不同高度的方块,重新组合,构建出空间的功能性和区域感。
客厅 Living Room I 生活不是一成不变的,模块家具的应用,可适用于不同生活场景。书桌与沙发形成不同的互动关系。冲孔方块的电视柜门,开放式方格柜,框架柜体,以及框架空间,让细节在空间中延续。
书房
Study Room
书房与客厅之间用折叠门作为空间的分割。展示、收纳与功能结合在柜体设计与产品设计中。栅格的隐藏柜体与钢板飘窗的衔接,让书房平和且有质感。
餐厅 Dining Room
I
餐厅与吧台相邻,吊灯有效的控制了灯光的范围。舒适的软座椅和实木餐桌,手感非常舒适。两幅大型的手绘壁画是业主精心挑选的。吧台靠近窗户,左右两边分别是:食品柜和水处理设备柜,金属吧台以及咖啡制作区。
厨房 Kitchen I 封闭式的中厨,满足日常烹饪需求,全岩板铺装的厨房,让接缝极限少。
衣帽间
Cloakroom
I
黑色柜体与灰玻组成了衣帽间区域,化妆台设置在靠窗位置。
主卧 Master Bedroom
I
方块元素在卧室也进行了应用,栅格隐藏式收纳,凹槽置物平台,以及悬浮床头柜。组合式桌面,移动式抽屉柜。可调节模块光源。
主卫 Master Bathroom
I
作为功能性空间,梳理了各类预埋式产品,更易打理。预埋式花洒以及壁龛、悬浮岩板台盆、壁挂马桶以及马桶上方的收纳柜。
客卫 Guest Bathroom I 开放式干区设置在枢纽的隐蔽位置,方便使用。次卫作为功能性空间,功能一应俱全。淋浴房的三叠门应用让入口更加开阔。
过程
PROCESS
I
项目的过程也是非常有趣的,现场的微调都是为了更好的体验感。感谢业主、施工以及各个供应商的配合。
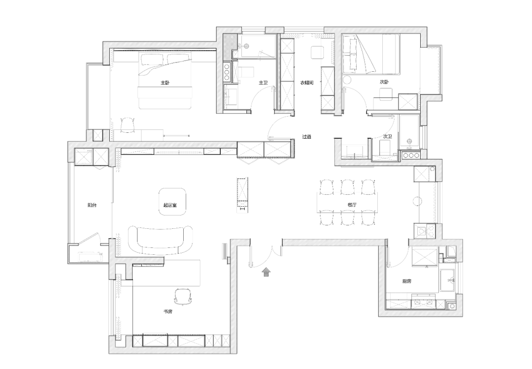
平面图
DESIGN PLAN
原始平面
平面布置
项目信息
ABOUT THEPROJECT
项目名称|星瀚
项目地址| 大华碧云天
建筑面积| 120㎡
主创设计|辛举鹏
施工单位 |巽坎装饰
竣工时间| 2022.05.05
摄影团队|云眠工作室
辛举鹏
辛举鹏设计工作室创始人
专注私宅空间、商业空间设计。
坚持自然、前沿的设计风格,兼顾美感和实用,挖掘空间的可能性。
通过收集、整理、推翻、重组的思考方式,重新构建设计语言,用专业和眼界让作品无限接近期许。
本案由辛举鹏设计工作室提供,为授权稿件。
# 投稿&商务
15365132937
肥橘/莉莉/猕猴桃
/月杪
Tel:18066041052
客服
消息
收藏
下载
最近





















































