查看完整案例


收藏

下载
编译:专筑网K-C,小R
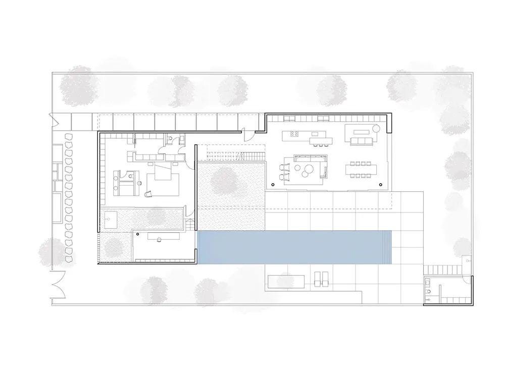
在K住宅的中心,起居室的落地窗俯瞰着庭院和泳池,这个位于以色列特拉维夫的极简主义住宅,正是以色列建筑师Pitsou Kedem的新作。 纯净的白墙、简单的装饰,皆来源于“寻觅宁静”的理念,其背后是一个想要远离市中心、寻找庇护的家庭的期望。 透气石灰灰泥覆盖的白墙,取材于特拉维夫白城,一组由被联合国教科文组织列为世界遗产的现代主义建筑群。
▲ K住宅位于特拉维夫,由 Pitsou Kedem 设计
建筑师说:“删掉那些繁文缛节——这是我们的出发点。我们想设计一座建筑语言连贯的住宅,哪怕随着时间磨损,建筑也会优雅地老去。” “住宅的空间秩序,让人们可以从设计的花哨视觉、嘈杂声响、过时时尚以及社交网络媒体的无休止入侵中得到喘息。”建筑师补充道。 这座 L 形住宅被花园所环绕,对外形成视觉遮挡;人们沿着场地北侧的小路进入场地内部,可以看到铺装露台和泳池。
▲ 住宅通身为白色外墙
虽然位于中央的起居区相对开放,但住宅的其余区域皆有玻璃和白墙组成的“双重立面”,以在住宅周边形成更凉爽的小气候,住宅中央设有一组室内庭院。 主卧室位于起居区西侧一楼,有一处私人庭院,同位于一楼的另外三间卧室可通往阳台和被高墙遮蔽的屋顶露台。 大型的倒角切口为白色抹灰的建筑外壳创造出景观视野,为室内和室外露台营造了不同的光影效果。 “我们通过‘双重立面’来维持中央空间阴凉并通风,即使在从沙漠刮风过来的极端天气里,使用者也可以在这里舒适地度过闲暇。”建筑师说道。 “一个抽象的、近乎雕塑的‘立面’的建筑体量,奠定了整体基调,当阴影和光线穿过空间时,建筑显得更加神秘感。” 建筑师补充道。
室内设计的主题是一种“无处不在的视觉沉默”,主要由单色石头和钢制家具组成,搭配浅色木材的存储空间和搁板。 Pitsou Kedem建筑事务所由以色列建筑师 Pitsou Kedem 于 2000 年创立。 该事务所的其他住宅项目包括位于Bnei Ziom 的一处铝制花纹屏风立面住宅,以及位于 Savyon 的一处被桥梁穿过中央庭院的住宅。 图片由Amit Geron提供。
首席建筑师:Tom Zruya
客服
消息
收藏
下载
最近


























