查看完整案例


收藏

下载
重庆装饰公司俏业家作为全案设计领先品牌,专注为业主提供基装、全案、整装多模式、全品类的一站式高品质装修服务,是值得信赖的重庆本土装修品牌。本实景案例是重庆俏业家装饰设计师为象屿观悦府102平四居室户型专门打造的现代风格装修案例。
——重庆象屿观悦府案例内容详情——
楼盘:象屿观悦府
区域:重庆市渝北区金绸街33号
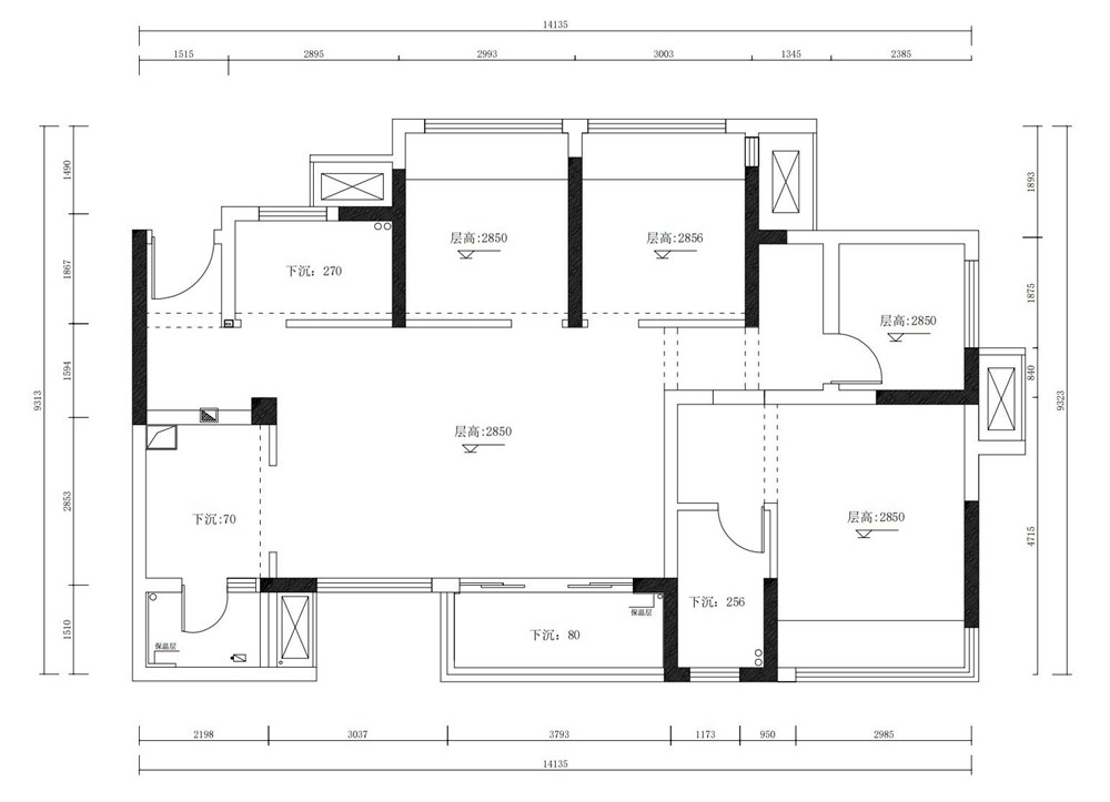
面积:套内102平
户型:四居室
装修风格:现代
设计师:刘桃羽
【业主需求】
本案是一个四口之家,夫妻加上一儿一女,生活幸福美满。对于新家装修,偏好现代风格的设计,希望设计师以孩子为出发点,将新家打造成适合二宝幸福成长的乐园,同时兼顾设计感与实用性。
【设计思路】
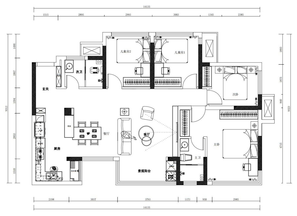
根据屋主需求,设计师对空间进行了重新布局规划,将原本较为受限的客餐厨区域改为“洄游动线”空间,让每个区域使用率最大化,同时融入屋主喜欢的咖色、原木材质,整合功能和风格,打造精致实用的现代风格美宅。
【户型改造】
从原始结构上看,本案户型方正,通风采光佳。唯一的不足是客餐厨区域空间狭小,摆上各种家具后空间会显得非常拥挤局促。如何在有限的空间内,扩大家的使用率,提升家的舒适度?接下来看看我们设计师是怎么做的!
1、左入户墙向次卫内推,留出多余空间布置鞋柜,解决入户后鞋子收纳问题。
2、拆除公共区域内所有非承重墙,客、餐、厨一体化设计,空间更显宽敞通透且大气。
【细节刻画】
1、客厅装修:屋主说:“舒适的生活离不开足够宽敞的客厅,人生得意须尽‘宽’,但这户型的短板恰巧是客餐厨区域空间不宽敞”。为了达到业主的期望,我们结合原承重结构和业主的喜好,拆除了入户、客厅、厨房、餐厅的一些零碎隔墙,将空间进行了化零为整的布局,并采用黑、白、咖三色进行搭配,使空间不仅在视觉上显得时尚大气,更让原本紧凑的公区有了大平层的阔错通透感。客厅电视背景墙采用木饰面+岩板的组合形式,温润的咖色木饰面拼接冷调白色岩板,材质丰富有品质。底部以“一”字型白色岩板地台作为承接,台面可用作小物品展示,整个区域线条简洁利落,视觉效果鲜明,极具设计美感。双人位皮质大沙发搭配圆形茶几组合,摆放方式则选用了最惬意自由的方式进行安置,让这一隅成为了屋主与亲友,身体与心灵最放松的场域。将阳台区域包入客厅,地面通铺处理巧妙地解决了原始客厅局促的问题。阳台的端头被设置为储物区与洗衣区,嵌入式设计使角落的空间也得到了有效的运用,空间规整感与采光达到最佳状态。闲散的午后,阳光透过薄纱洒入室内,搬一把懒人椅,抱一本闲书,就可以惬意的享受一整天的日光浴~
2、餐厅装修:客厅沙发背后自然地过渡到了餐厨区域,开放式厨房加上餐岛一体,让无论是在厨房做饭的妈妈,还是客厅带孩子的爸爸,都能很好的照应彼此,一家人其乐融融,就是生活最美好的样子。餐岛台顺接承重墙横于餐桌前,巧妙的将厨房做饭的凌乱遮挡,“洄游动线“让空间更显宽裕。原木餐桌搭配皮质餐椅,在线性吊灯的晕染下,餐厅更显温馨氛围。为了方便业主未来生活的便利性,设计师还在餐桌和中岛连接处设置了一个可移动轨道插座,无论是冬日吃火锅还是日常在家办公用电都非常方便,小细节大妙处。餐厅背后的儿童房墙面选用咖色护墙板做装饰,与餐桌、电视墙、吊灯在颜色遵循同一条主线,材质上形成互补,给人以层次分明,错落有致的视觉享受。
3、厨房装修:为了增加厨房的使用面积和采光,我们拆除了生活阳台与厨房的墙体,并将台面设计为L型,留出冰箱位置,使边角小空间也得到了合理的利用。台面上下都做了收纳柜,柜门选用银灰色与白色进行搭配,温馨时尚又大气。
4、主卧装修:温馨自然、整齐有序,是屋主喜欢的睡眠环境,设计师在主卧的打造上,选择了暖粉色+咖色烘托主卧柔和温暖的安睡氛围。窗外的风光得天独厚,仿佛置身城市之巅,俯瞰都市繁华。咖色床头背靠使用弧形设计,造型典雅大气,与一旁的床头柜、窗帘以及顶部的吊灯,在颜色上形成呼应,空间的整体性更好,同时也展露出主卧浪漫、高雅、端庄的风情。
5、卫生间装修:卫生间窗户选用的是透明的玻璃,再加入透光不透人的百叶保证私密性。淋浴区隔断安装的磨砂玻璃,即保证了卫生间干区的整体采光,又做到了同时使用互不打扰,马桶、淋浴盆同一方向摆放,空间看上去也更加简洁高级!
6、儿童房装修:女孩——儿童房空间相对紧凑,选用了粉色与果绿色进行搭配,给人以清新纯净,明媚鲜活之感。靠墙打造一体式衣柜,用于存放孩子的日常衣物。男孩——男孩房与女孩房的设计基本保持一致,唯一的区别在于天花的吊灯选用了梦幻的气球吊灯,床靠的设计更加简洁。
7、晾晒区装修:有人可能会疑惑,业主一家衣服晾哪里,现在就来为您揭开这个秘密。由于业主家安装的是中央空调,儿童房的空调外机位置就被完全保留了。设计师就在空调外机入口加装了玻璃门,内部加装不锈钢防护网,顶部安装晾衣杆,完美解决了屋主一家的量晒问题。
客服
消息
收藏
下载
最近































