查看完整案例


收藏

下载

翻译
Architects:Make Architects
Area :4900 m²
Year :2020
Photographs :Jack Hobhouse
Manufacturers : AutoDesk, Dornbracht, KEIM, Schüco, Adobe, Bentley Systems, Corian, Domus Tiles, Hansen, Havwoods, McNeel, Molteni & C, Ruddy JoineryAutoDesk
Project Manager :Avison Young, Avison Young (formerly GVA)
Landscape Architect :Del Buono Gazerwitz Landscape Architecture, Del Buono Gazerwitz
Planning Consultant :DP9
Lighting Consultant :EQ2 Light
Clients : Derwent London
Mep, Façade, Fire, Sustainability Consultants : Arup
Cost Consultant : AECOM
Cost Consultant : AECOM
City : London
Country : United Kingdom
Make Architects has completed a central London re-use residential project for Derwent London, a leading UK developer known for its distinctive, design-led portfolio that contributes positively to the urban realm of the capital. The Asta House Apartments form a significant part of Derwent London’s latest major mixed-use scheme known as 80 Charlotte Street in London’s Fitzrovia, which comprises commercial offices, luxury and affordable residences, retail and a new pocket park. Asta House involves the re-modelling of a 1950s light industrial building which more recently was used as offices. Setting a retrofit benchmark, the project reuses the existing building, adding extra floors. The existing fabric has been significantly upgraded to convert a dated block into a high quality, sustainable mixed-use development.
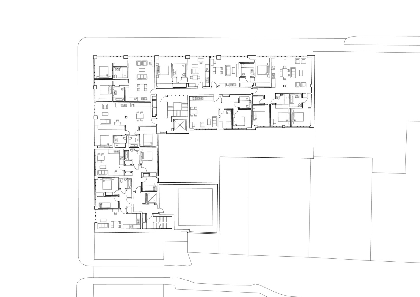
The building sits on a corner site that has now been transformed by the practice into 36 design-led residences with a mix of 1-3 bedrooms and 10 social apartments and 4 intermediate apartments. Two extra storeys have been added to the original 4 storey building to accommodate a pair of penthouse apartments, adding some 25% to the total available area. The new top floor has been carefully stepped back by Make to preserve the architectural integrity of Asta House. The sensitive massing of the top level extension respects the conservation area’s neighbouring buildings. Overall, Make’s approach has been to retain as much as possible of the original Asta House façade as well as its structure.
The design assimilates existing freestanding columns leaving these exposed where appropriate to emphasise the historic character and semi-industrial quality of the building and minimizing repetition within the apartments themselves. The interiors of Asta House are pared down yet welcoming in their use of materials and colours. These work well with natural light and are robust and high quality whilst mirroring the gravitas and dignity of the building’s sober external envelope. The existing top-lit terrazzo staircase has been meticulously restored and is flanked by Crittall-style windows to draw natural light into the corridors. Make designed a striking full height light for the stairwell with 18 individual pendants that complements the Modernist aesthetic of the space. Access to outdoor space has been an important part of Make’s design both at Asta House.
The two penthouses both have extensive private decks and the other apartments in the building share a courtyard terrace. All occupants will also benefit from Poets Park – a 240 square metre pocket park planted with which picks up on the smaller parks and squares hidden between the streets of Fitzrovia. Reducing the carbon footprint to the lowest practical level during demolition, construction and occupation have been a key driver. This has been achieved by retaining as much of the façade and structure as possible as well as including triple glazing and additional insulation, openable windows, and solar hot water heating panels to preheat domestic hot water for the whole building. The apartments have been designed to the Ecohomes standard, achieving an “Excellent” rating.
▼项目更多图片
客服
消息
收藏
下载
最近
















