查看完整案例


收藏

下载

翻译
Architects:UAD
Area :47457 m²
Year :2016
Photographs :ZYStudio
Architectural Design :Xuefeng Chen, Xiaoming Shen, Tao Hong
Structural Design : Wei Cen, Ruofei Liu, Zhengyu Zhang, Fan Jiang
Mep Design : Tiefeng Wang, Zhigan Cao, Songlin Yuan, Shengwei Zhu
Text : Tao Hong
Architectural Design Team : NO.2 Architectural Design Institute of UAD
City : Changzhou
Country : China
In a way, schools are somewhat similar to a "mini-city", where architectures, transportation and landscapes intertwine and form a physical space, and students of various age levels, along with the teachers, constitute a "miniature society". Nowadays, the city’s physical space in which we live is constantly creating new things as our lifestyles keep changing, and schools are no different. Following the continuous development of teaching models, the way of communication between students with other students and teachers has undergone changes as well. As the behavioral patterns of the "miniature society" in schools evolving, the physical space of campus buildings should be transformed and updated accordingly, so as to avoid hindering the development of this "mini-city".
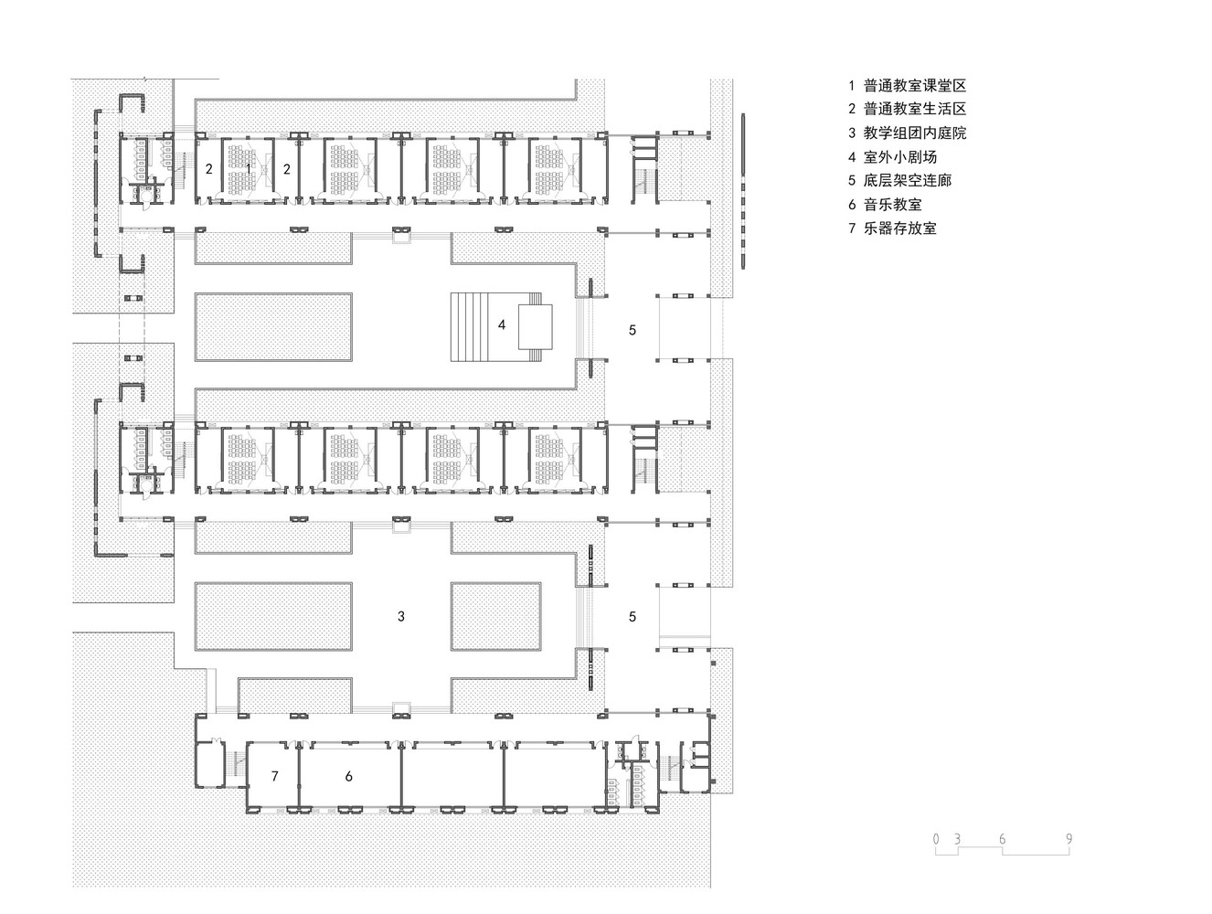
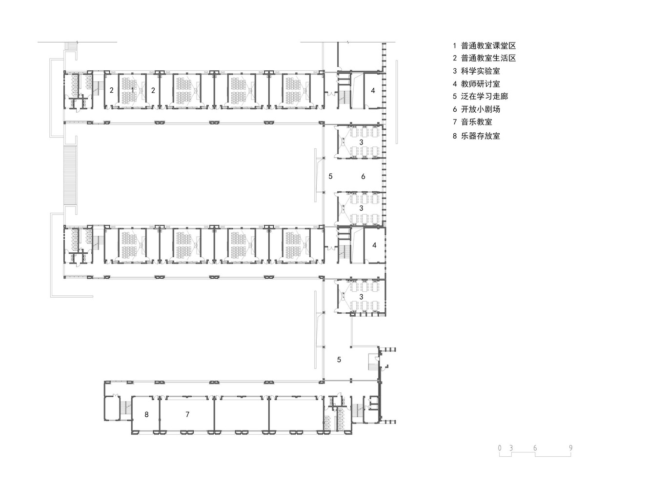
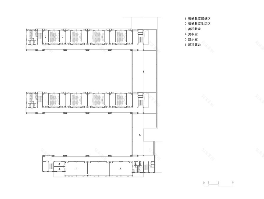
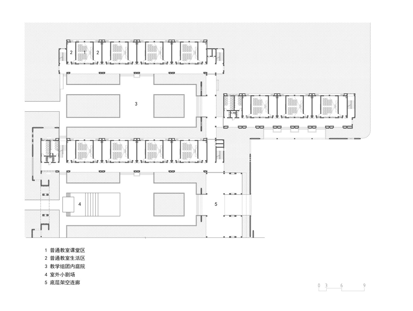
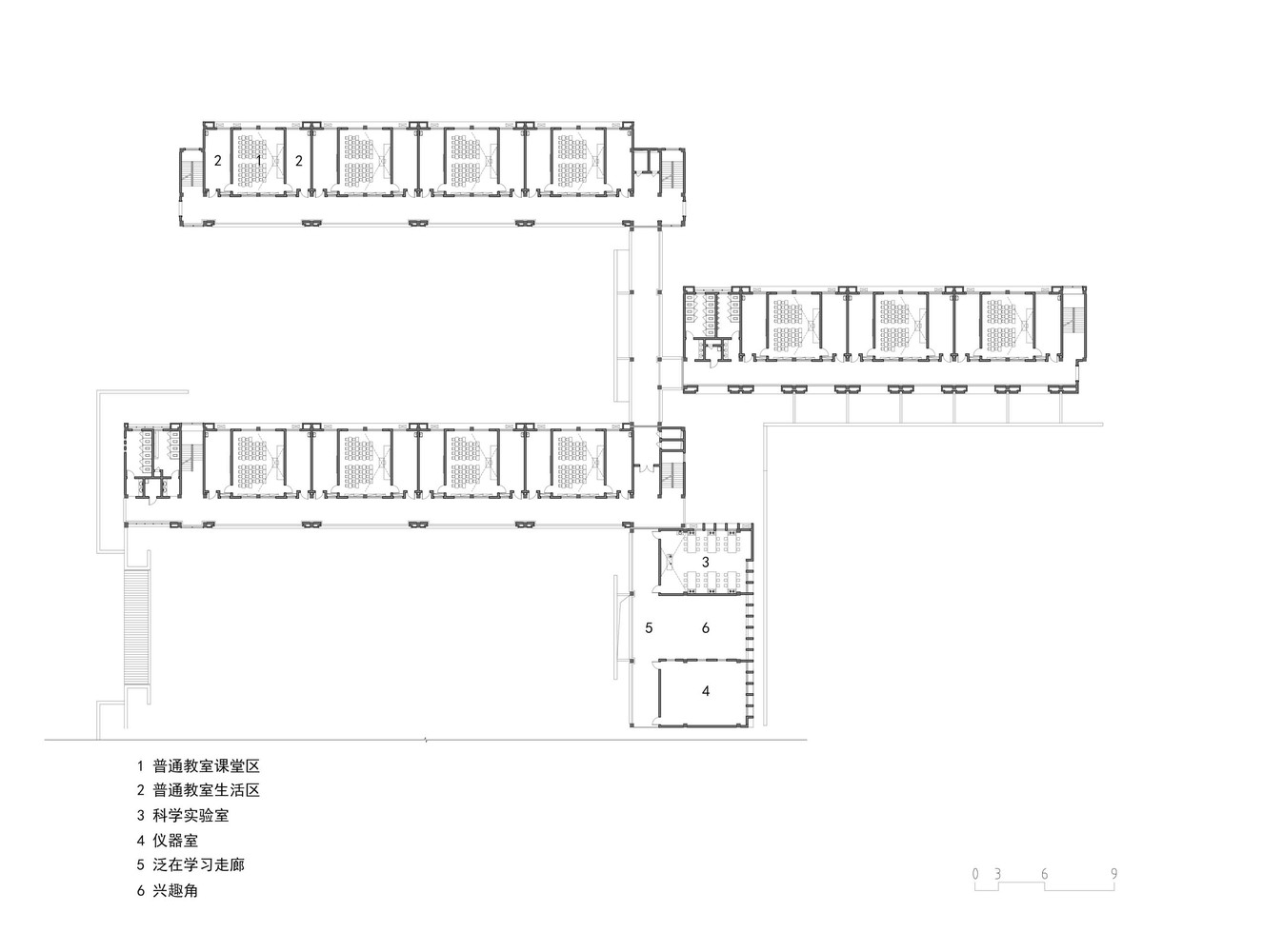
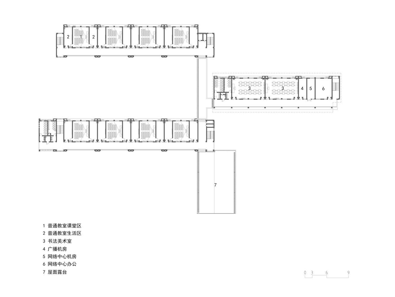
Traditional campus master plans usually highlight the teaching area, while ignoring living, communication and activity areas. However, in the new era, schools are not just a place for imparting knowledge and conducting researches, but also a living environment that aims to improve students' capabilities comprehensively. Unlike the traditional teaching style of lecturing, the modern mode focuses more on experiential teaching. It encourages students to gain experience from daily life, and to learn knowledge through practice. Therefore, as approaching the architectural design of this project, the new campus of Liyang Experimental Primary School, we had in-depth discussions with the school on the requirements for the architectural space to better serve the new teaching mode. As a Chinese saying goes, “To do the work well, one must first sharpen his tools”. We incorporated the new experiential teaching mode into the architectural design in the campus, and enhanced its expression through the architectural spaces, so as to provide a fantastic physical environment for the school to carry out experiential teaching activities.
The project is situated at Yanshan New District, which is on the south of downtown Liyang, Jiangsu, China and well integrates residential community, culture, business and transportation. Based on the core of the New District, the new campus of Liyang Experimental Primary School is planned to establish 72 elementary classes, with 12 for each grade levels (grade 1-6), and 24 kindergarten classes, with 8 for three different age groups respectively. It will become an important gathering place for academic exchanges and scientific discussions in the surrounding area or even beyond.
Based on the actual condition, we formulated three goals during the initial design stage: 1. To design an experiential teaching space from the perspective of the overall campus planning, form an experiential space system that runs through the campus by combining students’ interest with regards to the school’s understanding and conception of experiential teaching, and provide more possibilities and diverse spaces for the communication and daily activities of students.
2. To design experiential teaching space units, transform the classroom layout of traditional lecturing-style teaching and replace it with a flexible, non-fixed classroom unit, in order to adapt to the ever-changing teaching modes.
3. To respect and emphasize on the history of the school, and never abandon its historical cultural heritage as the alteration of teaching modes.
Through efforts from all parties, these goals were finally successfully achieved in this project. China’s current education system is largely still exam-oriented, which means that “teachers” and “examinations” are essential elements, leading to the negligence of individual differences and fostering of comprehensive capabilities for students. The introduction of experiential teaching is one of many attempts made by Chinese educational community to solve this issue. However, it's full of challenge to implement the experiential teaching mode in conventional campuses. For this project, we abandoned the monotonous and standardized way of construction, put in active thoughts and explored the variations and commonalities regarding various new teaching modes, and constantly tried out new campus building spaces. This is a small effort within the architects’ ability scope to contribute to China’s educational reform.
▼项目更多图片
客服
消息
收藏
下载
最近





































