查看完整案例


收藏

下载

翻译
Architects:Plan Architect
Area :2800 m²
Year :2019
Photographs :Chitsanupong Ploythanachot
Design Team : Sinn Phonghanyudh, Somsak Shanokprasith, Wara Jithpratugs, Naphasorn Kiatwinyoo
City : Chatuchak
Country : Thailand
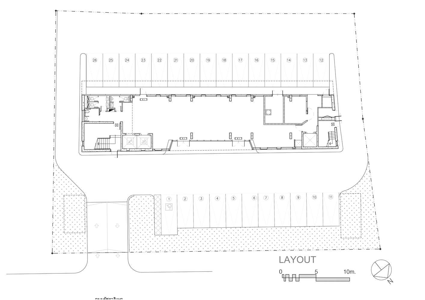
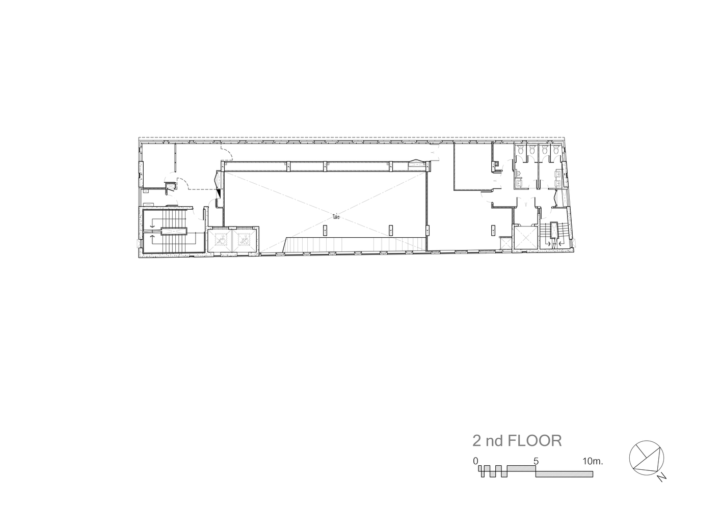
The small size hotel is sitting on the new CBD of Bangkok next to the Court of Justice. With the limitation of City planning laws and regulation, the building size and shape is led to a very simple form with a maximum area as much as possible.
To serve the main target group which are attorney, plaintiff, defendant or those who have business at the court in the early morning, the building façade is designed as a big-urban-scale sunrise painting by using the gradient pattern of hotel window to communicate and encourage people who pass by and the hotel guests as well.
The building color is painted in white with the golden glass color in order to reflect the sunrise from the East in the morning, while the light will be glowing from the inside of the building at the night.
▼项目更多图片
客服
消息
收藏
下载
最近

































