查看完整案例


收藏

下载

翻译
Architects:White Arkitekter
Area :15000 m²
Year :2021
Photographs :Barabild, Björn Lofterud, Anders Bobert
Manufacturers : HansgroheHansgrohe
Lead Architect :Magnus Croon
Contractor :Arcona
Project Managment :Arcona
Interior Designer :Egnell Allard
MEP Consultants :Exengo Installationskonsult AB
Structure Engineers :Sören Lundgren Byggkonsult AB
Design Team : Magnus Croon, Hanna Plato, Johan Holmgren, Anni Stockeld, Josefin Gustafsson, Anna Karlsson, Lisa Fransson, Charlie Fredholm, Nilkas Eriksson
Property Owner : Atrium Ljungberg AB
Tenant : Nordic Choice Hotels
Construction Documents : HMXW
City : Nacka
Country : Sweden
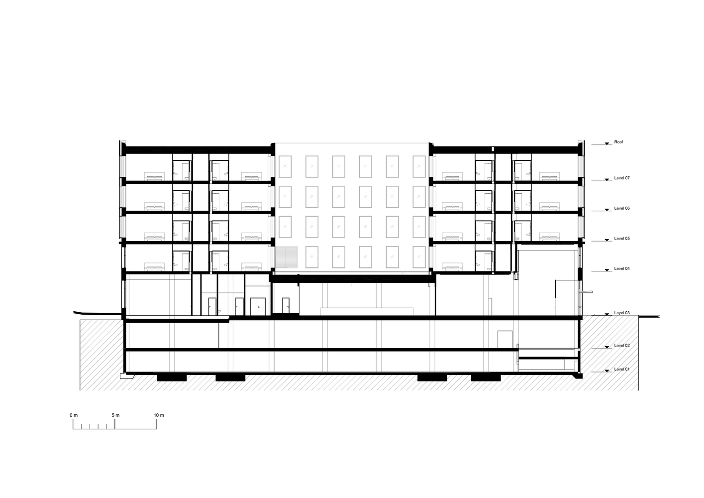
The Clarion Collection Tapetfabriken, in the Sickla district of Nacka, southeastern Stockholm, is a hotel named after the Swedish wallpaper manufacturer Kåbergs, active in the old factory building already in 1906. A century later, after having functioned several years as a service building for Swedish industrial company Atlas Copco and as an office, developer Atrium Ljungberg proposed a repurposing of the building to add another urban layer to the old industrial area. The idea was to build off of the local industrial history by keeping the existing brick façade and then create a new interior and a modern extension on top. In 2021, the Tapetfabriken hotel opened its doors and began a new vibrant chapter in the life of this historical building.
Tapetfabriken comprises 236 hotel rooms, four conference rooms, a lobby, bar and restaurant. In keeping with Sickla’s historical industrial, red brick buildings, the façade of the two lower floors mixes 100-year-old original bricks with new ones to create a beautiful variation. To this historic, grounded lower part is added a more lightweight three-story extension, covered with a white semi-transparent glass lamella structure and integrated façade lighting. Underground, over two floors, there is a garage, technical room and storage.
Located at Marcusplatsen, a park in direct connection with retail, offices, restaurants and other services, The Wallpaper Factory takes advantage of its potential as a central hub in Sickla. At the heart of this hub is the hotel lobby, an attractive place for business travelers, tourists, workers and residents alike. From the morning coffee to the late-night drink, the hotel is bustling around the clock. With the upcoming expansion of the Stockholm metro to Sickla, where traffic is expected to commence in 2030, the district will have an even greater development potential in the future. One which The Tapetfabriken stands ready to embrace.
Initiated as a parallel commission, the winner White Arkitekter designed the building through project planning documents. HMXV Arkitekter then acted as architect for the construction documents. The hotel is run by Nordic Choice Hotels and developed by property owner Atrium Ljungberg with Arcona as the contractor.
▼项目更多图片
客服
消息
收藏
下载
最近



















