查看完整案例


收藏

下载

翻译
Architects:Sweco Architects
Area :8800 m²
Year :2022
Photographs :Niels Nygaard, Kristian Holm
Manufacturers : Troldtekt, Paroc, SchücoTroldtekt
Engineering Team :WSP Norge, WSP
Landscape Architects :Thing Brandt Landskab
Client : TEC – Technical Education Copenhagen
Entrepreneur : CC Contractors
Collaborators : Anker Hansen
City : Lyngby
Country : Denmark
Named after the Danish scientist who discovered electromagnetism, Sweco Architects has designed the 8,000 sqm technical upper secondary school of the future located in Lyngby, northwest of Copenhagen. The ambition is to create a building that becomes an active and integral part of the teaching. A building that plays an active, integrated role on a daily basis; a learning space that sparks inspiration and curiosity in both teachers and students. H.C. Ørsted TEC is designed to adapt itself to the continuous transformation that characterizes educational practices and ideals. For example, throughout the design phase of the new building, we focused on establishing different zones and supporting thematic and interdisciplinary work, so that the ongoing development of educational practices is supported by and integrated into the architecture.
The main architectural device: An homage to Ørsted. In several ways, the new H.C. Ørsted Gymnasium pays homage to science and to the Danish physicist, philosopher, and scientist H.C. Ørsted, who is considered to be the one who discovered that electric currents create magnetic fields, which involves the strict connection that lies in between electricity and magnetism.
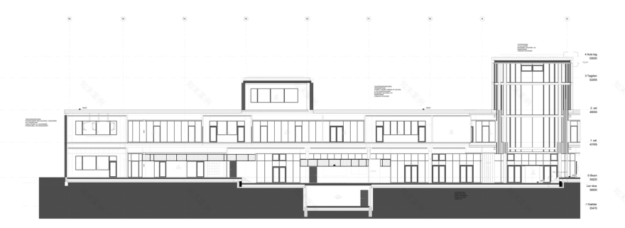
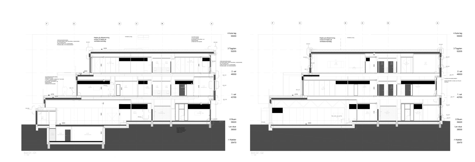
The main architectural device in the new school is a stacked assembly of rounded, spatial volumes conveying a visual reference to electromagnetic coils. The coils, housing classrooms, labs, and meeting rooms, constitute the building’s interior structure and are also manifested in the facade, coming together to form a holistic solution. The coil feature thus provides a unifying theme that ties together the interior spaces and the expression of the facade. The heart of the building is a striking triple-height main hall, which varies in character throughout the day, as daylight is refracted at various angles by the louvered surfaces.
The unique space offers a setting for the students to meet for social events. The specific placement of the coils on the different floors shapes learning environments, moving from a “dead-end” corridor system towards a both robust and flexible space. In this ever-changing atmosphere, the walls have to evolve and adapt too; they are no longer just an element of division of spaces, but incorporate functions such as storage, meeting spaces, and learning hubs. All of that is in order to support the vision of a dynamic space that can improve teamwork activities.
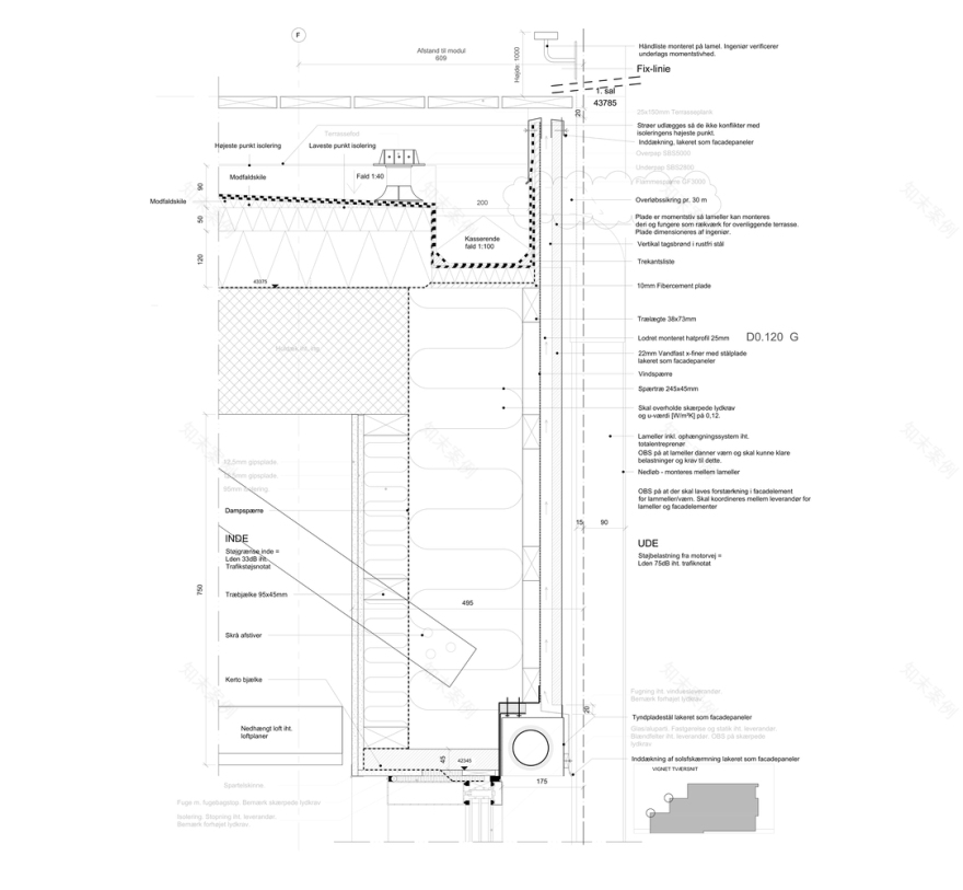
In 1825, H.C. Ørsted made a significant contribution to chemistry and his studies allowed him to produce aluminum for the first time by isolating the element via a reduction of aluminum chloride. The material chosen for the lamellas covering the façade is therefore another reference to the incredible discoveries made by H.C. Ørsted. It evokes curiosity and is thought to be a stimulating element that drives future generations in questioning and understand the unique interdisciplinary relations in the scientific world.
Two sides of the same building. Another characteristic feature of the design of the building is the way its expression varies with the vantage point. As seen from the busy Helsingør motorway, the impressive building is a towering landmark, while the building volume is scaled down in an inviting gesture toward the houses located on the adjacent site. Towards East, we have to use the coils to scale the building down, and towards West, we use them to create a living wall – a wonder wall – designed to spark the curiosity of passers-by. Overall, curiosity is a consistent theme for H.C. Ørsted Gymnasium TEC as we wish to inspire curiosity in the students on a daily basis as well as in visitors and passers-by who encounter the building.
▼项目更多图片
客服
消息
收藏
下载
最近

































