查看完整案例


收藏

下载

翻译
Architects:TAOA
Area :4000 m²
Year :2016
Photographs :Zhi Xia
Collaborators : The Eigth Design Department of China Building Technique Group Co.Ltd, Shihan Gao, Litong Zheng
Architect In Charge : Lei Tao
Design Team : Bozhou Kang, Zhen Chen
City : Benxi
Country : China
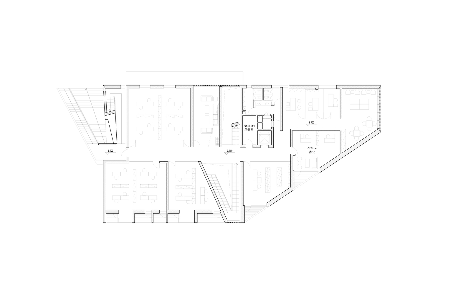
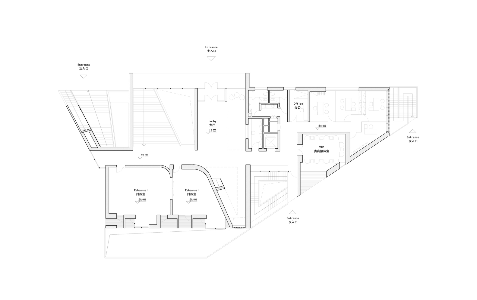
It is located in the south of the square of Benxi Museum. This building is both the local art gallery for cultural exhibiting purpose and the center for artists’ working and communication. The center contains 4 floors above ground and a basement floor. The interior space of the first and basement floor joining the exterior through the sunken yard, generates an individual and welcoming shared space for art exhibiting. The second, third and fourth floor are mainly used for working, art creating and meeting. The hovering and stagger public staircase connects each floor, while showing its multiple forms from basement to top.
The roof applies the doubled lean-to structure which emphasizes the “uptrend” form, enriches surrounding buildings’ flat roof outline around the Museum Square. Appealing to the trapezoid shape of the site, one right angle corner of the rectangular proto form of the building is cut to create obtuse corners. The “uptrend” roof working with the obtuse corners and the inclined entry staircase, generates a kind of newly appeared artistic urban vitality. What’s more, the cavities which is carved on the building’s stonelike facades, is created for people’s needs to rest in a grey space and conveys the persistent and moderate power which go through multiple layers which contain different forms and orientations.
▼项目更多图片
客服
消息
收藏
下载
最近
































