查看完整案例


收藏

下载

翻译
Architects:ARKITITO Arquitetura
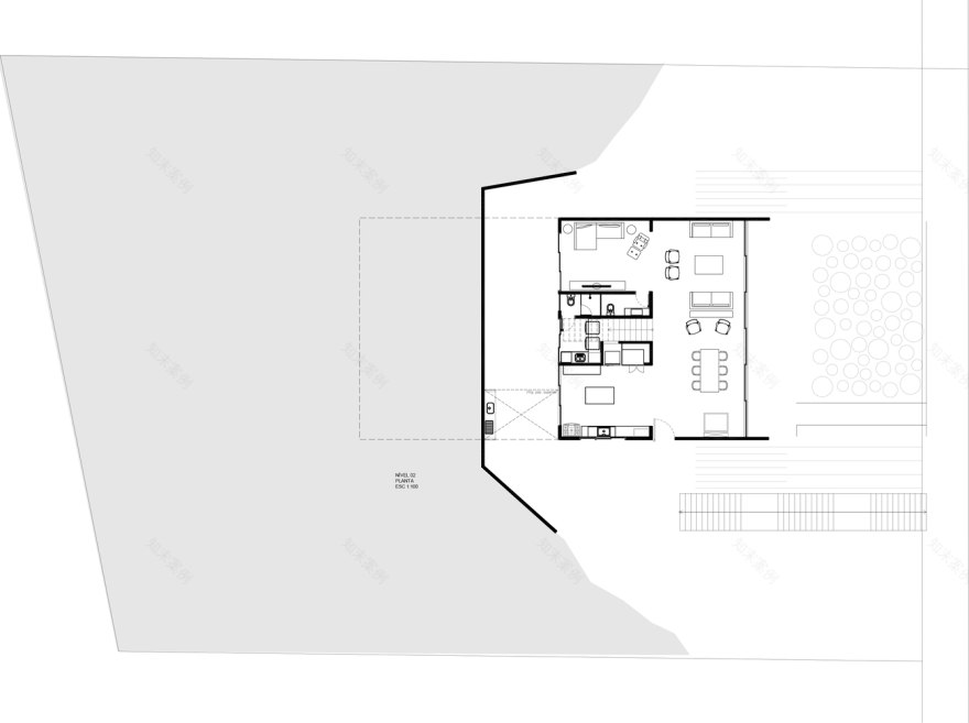
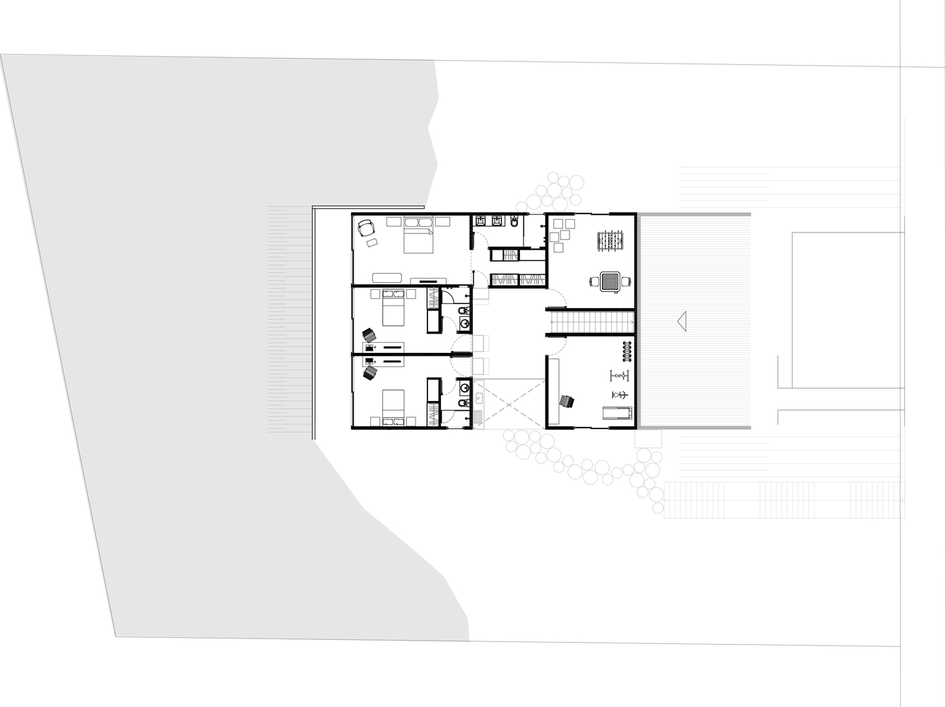
Area :350 m²
Year :2018
Photographs :Carolina Lacaz
Manufacturers : Sherwin-Williams, Alcoa, Atlas ceramica, CSN, Deca, Divinal, Franke, Fuseprotec, Gerdau Corsa, Lajes Itaim, Legrand, Madeiras leo, Rinnai, Sander, Serralheria santo guilherme, Sil, Tigre, Viapol, Yamamura, coral draw, +1draft Sight-1Sherwin-Williams
Lead Architects :Chantal, Tito Ficarelli
Project Team : Mariana Olha, Fernanda Domingues, Carolina Ubach, Marta Monteiro, Dayane Santos, Larissa Ragaini, Caroline Cursino
Structural Project : Marcelo Mello
Construction Management : Osvaldo Santos Amaral
City : Itapecerica da Serra
Country : Brazil
The land with great slope was the choice of this family to make their residence, taking advantage of the beauty of the climate and native forest near Sao Paulo.
10,000 stacked concrete blocks make up the structure, creating rhythm and unity.
The contrast between white and black define interior and exterior, A minimalist volume that the authors define as post-brutalism.
▼项目更多图片
客服
消息
收藏
下载
最近





















