查看完整案例


收藏

下载

翻译
Architects:ARKITITO Arquitetura
Area :442 m²
Year :2021
Photographs :Fran Parente
Manufacturers : AutoDesk, Blocos e Lajes Itaim, Cortesia, Deca, Marcenaria Meireles, SSA Andaimes, Trimble NavigationAutoDesk
Lead Architects :Chantal e Tito Ficarelli
Design Team : Larissa Ragaini, Dayane Melo, Aurélio Barros, Mariana Olha, e Caroline Cursino
Engineering : 3TX
City : Brooklin
Country : Brazil
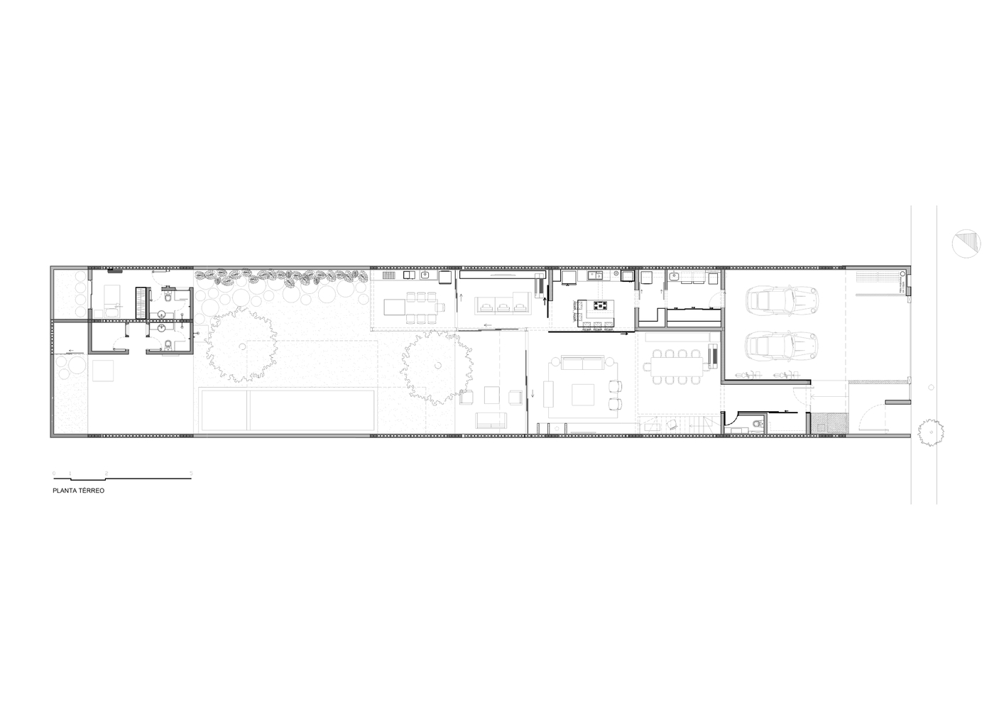
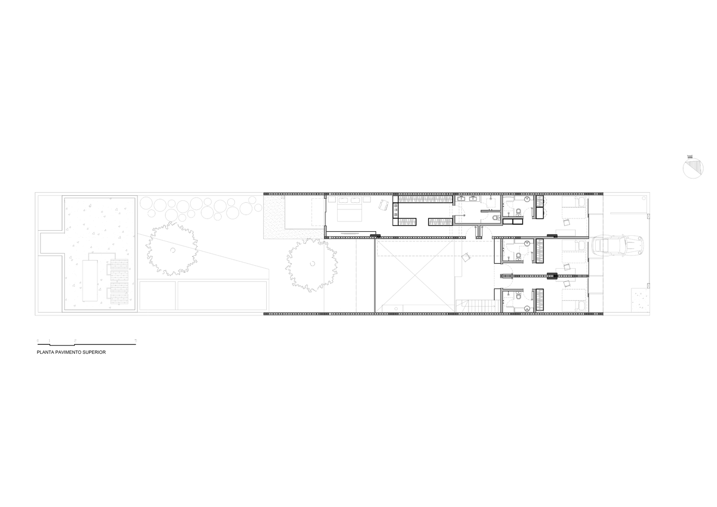
Designed for a family that wanted to enjoy a good time together in a cozy atmosphere and surrounded by natural light, the Georgia house stands out for its contrasting volumes: The street facade is highlighted by the solid rectangular volume and orange louvers while the back facade is marked by the large volume with gabled roofs that crown a double height facing a fresh garden.
The interconnection of spaces and the relationship with the garden areas create a relationship of integration between the internal and external spaces that is facilitated by the large glass window that frames the backyard. The integration of spaces is established from the living room with double height with the mezzanine that gives access to the bedrooms and intimate areas to the treetops in the garden that seem to enter the center of the house. The chosen materials stand out for their contrasts: concrete blocks, metal structures, and wood compose different textures, while the architectural details evoke a sense of suburban nostalgia.
Defined by its otherness, the square and compact volume that marks the access to the house is also evidenced by the staircase that initially starts with concrete mirrors and becomes a metallic waterfall that gives access to the mezzanine.
▼项目更多图片
客服
消息
收藏
下载
最近


























