查看完整案例


收藏

下载

翻译
Architects:HGR Arquitectos
Area :15660 m²
Year :2017
Photographs :DIANA ARNAU
Author : Marcos Hagerman
Executive Drawing : Rodrigo Durán
Development : Ciudad Vertical
City : Ciudad de México
Country : Mexico
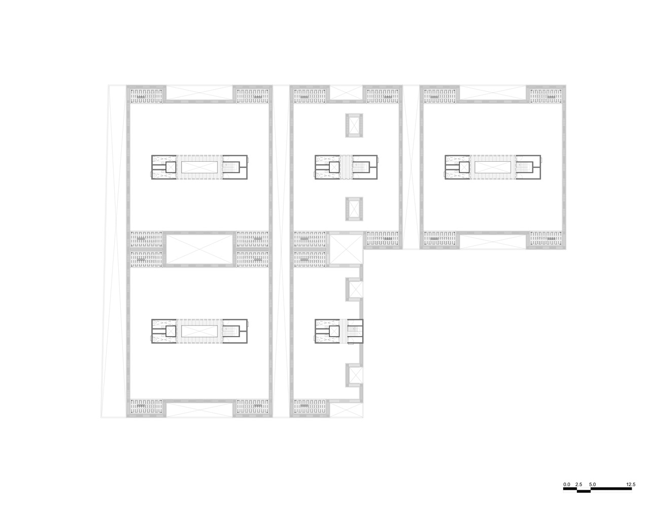
ROMERO 114 is a four floor Housing Project with 163 units located in Romero # 114, on a central neighborhood of Mexico City.
The project proposes 163 apartments between 60 and 113 m², which are accommodated internally in 5 towers. Each tower has several courtyards that manage to give good ventilation and lighting to each apartment
The building functions as 5 towers, each with its own elevator and stair core. The main access of the building is through a lobby that connects the street with the parking lot. The towers are accessed from 5 lobbies in the parking lot, which communicate with the central courtyard and vertical circulation of each tower.
The biggest challenge of the project was to accommodate 41 apartments in each level, ensuring that all of its spaces had good lighting and not too many meters were lost in circulation to access each one. To achieve this, only 4 modules were designed to fit along the terrain.
In order to respect 20% of free area, multiple courtyards were layed in each tower. These coutyards function as private spaces for the first level apartments. All living areas have ventilation and natural lighting. The rooftop is equipped with 5 roofgardens and 18 grills for the use of the entire building. This space has a landscape design that surrounds the rooftop with vegetation.
The facade was designed with a modulation that changes to give greater privacy to each space. When a bay opens, the bay in front closes and so on.
Most of the apartments were designed with a balcony, which gives privacy, functioning as a transition space between the exterior and the interior.
With this project we achieve that all units have good privacy, lighting and sound insulation.
By distributing all the apartments in different towers, the scale and magnitude of the project was reduced, achieving a sensation of lower density.
▼项目更多图片
客服
消息
收藏
下载
最近

































