查看完整案例


收藏

下载

翻译
Architects:HGR Arquitectos
Area:1440m²
Year:2023
Photographs:DIANA ARNAU
Lead Architects:Marcos Hagerman
Construction:Grupo VyG
Executive Drawing:Rodrigo Durán
Collaborators:Luisa Maldonado, Diego Castañeda, Carolina Hernández, Manuel Silva, Félix Miguel.
Structural Design:Mata y Triana ingenieros consultores
Facilities:zmp Instalaciones
City:Mexico City
Country:Mexico
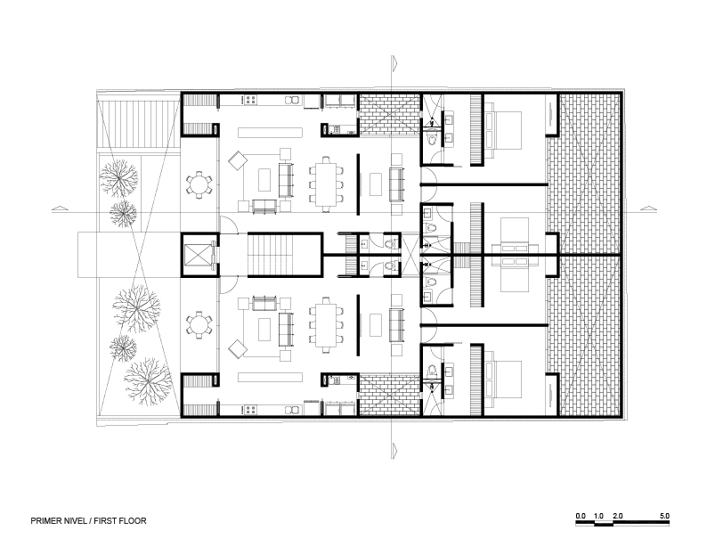
Text description provided by the architects. AC71 is a 3-story, 5-apartment residential building located at Augusto Conte # 71 in the Anzures neighborhood in Mexico City.
The project is planned on a 509m2 plot of land in a very quiet and central neighborhood of the city.
The main objective of the project was to achieve highly efficient units in which there was the least amount of meters wasted. For this, a concrete cube was proposed with different openings that manage to give movement to the facades. The volumetric design is formed through 3 longitudinal axes of apparent dueled concrete that form a box that, although it may appear relatively solid, has large openings used as terraces for each unit.
To promote the privacy of the building, the volume is set back from the street, leaving a garden area that separates the road from the building. Pedestrian access occurs through this area, generating a path that aims to make your first experience when entering the building be surrounded by vegetation.
The apartments are distributed between the private and the public, having an intermediate area that manages to give the bedrooms the necessary privacy. All spaces have terraces or balconies allowing spacious windows, but having privacy thanks to the fact that all the openings are recessed from the façade.
The use of materials was something of utmost importance for the project. The idea was to have a very warm atmosphere, for which a range of materials and tones were used that favored this. Exposed concrete with brown pigmentation, engineered floors and wooden railings achieve this warm effect sought in the project.
AC71 is a project that achieves a great balance of simplicity between the volumetry and the spaces obtained inside.
Project gallery
Project location
Address:Augusto Conte # 71, Anzures neighborhood, Miguel Hidalgo mayor's office, CDMX. C.P. 11590. Mexico
客服
消息
收藏
下载
最近



































