查看完整案例


收藏

下载
© Diana Arnau
戴安娜·阿诺
架构师提供的文本描述。埃米利亚诺·萨帕塔是一个六层楼的住房项目,共有25个单元,位于墨西哥城中心社区埃杰7“A”Sur General Emiliano Zapata。
Text description provided by the architects. EMILIANO ZAPATA is a six floor Housing Project with 25 units located in Eje 7 “A” Sur General Emiliano Zapata, on a central neighborhood of Mexico City.
© Diana Arnau
戴安娜·阿诺
该项目提议的25套公寓面积在82至91平方米之间,内部由5个中央露台隔开。每个露台将公共区域与每套公寓的私人区域分开。这些区域由一个砖格所限制的桥梁连接起来,这有助于给每个单元提供隐私和通风。
The project proposes 25 apartments between 82 and 91sqm, which are divided internally through 5 central patios. Each patio separates the common area from the private area in each apartment. These areas are connected by bridges confined by a brick lattice that helps to give privacy and ventilation to each unit.
© Diana Arnau
戴安娜·阿诺
Longitudinal Section
© Diana Arnau
戴安娜·阿诺
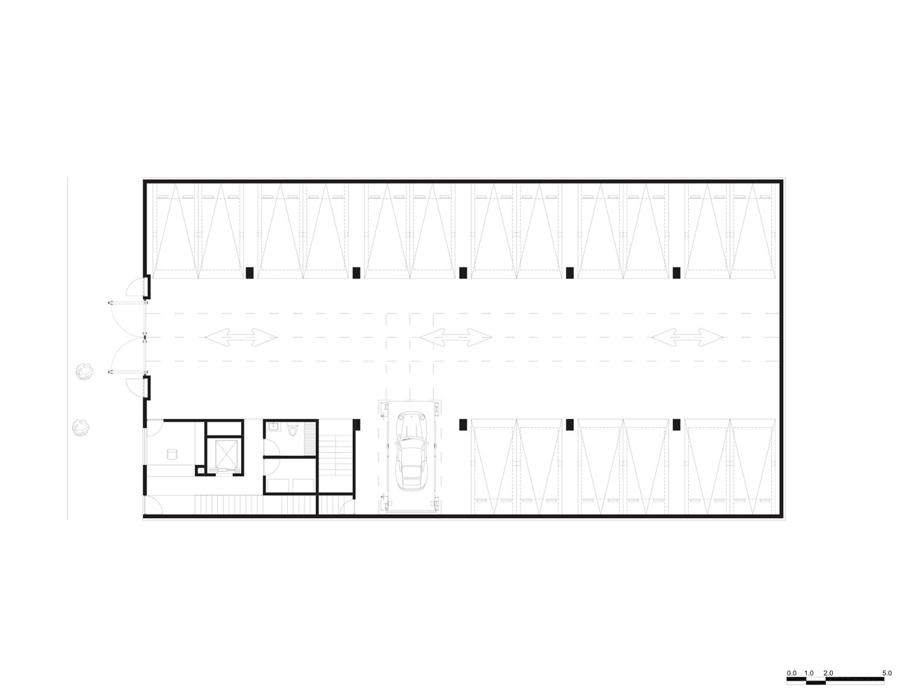
这座大楼的功能是一个单一的塔,有一个单一的电梯核心和一个紧急楼梯沿整个东立面飞行。每层可容纳五套公寓,可通过一条开放的走廊进入。该建筑在一楼有一个大厅,位于-0.00m的水平,直接连接到垂直循环核心。所有的生活空间都有通风和自然照明。屋顶设有10个私人屋顶花园,供第四层和第五层公寓使用。
The building functions as a single tower, having a single elevator core and an emergency staircase that flies along the entire eastern facade. Each level accommodates five apartments, which are accessed through an open corridor. The building has a lobby on the ground floor located at level +/- 0.00m, which is directly connected to the vertical circulation core. All living spaces have ventilation and natural lighting. The roof is equipped with 10 private roofgardens for the apartments of the fourth and fifth level.
© Diana Arnau
戴安娜·阿诺
为了满足这座城市所需的20%的自由面积,该建筑的中心有五个露台。在每个庭院里,都种了一棵甘草树,帮助给每个公寓提供隐私和更好的景观。另一方面,在东侧,建筑物与周围的房屋分开,创造了一个长通道庭院。
To comply the 20% of free area that the city requires, five patios are accommodated at the center of the building. In each patio, a liquidambar tree was planted helping give privacy and better views to each apartment. On the other hand, on the east side, the building is separated from the surrounding houses, creating a long access courtyard.
© Diana Arnau
戴安娜·阿诺
© Diana Arnau
戴安娜·阿诺
整个建筑采用天然耐用的材料设计,如砖、火山石和木材。拟议中的植被是特有的,几乎不需要维护。
The whole building was designed with natural and durable materials such as brick, volcanic stone and wood. The proposed vegetation is endemic and requires little maintenance.
© Diana Arnau
戴安娜·阿诺
通过这个项目,我们实现了所有的单位都有良好的隐私,照明和隔音,甚至旁边的一个非常繁忙的大街在墨西哥城。
With this project we achieve that all the units have good privacy, lighting and acoustic insulation, even being next to a very busy avenue in Mexico City.
© Diana Arnau
戴安娜·阿诺
Architects HGR Arquitectos
Location Gral. Emiliano Zapata, Portales Nte, Mexico City, CDMX, Mexico
Architect in Charge Marcos Hagerman
Area 3504.0 m2
Project Year 2017
Photographs Diana Arnau
Category Apartments
Manufacturers Loading...
客服
消息
收藏
下载
最近
































