查看完整案例


收藏

下载

翻译
Architects:Architecture Architecture
Area :84 m²
Year :2021
Photographs :Tom Ross
Engineering :Deery Consulting
City : Richmond
Country : Australia
A periscope, washed-up on the beach. The oceans must be full of them and yet this is quite unexpected: half buried with its ends poking out like a happy seaworm, chatting to its tail. The tides have washed it crystalline; mirrors bend the light to fill its buried chambers. A single sunlit passage, coursing through the sand.
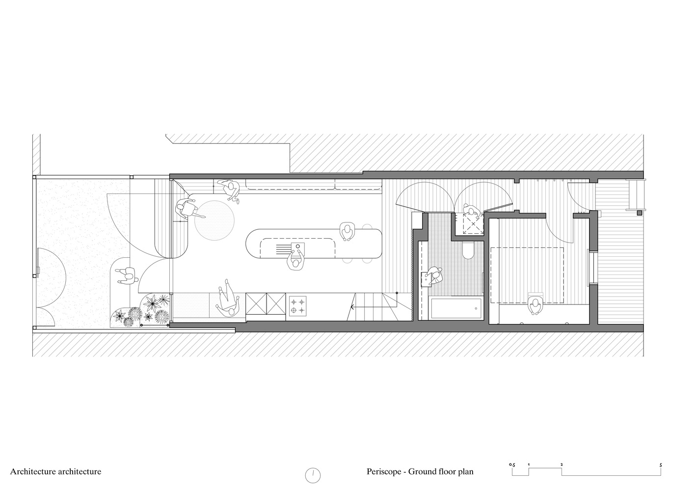
There’s a particular joy derived from designing a small house well. In a dense urban pocket of Richmond, on a site of just 84m2, this one’s particularly small. The key challenges here were space, natural light, and vertical circulation. Rather neatly, all three have been addressed with a single solution: the periscope.
A double-height void in the center of the house defies constraint, lending a little luxury to the spaces that spill from it. Being on a narrow site, this ought to be the darkest part of the house and yet, a sky window, the full width of the property, inundates light like a sudden sun shower. It is into this firmament that the staircase rises. Space, light, and movement in a single gesture; a mirrored screen amplifies these effects, drawing views through the house, from both the courtyard and the sky.
▼项目更多图片
客服
消息
收藏
下载
最近





























