查看完整案例


收藏

下载
Australia Kite house
设计方:Architecture Architecture
位置:澳大利亚
分类:居住建筑
内容:实景照片
设计团队:Michael Roper, Nick James, Anna Nguyen
图片:18张
摄影师:Peter Bennetts
这是由Architecture Architecture设计的风筝住宅。场地的特色标识物是欧洲桦,它们的树干是白色的,树池是黑色的。这里的一切都是光与影。建筑师从这些苗条的树木中获取灵感,用黑色的落水管装点住宅的白墙,并延伸到屋顶。大回转窗及回转门的打开,形成住宅内部与花园之间的完全开放性。室内和室外,屋顶都是作为树冠的存在。天空与树叶随处可见。光线从所有地方渗透至室内,让一天的变化变得甚为明显。头顶,三角形的几何元素通过折叠与增加而不断衍生,就像空中不为拴住的风筝。
译者:筑龙网艾比
From the architect. A stand of silver birches marks the place. Their trunks are white heat, tempered by pools of black. Everything here is light and shade. Taking cue from their slender friends, black downpipes score the white walls of the house, disappearing into the canopy above.Approaching the threshold, the visitor is welcomed by pockets of shade nestled among protective brick walls. A large pivot window and a large pivot door throw themselves wide open, exposing the full throat of the house to the garden.Inside and out, the roof rests like a canopy. Sky and foliage are ever-present. Light filters in from all sides marking the passage of a day, while overhead, triangles beget triangles, folding and multiplying against the sky like barely tethered kites.
This house renovation stretches diagonally across the junction of its L-shaped backyard, unifying the two arms of the garden with a single gesture. Fin-walls project from the new living spaces, creating pockets of shade and shelter at the thresholds of outdoor living.Internally, the geometry of the external canopy is drawn inside, bleeding the boundary between indoor and outdoor areas. This gesture also affords the opportunity to ‘flip’ open the rooftop, inviting shards of morning light into the living areas. Through the course of the day, sunlight penetrates the house from multiple angles, subtly marking the passage of time.In the backyard a garage/studio building emulates the angular gesture of its sibling, though tips its hat in deference. Beneath its generous brim, a private garden provides a place of reflection for the studio space within.
澳大利亚风筝住宅外部实景图
澳大利亚风筝住宅局部实景图
澳大利亚风筝住宅内部实景图
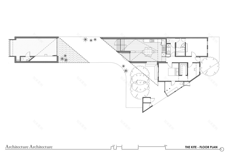
澳大利亚风筝
住宅平面图
澳大利亚风筝住宅平面图
澳大利亚风筝住宅剖面图
客服
消息
收藏
下载
最近




















