查看完整案例


收藏

下载

翻译
In a second project for Réel in Shanghai, a high-end shopping mall located on West Nanjing Road, Kokaistudios was commissioned to renovate and upgrade its third floor contemporary womenswear department. On identifying visibility and layout as particular challenges of the 500sqm space, designers injected layers and partitions into the formerly messy shop floor to create rhythm and pace, and invite discovery. Combining a solid core, mineral-inspired PVC, as well as brushed stainless steel finishes, all realized in neutral tones to best showcase the products themselves, the result fits seamlessly within the mall’s wider context, creating continuity and refinement.
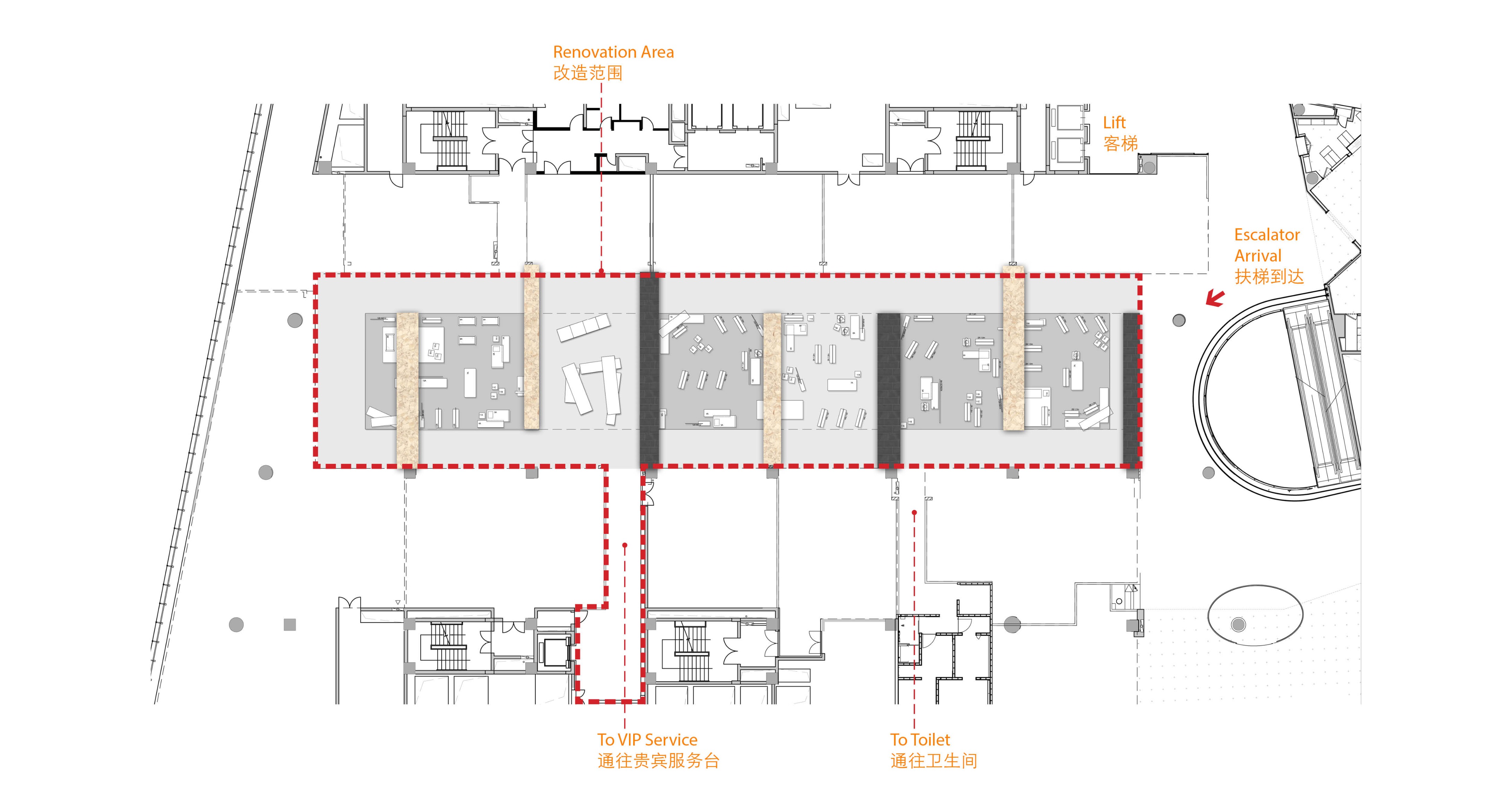
Visibility was a key challenge: with sole access to the floor via central escalators, visitors could see the entirety of the space immediately on arrival. With views through to the dead end beyond, as well as each and every tenant island in between, the original layout offered little in the way of intrigue, few incentives for discovery, and limited possibilities for circulation.
Kokaistudios’ solution was to insert gates at regular intervals throughout the space. Spanning the width of the shop floor, these ‘windows of curiosity’ serve several functions: firstly, their robust columns partially block shoppers’ view into the store, thereby piquing curiosity to further explore. Second, alternating gates’ finishes between dark stone cladding and light-colored PVC creates a depth of field, and an attractive order and rhythm.
Gates’ pillars invite alternative circulations, creating clear indicators of zoning and functionality where previously there was none. The central space is now occupied by cashier desks and fitting rooms, and is flanked by a curated selection of designer brands. Now a key focal point of the overall design, the area’s display tables, pedestals, and surfaces appear as sculptural entities: wrapped in stone-look PVC for crisp, clean corners, volumes of varying sizes are stacked at angles, seemingly emerging from the floor itself. Elsewhere, a combination of voids carved out from pillar blocks, as well as jutting cantilevered beams create useful shelf space. A floor-to-ceiling mirror adds to the geometric complexity of the area.
Kokaistudios’ brief extended to renovating the entrance area to the third floor’s VIP rooms. In order to thematically connect to the wider space, designers sought to echo the rhythm of the main shop floor by way of a corridor of alternating stainless steel surfaces and metal mesh panels, with side-lit white plaster walls behind. Framed by the end of the corridor, the mall’s logo - a gingko leaf, realized in brass and positioned above the section's information desk - becomes a striking design feature of this exclusive area.
Working within a minimalist color palette and a deliberately limited range of materials, the renovation brings an elegant simplicity to this previously chaotic space. With rhythm and pace created by its staggered gates - or ‘windows of curiosity’ - the new design lends order, intriguingly offset by purposefully concealed areas and unexpected angles.
Kokaistudios’ fashion-forward renovation for Réel’s contemporary womenswear department takes a two-tier approach. First, it addresses and remedies shoppers’ all-important initial visual impression of the floor, through depth of field, rhythm, and reveals. At the same time, the design elevates the otherwise mundane material of PVC to a refined, sophisticated solution through creative installation and use. Viewed as a whole, this mall makeover is an ideal match for the wider Réel brand.
Project details:
Project name: Réel Contemporary Fashion
Location: Shanghai, China
Floor area: 500 sqm
Date of completion: Aug. 2019
Client: Réel Shanghai
Interior Design: Kokaistudios
Chief Designers: Filippo Gabbiani, Andrea Destefanis
Project Managers: Ian Yu, Yao Yao
Design Team: Jen Xu, Chang Qing
Photography: Dirk Weiblen
Text: Frances Arnold
客服
消息
收藏
下载
最近





















